EasyManua.ls Logo

Siemens siprotec 7SA6 - Interface Modules

Siemens siprotec 7SA6
792 pages
To Next Page IconTo Next Page
To Next Page IconTo Next Page
To Previous Page IconTo Previous Page
To Previous Page IconTo Previous Page
Loading...
Installation and Commissioning
8-32 7SA6 Manual
C53000-G1176-C133-1
8.1.3.4 Interface Modules
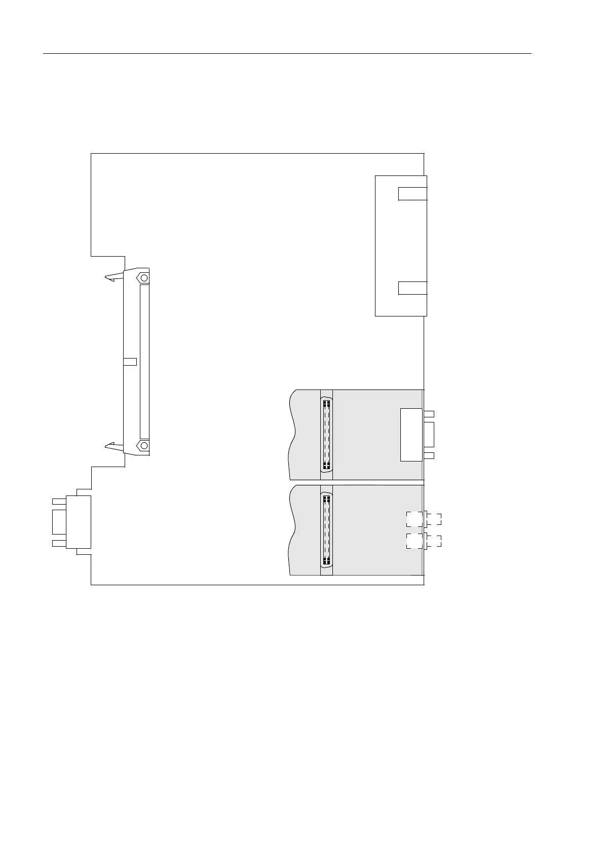
The interface modules are located on the processor printed circuit board C–CPU–2 (å
in Figure 8-8 to 8-10). Figure 8-17 shows the printed circuit board and the modules.
Figure 8-17 Processor printed circuit board C–CPU–2 with interface modules
B
D
Mounting Location
(Rear Side of Housing)
Analog Output
System Interface
or Analog Output

Table of Contents

Other manuals for Siemens siprotec 7SA6

Related product manuals