EasyManua.ls Logo

Subaru Forester 2004 - Page 547

Subaru Forester 2004
622 pages
Print Icon
To Next Page IconTo Next Page
To Next Page IconTo Next Page
To Previous Page IconTo Previous Page
To Previous Page IconTo Previous Page
Loading...
CC(H4SO)-15
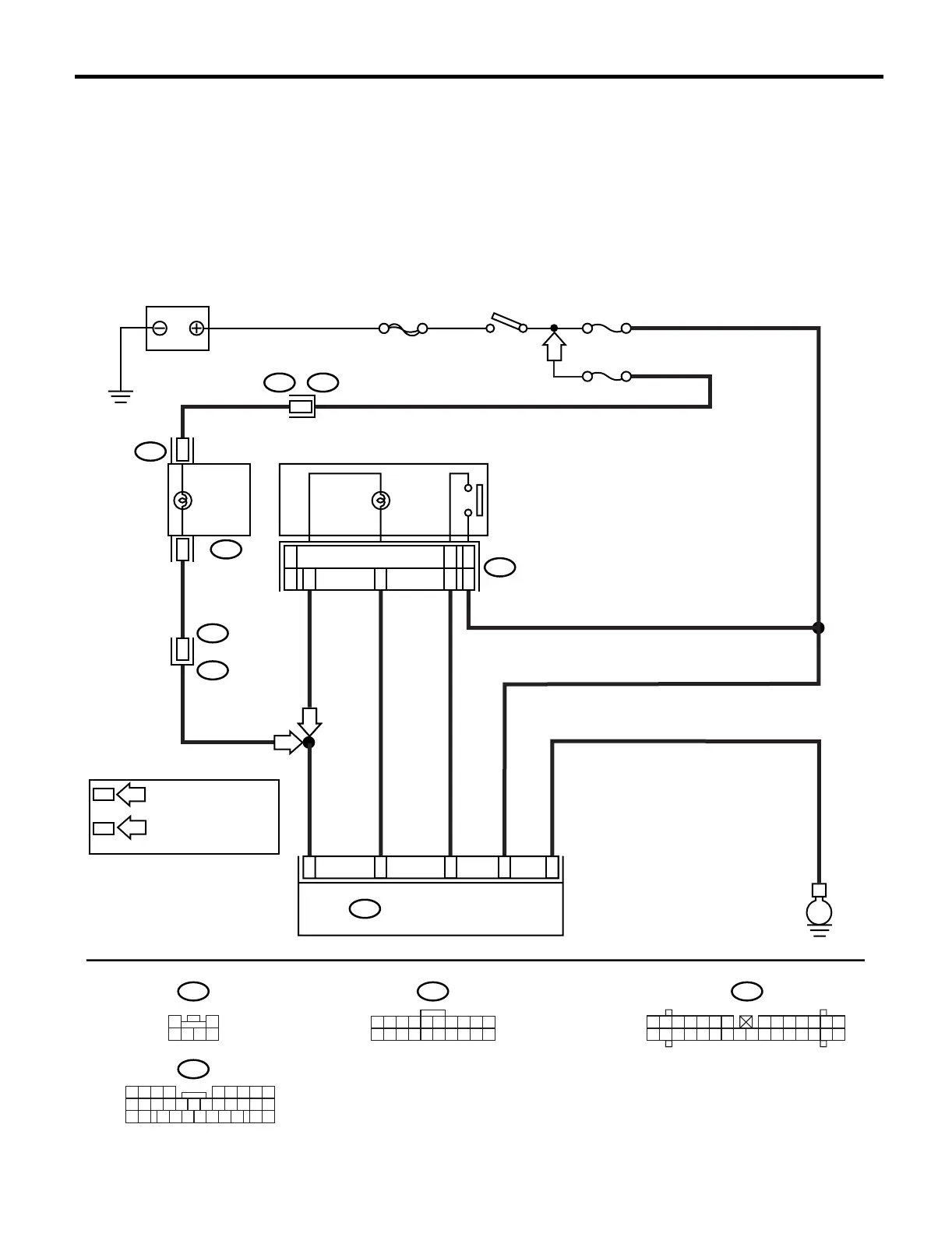
CRUISE CONTROL SYSTEM (DIAGNOSTIC)
Diagnostic Procedure with Symptom
C: CHECK CRUISE CONTROL MAIN SWITCH
TROUBLE SYMPTOM:
Cruise control main switch is not turned ON and cruise control cannot be set.
NOTE:
When the main relay (built-in cruise control module) operates, the main switch circuit is in normal condition.
The main relay operation can be checked by hearing the operation sound.
This operation sound will be heard when the ignition switch and cruise control main switch is turned to ON.
WIRING DIAGRAM:
CC-00253
B161
i3
i10B:
B94
123456789
10
11 12 13 14 15 16 17 18 19 20
E
1
11
15
12
6
5
3
7 B16 B9
BATTERY
CRUISE CONTROL MODULE
CRUISE CONTROL
MAIN SWITCH
CRUISE
INDICATOR
LIGHT
COMBINATION
METER
SBF-4
F/B No.18
B94
B161
F/B No.14
IGNITION
SWITCH
i10
i3
B38
i3 B38
B:
i10
B:
1 2 3 4 5 6 7 8 9
10 11 12 13 14
15 16 17 18 19 20 21 22 23 24 25 26 27 28 29 30
21
9
32
1234 56
10 11 12 13 14 15
7
16
23 30
19 20
22 26 27 28 29
8
17
24 31
18
25
: INDICATOR ON
COMBINATION METER
4
3
1
2
ICIS
ISIS
IC
IC
IC
IS
IC
: INDICATOR ON
MAIN SWITCH
IS
16
12
3456

Table of Contents

Related product manuals