EasyManua.ls Logo

Omron SYSDRIVE 3G3FV - Page 37

Omron SYSDRIVE 3G3FV
400 pages
Print Icon
To Next Page IconTo Next Page
To Next Page IconTo Next Page
To Previous Page IconTo Previous Page
To Previous Page IconTo Previous Page
Loading...
2-5
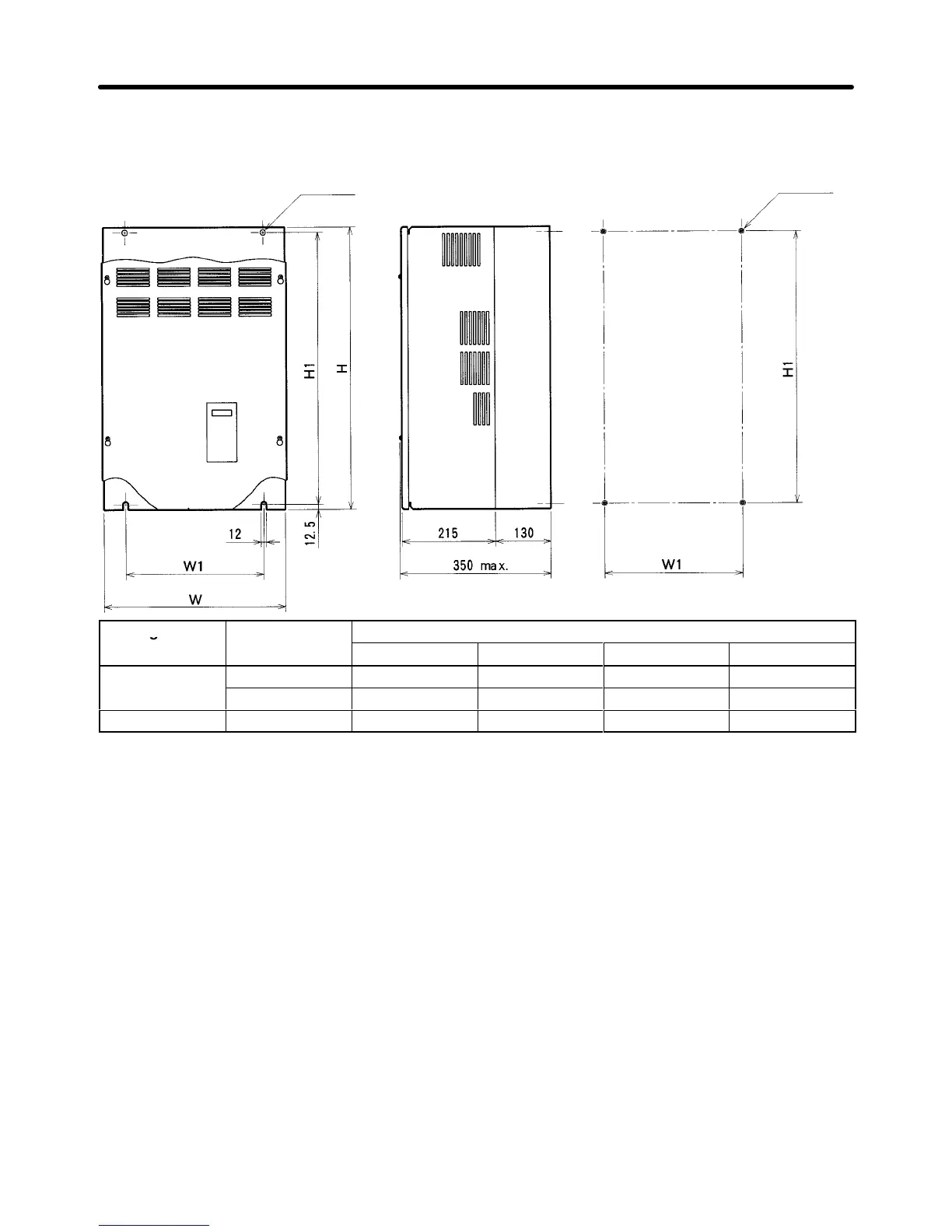
H 3G3FV-B2300/-B2370/-B2450/-B2550/-B4550/-B4750-E
D External Dimensions D Mounting Dimensions
Two,
12 dia.
Four
, M10
Voltage class Model 3G3FV-
Dimensions (mm)
g
W H W1 H1
200-V
B2300B2370 425 675 320 650
B2450/B2550 475 800 370 775
400-V B4550/B4750-E 455 820 350 795
Installation Chapter
2

Table of Contents

Related product manuals