EasyManua.ls Logo

SMC Networks HRL100-A 40 Series - Page 161

SMC Networks HRL100-A 40 Series
194 pages
Print Icon
To Next Page IconTo Next Page
To Next Page IconTo Next Page
To Previous Page IconTo Previous Page
To Previous Page IconTo Previous Page
Loading...
HRX-OM-X037
Chapter 8 Control, Inspection and Cleaning
HRL Series 8.4 Replacement of consumables
8-11
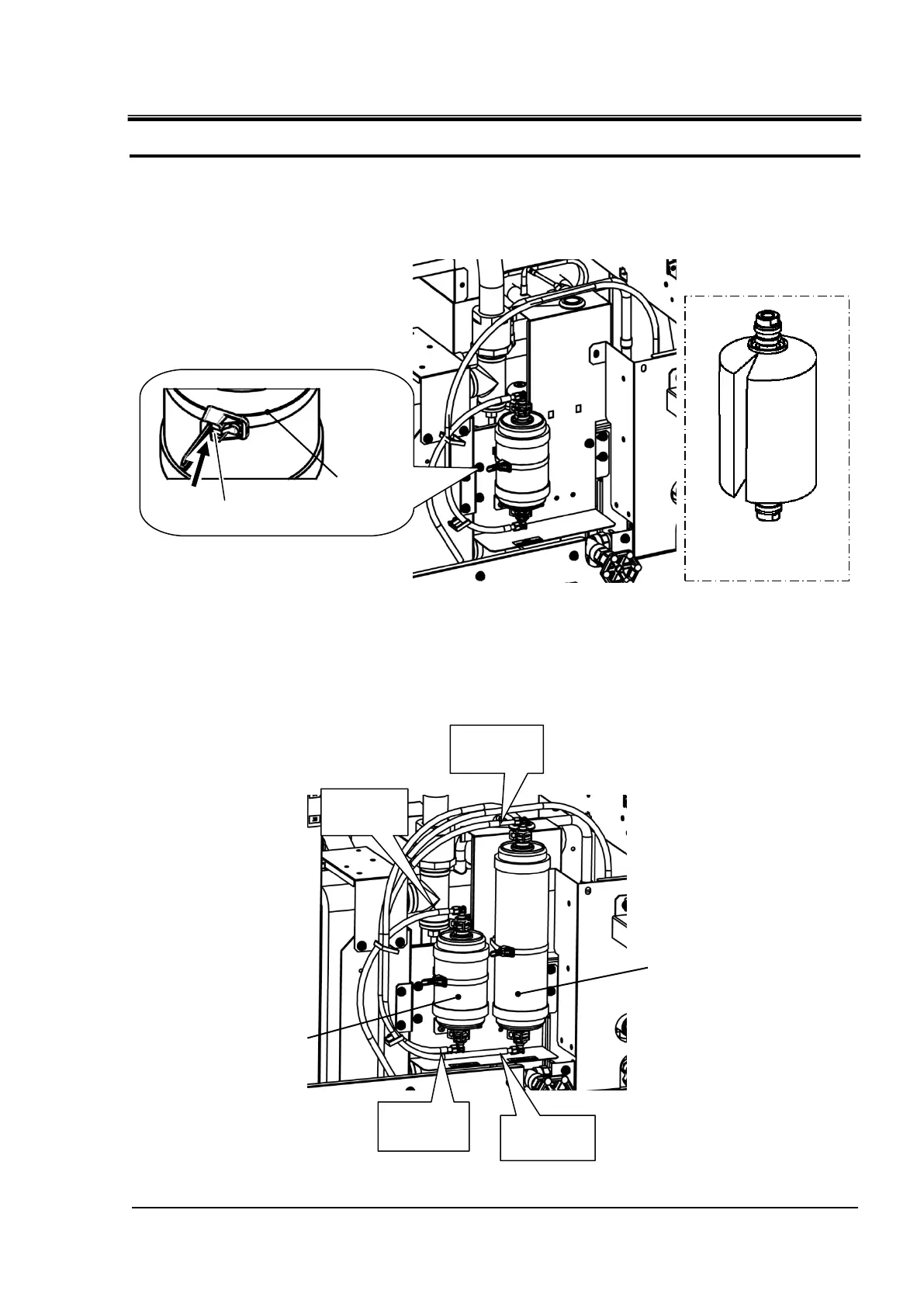
3. Remove DI filter fixed band by pushing lever on the band.
(The temporary piping for DI filter is connected at the time of delivery. "Temporary piping for DI
filter" is used for long term storage of this product. Please keep it in a safe place.)
For option D1 “CH1 with electrical conductivity control”
In the case of option D1, DI filters are located as shown in the figure below.
Press
Lever
Fixed band
Temporary piping
for DI filter
For CH2
For CH1
CH2 OUT
CH1 OUT
CH2 IN
CH1 IN

Table of Contents

Related product manuals