EasyManua.ls Logo

Xerox ColorQube 9301

Xerox ColorQube 9301
1812 pages
To Next Page IconTo Next Page
To Next Page IconTo Next Page
To Previous Page IconTo Previous Page
To Previous Page IconTo Previous Page
Loading...
February 2013
2-12
ColorQube® 9303 Family
01-525-00, 01-530-00
Status Indicator RAPs
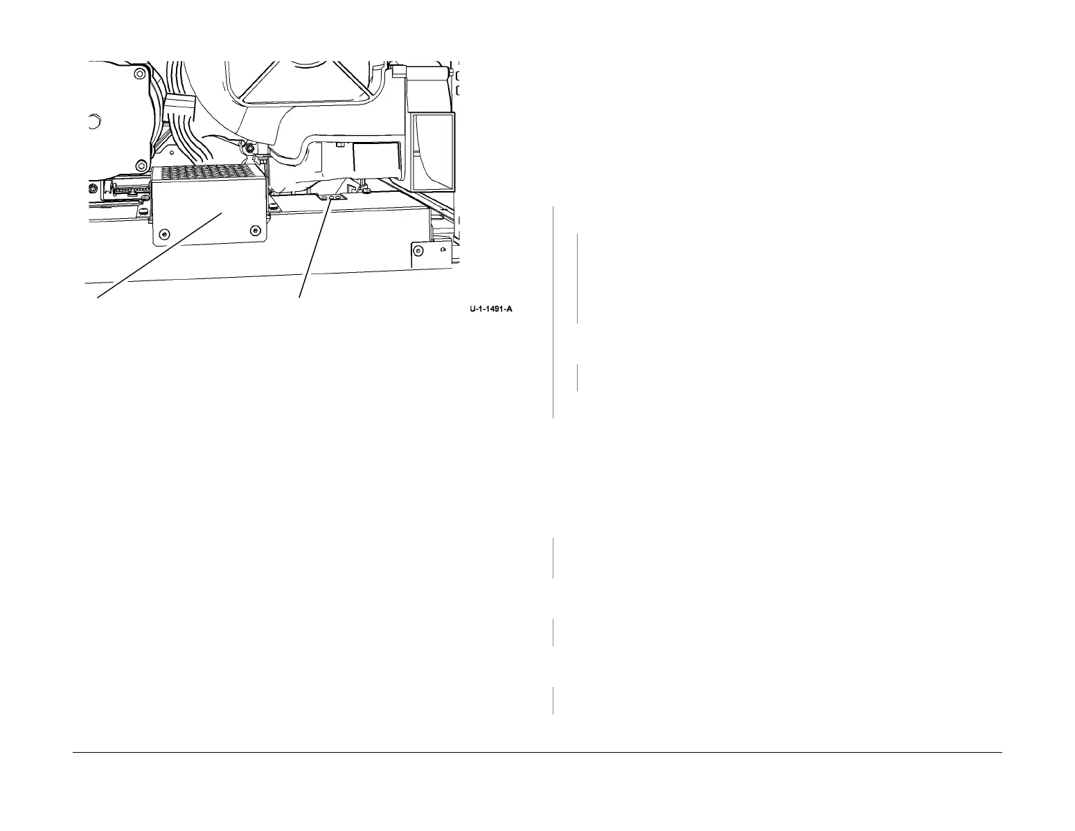
Figure 1 Component location
01-530-00 +/- 50V Short Circuit and Overload RAP
01-530-00 An over current condition has been detected with the +50V or -50V supply.
Procedure
WARNING
Ensure that the electricity to the machine is switched off while performing tasks that do
not need electricity. Refer to GP 14. Disconnect the power cord. Electricity can cause
death or injury. Moving parts can cause injury.
Switch off the machine, then switch on the machine, GP 14. Check the PEST fault history,
dC123.
There are hard PEST faults shown.
YN
The red LED, Figure 1, is illuminated.
YN
Perform the short circuit checks that follow:
+50V Short Circuit Check
-50V Short Circuit Check
If no short circuit is found and the supply is still not available, install a new power
supply unit, PL 1.15 Item 2.
Refer to WD 1.4 and WD 9.4. The voltage on PJ902 pin 29 on the drum driver PWB
is less than +1.5V.
YN
Install a new power supply unit, PL 1.15 Item 2.
Install a new drum driver PWB, PL 1.15 Item 4.
Perform the RAP(s) given by the hard PEST fault code(s).
+50V Short Circuit Check
Procedure
Switch off the machine, GP 14.
Refer to WD 1.4. Disconnect PJDC1 from the power supply unit and check for a short circuit
between pin 10 of the disconnected PJ and the chassis.
The circuit is good.
YN
Go to 01J and follow the procedure for the IME controller PWB.
Go to 01J and follow the procedure for the Quad wave amp PWB.
Refer to WD 1.5. Disconnect PJDC3 from the power supply unit and check for a short circuit
between pin 12 of the disconnected PJ and the chassis.
The circuit is good.
YN
Go to 01J and follow the procedure for the media path driver PWB.
With PJDC3 still disconnected from the power supply unit, check for a short circuit between
pins 13 and 14 of the disconnected PJ and the chassis.
the circuit is good.
YN
Go to 01J and follow the procedure for the drum driver PWB.
No short has been found in the +50V circuits, refer to the fault history for an insight into the
fault area, then go to 01J and check that area.
Yellow LED
Power supply unit

Table of Contents

Other manuals for Xerox ColorQube 9301

Related product manuals