EasyManua.ls Logo

Husqvarna TE 310 - Cable Colour Coding (TC 450, TXC 450-510)

Husqvarna TE 310
420 pages
Print Icon
To Next Page IconTo Next Page
To Next Page IconTo Next Page
To Previous Page IconTo Previous Page
To Previous Page IconTo Previous Page
Loading...
M.3Part. N. 8000 H1344 (10-2009)
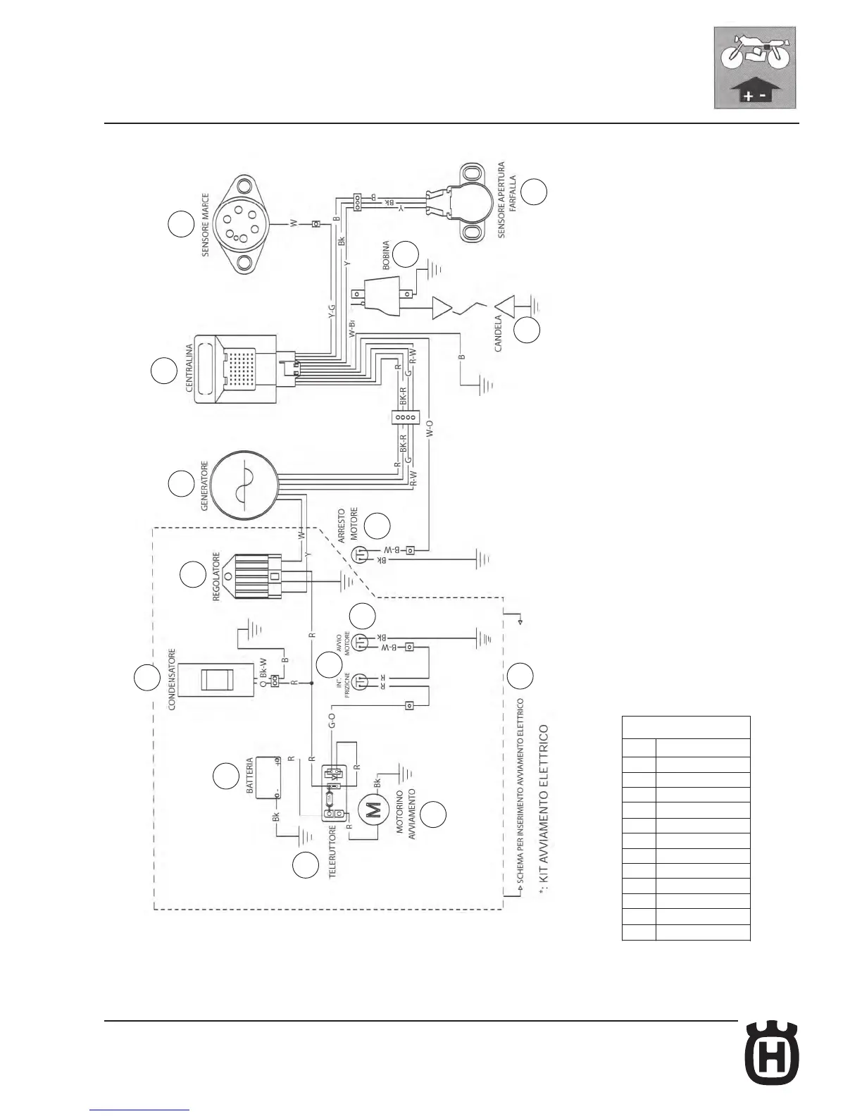
ELECTRIC SYSTEM, DIGITAL INSTRUMENT
1
2
3
4
5
6
7
8
10
9
11
12
13
14
*
(TXC)
KEY TO ELECTRIC DIAGRAM
(TC-TXC 450-510)
1. Electronic power unit
2. Alternator
3. Voltage regulator (TXC)
4. Condenser (TXC)
5. Battery (TXC)
6. Electric start remote control switch
(TXC)
7. Starting motor (TXC)
8. Spark plug
9. Gear shift position sensor
10. Electronic coil
11. Carburetor throttle position sensor
12. Engine stop
13. Engine start (TXC)
14. Clutch microswitch (TXC)
Cable colour coding
B Blue
Br Brown
Bk Black
G Green
Gr Grey
Gr/R Grey/Red
O Orange
P Pink
R Red
Sb Sky blue
V Violet
W White
Y Yellow

Table of Contents

Related product manuals