EasyManua.ls Logo

REXROTH TS 2plus - Page 314

REXROTH TS 2plus
438 pages
Print Icon
To Next Page IconTo Next Page
To Next Page IconTo Next Page
To Previous Page IconTo Previous Page
To Previous Page IconTo Previous Page
Loading...
Bosch Rexroth AG TS 2plus 4.21118
b = b
WT
-5,2
l = l
WT
-5,2
rr op
f
e
d
c
b
a
cc
0
39,5 kmtu tt n
39,5
8M12x1
16
3,5
0
4,8
rq
ii
h
g
i
j
s
0
00012903.eps
54,9
0,3
15,4
0,3
 2-16
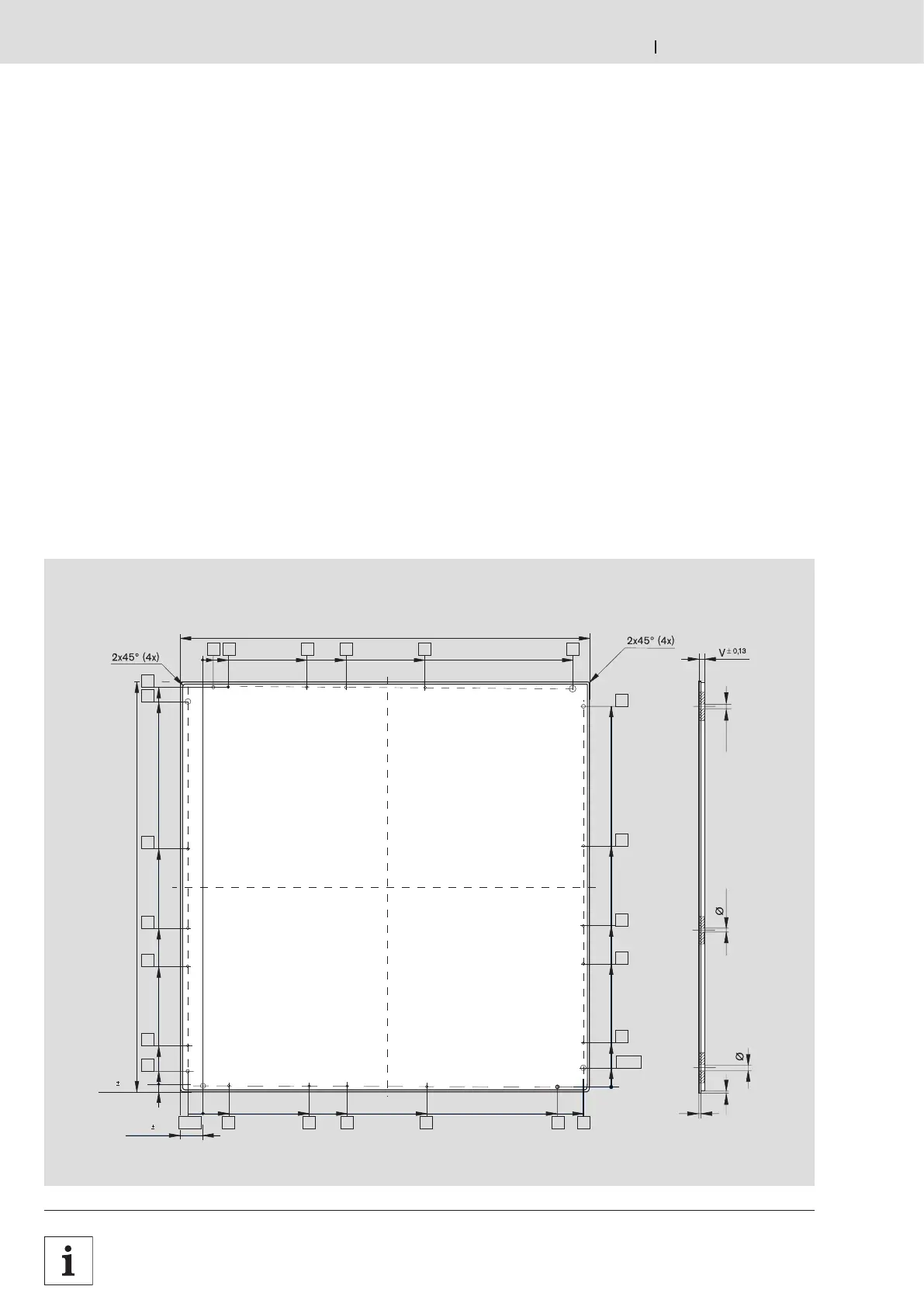
Technische Daten · Technical Data · Données techniques
3 842 531
138 (2013-06)
WT 2: Trägerplatte Aluminium 8 mm
WT 2: Aluminum carrying plate 8 mm
WT 2: Plaque-support d’aluminium 8 mm
Matériau:
Aluminium de 8 mm.
Gabarits de perçage pour les systèmes
d’identification et de mémorisation
de données Catalogue Systèmes
d’identification.
Material:
8 mm thick aluminum.
Drilling plans for identification and data
storage systems
Identification systems catalog.
Material:
Aluminium 8 mm dick .
Bohrbilder für Identifikations- und
Datenspeichersysteme
Katalog Identifikationssysteme.
WT 2: Bauelemente
WT 2: Components
WT 2: Éléments

Table of Contents

Related product manuals