EasyManua.ls Logo

REXROTH TS 2plus - Bandstrecke BS 2;T; BS 2;T belt section; Section a bande BS 2;T

REXROTH TS 2plus
438 pages
Print Icon
To Next Page IconTo Next Page
To Next Page IconTo Next Page
To Previous Page IconTo Previous Page
To Previous Page IconTo Previous Page
Loading...
Bosch Rexroth AG TS 2plus 4.211–66
 5-22
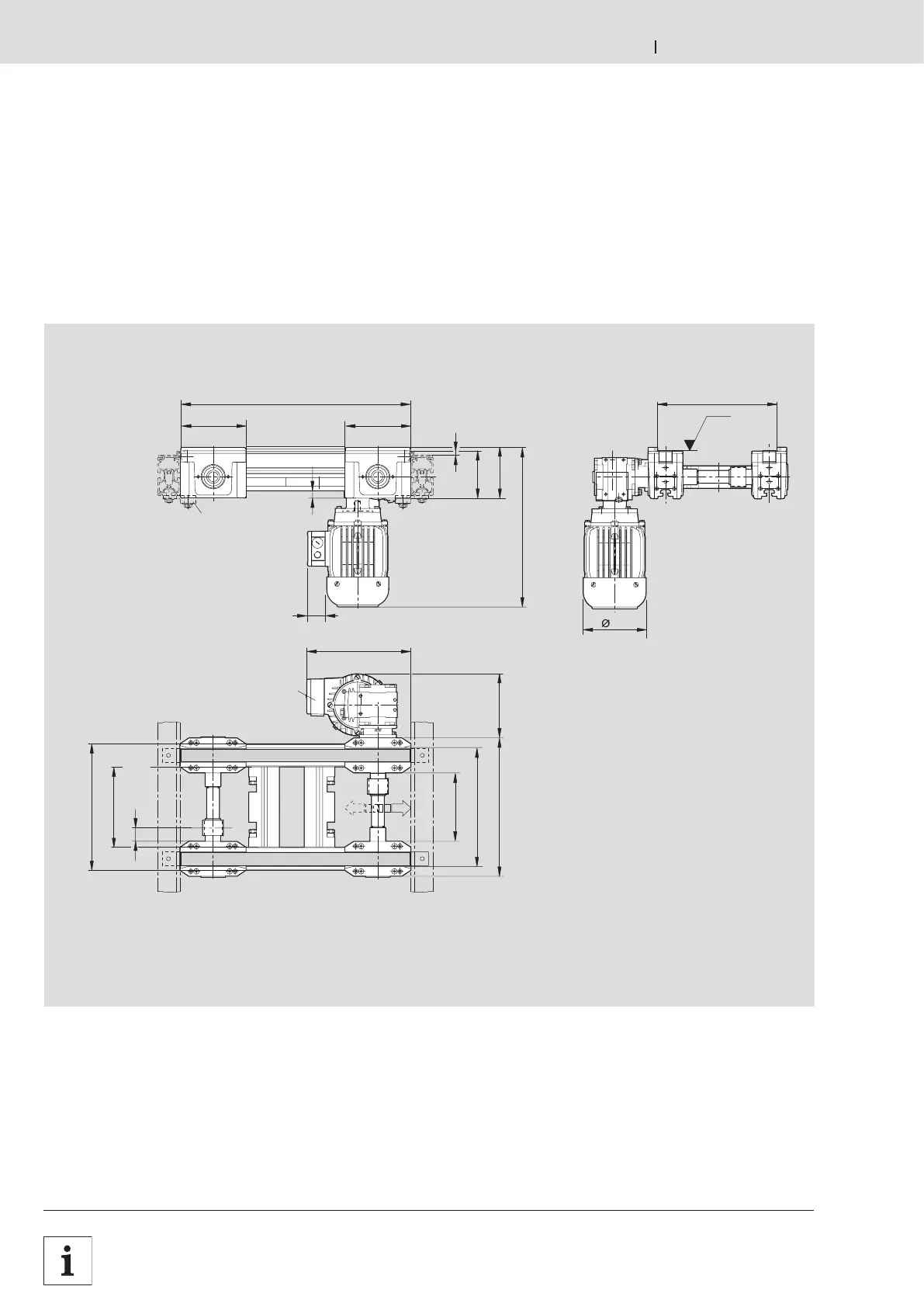
b
l
130130
205
MA = L
3842525110
10
95
b-75
b-100
b+40 130
b
26 (UB=1)
46,5 (UB=2)
b+40
102
330
15
00116829.eps
45
123
3 842 999 722
BS 2/T
Technische Daten · Technical Data · Données techniques
3 842 531
138 (2013-06)
Bandstrecke BS 2/T
BS 2/T belt section
Section a bande BS 2/T

Table of Contents

Related product manuals