EasyManua.ls Logo

REXROTH TS 2plus - Hub-Quereinheit HQ 2;S; HQ 2;S lift transverse unit; Unité de levée transversale HQ 2;S

REXROTH TS 2plus
438 pages
Print Icon
To Next Page IconTo Next Page
To Next Page IconTo Next Page
To Previous Page IconTo Previous Page
To Previous Page IconTo Previous Page
Loading...
Bosch Rexroth AG TS 2plus 4.211–64
b
L
+ 15
b
L
180
100
b
L
- 30
b
L
- 75
280
113
152
b
Q
+ 60
30
b
Q
+ 48
3
5
1
4
2
L
Q
00116035.eps
b
Q
MA = S
D 6
BG2
13
00116547.eps
2
D 6D 6
42
513
00116548.eps
 5-16
3 842 999 888
Technische Daten · Technical Data · Données techniques
3 842 531
138 (2013-06)
Hub-Quereinheit HQ 2/S
HQ 2/S lift transverse unit
Unité de levée transversale HQ 2/S
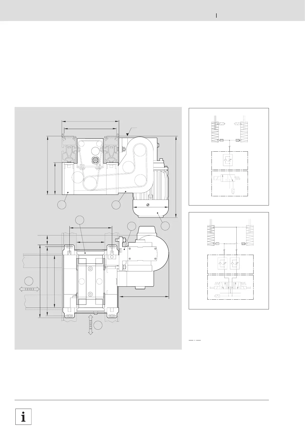
1 Hub-Quereinheit HQ 2/S
2 Antriebsmotor
3 Verbindungssatz
4 Motoranbausatz
5 Schutzkasten
1 HQ 2/S lift transverse unit
2 Drive motor
3 Connecting kit
4 Motor attachment kit
5 Housing element
1
Unité de levée transversale HQ 2/S
2 Moteur d’entraînement
3 Jeu de jonction
4 Jeu de montage moteur
5 Carter
nicht im Lieferumfang
not included in scope of delivery
non compris dans la fourniture

Table of Contents

Related product manuals