EasyManua.ls Logo

REXROTH TS 2plus - Hub-Quereinheit HQ 2;O; HQ 2;O lift transverse unit; Unité de levée transversale HQ 2;O

REXROTH TS 2plus
438 pages
Print Icon
To Next Page IconTo Next Page
To Next Page IconTo Next Page
To Previous Page IconTo Previous Page
To Previous Page IconTo Previous Page
Loading...
1
2
3
4
5
6
7
8
9
10
11
12
13
14
15
16
17
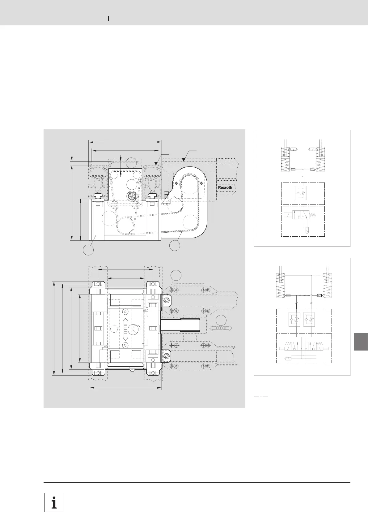
Bosch Rexroth AGTS 2plus 4.2 11–65
1
3
2
4
L
Q
b
L
+ 15
b
L
10
180
100
21
b
L
- 30
b
L
- 75
b
L
+ 12
b
Q
+ 60
b
Q
+ 48
b
Q
+ 36
b
Q
00116040.eps
D 6
BG2
13
00116547.eps
2
D 6D 6
42
513
00116548.eps
 5-18
3 842 998 113
Technische Daten · Technical Data · Données techniques
3 842 531
138 (2013-06)
Hub-Quereinheit HQ 2/O
HQ 2/O lift transverse unit
Unité de levée transversale HQ 2/O
L Förderrichtung Längsstrecke
Q Förderrichtung Querstrecke
1 Hub
2 Schutzkasten
3 Zahnriemen für Antrieb
4 Befestigung für BS 2/T
L Transport direction of longitudinal
conveyor section
Q Transport direction of transverse
conveyor section
1 Stroke
2 Housing element
3 Toothed drive belt
4 Attachment for BS 2/T
L Sens de transport de la section
longitudinale
Q Sens de transport de la section
transversale
1 Course
2 Carter
3 Courroie dentée d’entraînement
4 Fixation pour BS 2/T
nicht im Lieferumfang
not included in scope of delivery
non compris dans la fourniture

Table of Contents

Related product manuals