EasyManua.ls Logo

REXROTH TS 2plus - Positioniereinheit PE 2;X; PE 2;X position unit; Unité de positionnement PE 2;X

REXROTH TS 2plus
438 pages
Print Icon
To Next Page IconTo Next Page
To Next Page IconTo Next Page
To Previous Page IconTo Previous Page
To Previous Page IconTo Previous Page
Loading...
Bosch Rexroth AG TS 2plus 4.211–76
1
3
5
2
4
00013098
00125225.eps
0
1)
I
T
-66
35,6
38,6
132,8
0
ST 2
3)
1)
2)
40
4,4
33
4)
19,6
9
"X"
"X"
12
 7-6
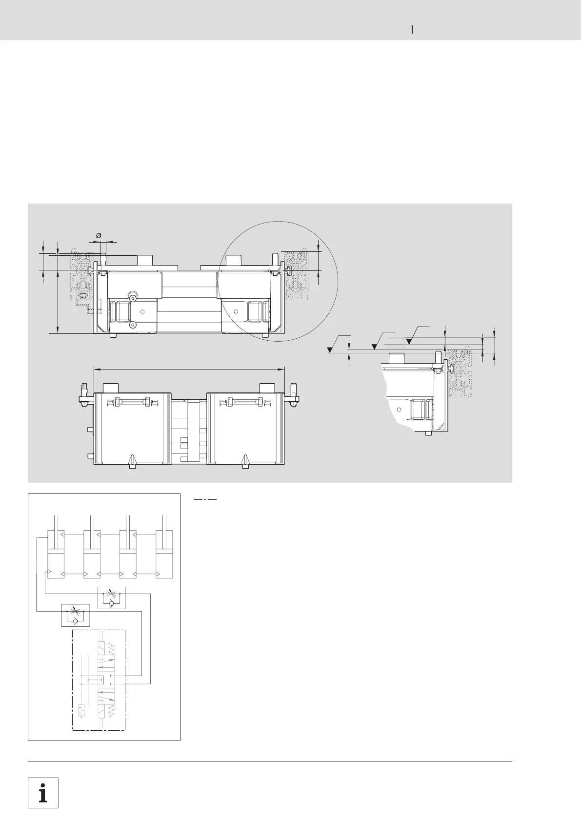
Technische Daten · Technical Data · Données techniques
3 842 531
138 (2013-06)
Positioniereinheit PE 2/X
PE 2/X position unit
Unité de positionnement PE 2/X
nicht im Lieferumfang
not included in scope of delivery
non compris dans la fourniture
1) Förderebene ST 2
2) PE 2/X untere Stellung: 4,4 mm
unter Förderebene ST 2
3) PE 2/X obere Stellung: 9 mm
über Förderebene ST 2
4) Gesamthub 33 mm
1) ST 2 conveyor level
2) PE 2/X, lower position: 4.4 mm
below ST 2 conveyor level
3) PE 2/X, upper position: 9 mm
above ST 2 conveyor level
4) Total stroke 33 mm
1) Niveau de transport ST
2) Position inférieure PE 2/X : 4,4 mm
sous le niveau de transport ST 2
3) Position supérieure PE 2/X : 9 mm
au-dessus du niveau de transport ST 2
4) Course totale 33 mm

Table of Contents

Related product manuals