EasyManua.ls Logo

REXROTH TS 2plus - Hub-Positioniereinheit HP 2;L; HP 2;L lift position unit; Unité de levée et de positionnement HP 2;L

REXROTH TS 2plus
438 pages
Print Icon
To Next Page IconTo Next Page
To Next Page IconTo Next Page
To Previous Page IconTo Previous Page
To Previous Page IconTo Previous Page
Loading...
Bosch Rexroth AG TS 2plus 4.211–78
00127917.eps
H2
H3
H1
2
(2)
(22)
10,5
(125 )
(40)
240 x 240
(22)
 7-8
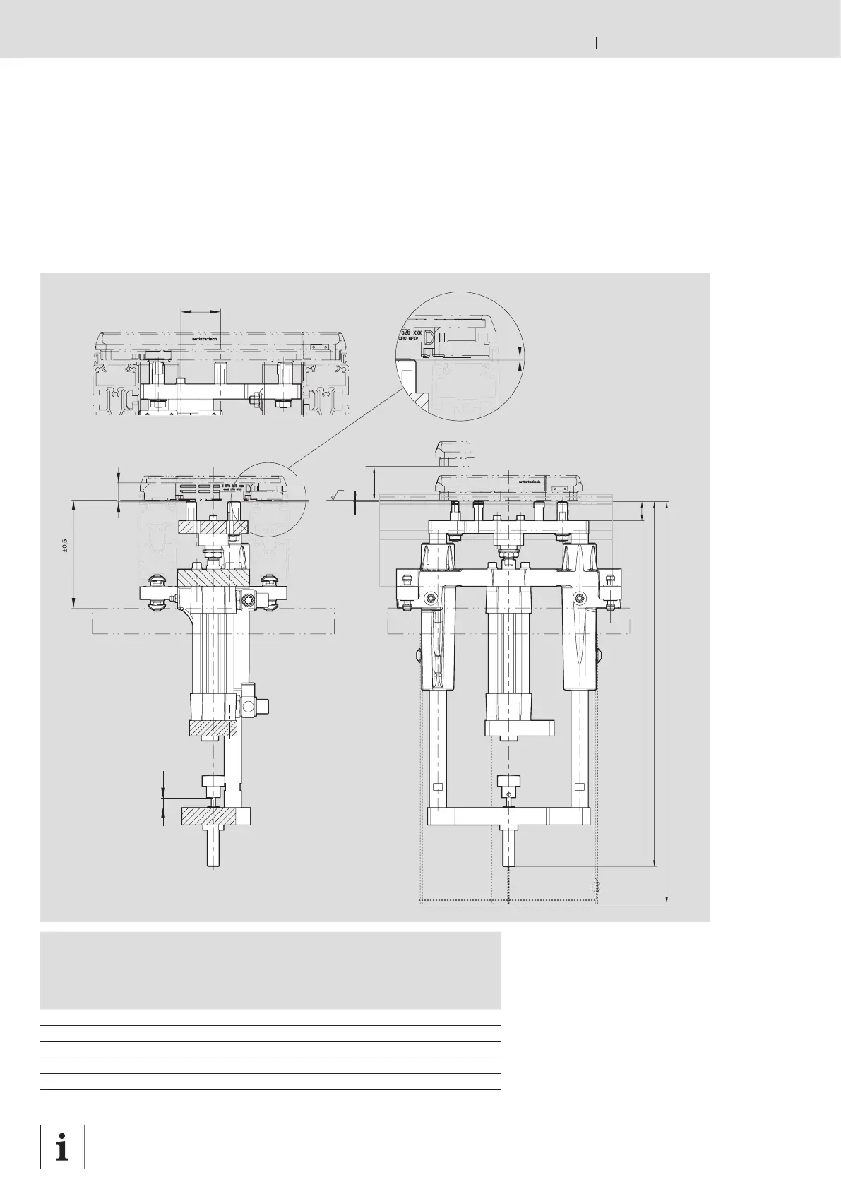
Technische Daten · Technical Data · Données techniques
3 842 531
138 (2013-06)
Hub
Lift
Levée
[mm]
H
1
ausgefahren
extended
prolongé
[mm]
H
2
[mm]
H
3
[mm]
50 28
400
465
100
78
500 685
160
138
620 685
200
178
700 885
250
228
800 885
Hub-Positioniereinheit HP 2/L
HP 2/L lift position unit
Unité de levée et de positionnement HP 2/L

Table of Contents

Related product manuals