EasyManua.ls Logo

REXROTH TS 2plus - Wippe WI;M; WI;M rocker; Bascule WI;M

REXROTH TS 2plus
438 pages
Print Icon
To Next Page IconTo Next Page
To Next Page IconTo Next Page
To Previous Page IconTo Previous Page
To Previous Page IconTo Previous Page
Loading...
Bosch Rexroth AG TS 2plus 4.211–102
60
60
28
4040
19
(91)
37
10,5
14
29
1)
00012816.eps
37,5
2)
31,5
0
0
3)
1)
13
2
D 4
VE2
00116566.eps
 8-33
Technische Daten · Technical Data · Données techniques
3 842 531
138 (2013-06)
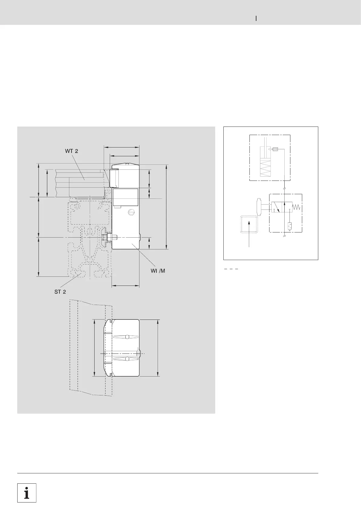
Wippe WI/M
WI/M rocker
Bascule WI/M
nicht im Lieferumfang
not included in scope of delivery
non compris dans la fourniture
1) Transportebene
2) Anschlag unbetätigt
3) Anschlag betätigt
1) Transport level
2) Limit stop not activated
3) Limit stop activated
1) Niveau de transport
2) Butée non activée
3) Butée activée

Table of Contents

Related product manuals