EasyManua.ls Logo

REXROTH TS 2plus - Antriebsstation AS 2;C-700, AS 2;R-1200 und AS 2;R-V-2200; AS 2;C-700, AS 2;R-2200 and AS 2;R-V-2200 Drive unit; Poste de entraînement AS 2;C-700, AS 2;R-2200 et AS 2;R-V-2200

REXROTH TS 2plus
438 pages
Print Icon
To Next Page IconTo Next Page
To Next Page IconTo Next Page
To Previous Page IconTo Previous Page
To Previous Page IconTo Previous Page
Loading...
1
2
3
4
5
6
7
8
9
10
11
12
13
14
15
16
17
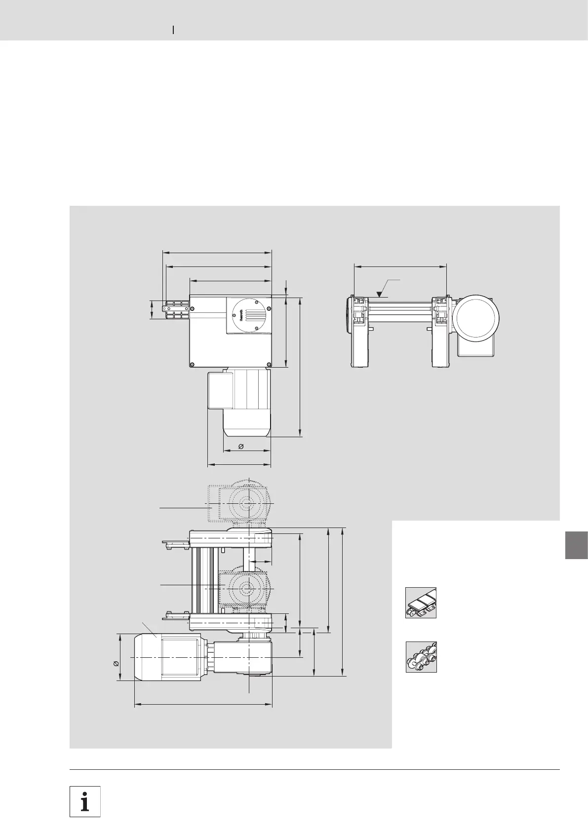
Bosch Rexroth AGTS 2plus 4.2 11–35
b +40
b 105
165
70
b +182
280
217
b
(MA = M)
160
470
160
360
375
40
240
470
7
00013277. eps
70
MA = R
(MA = L)
AS 2/C-700
AS 2/R-2200
AS 2/R-V-2200
l
AS
=
625 mm
l
AS
=
625 mm
 3-36,  3-66,  3-91
3 842 998 039
3 842 998 041
3 842 998 234
Technische Daten · Technical Data · Données techniques
3 842 531
138 (2013-06)
Antriebsstation AS 2/C-700, AS 2/R-2200 und AS 2/R-V-2200
AS 2/C-700, AS 2/R-2200 and AS 2/R-V-2200 Drive unit
Poste de entraînement AS 2/C-700, AS 2/R-2200
et AS 2/R-V-2200
Erforderliche Länge des Fördermediums
Required length of the conveyor media
Longueur de convoyeur nécessaire

Table of Contents

Related product manuals