EasyManua.ls Logo

REXROTH TS 2plus - Gedämpfter Vereinzeler VE 2;D-150; VE 2;D‑150 dampened stop gate; Séparateur amorti VE 2;D‑150

REXROTH TS 2plus
438 pages
Print Icon
To Next Page IconTo Next Page
To Next Page IconTo Next Page
To Previous Page IconTo Previous Page
To Previous Page IconTo Previous Page
Loading...
Bosch Rexroth AG TS 2plus 4.211–92
 8-14
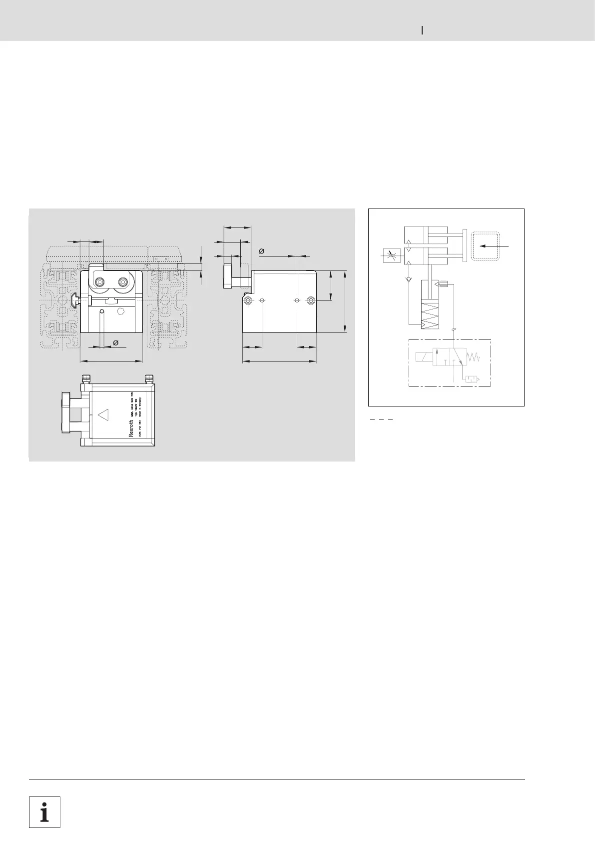
00125250.eps
6
80
1911
8,5
38,5
80
25 25
95
4,8 (4x)10
30
20
VE 2/D-150
13
2
00126825.eps
D 6
Technische Daten · Technical Data · Données techniques
3 842 531
138 (2013-06)
Gedämpfter Vereinzeler VE 2/D-150
VE 2/D-150 dampened stop gate
Séparateur amorti VE 2/D-150
nicht im Lieferumfang
not included in scope of delivery
non compris dans la fourniture
*) Hub
*) Stroke
*) Levée

Table of Contents

Related product manuals