EasyManua.ls Logo

REXROTH TS 2plus - Dämpfer DA 2;100…; DA 2;100… damper; Amortisseur DA 2;100…

REXROTH TS 2plus
438 pages
Print Icon
To Next Page IconTo Next Page
To Next Page IconTo Next Page
To Previous Page IconTo Previous Page
To Previous Page IconTo Previous Page
Loading...
Bosch Rexroth AG TS 2plus 4.211–96
 8-21
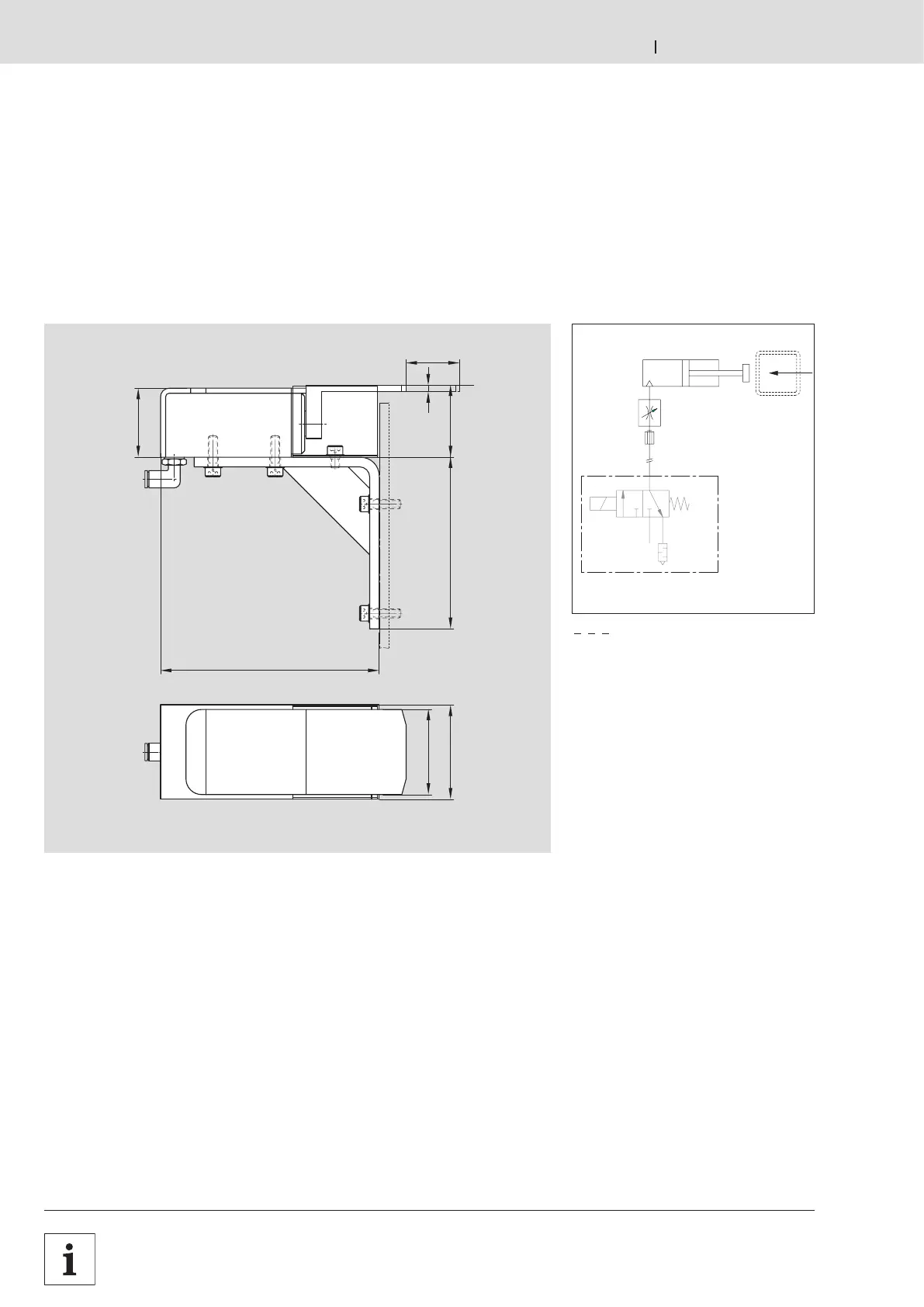
00116083.eps
140
44
54
60 11
04
6
4
max. 35
3 842 523 645
13
2
D 6
00116565.eps
Technische Daten · Technical Data · Données techniques
3 842 531
138 (2013-06)
Dämpfer DA 2/100…
DA 2/100… damper
Amortisseur DA 2/100…
nicht im Lieferumfang
not included in scope of delivery
non compris dans la fourniture

Table of Contents

Related product manuals