EasyManua.ls Logo

REXROTH TS 2plus - Hub-Dreheinheit HD 2; HD 2 lift rotate unit; Unité de levée et de rotation HD 2

REXROTH TS 2plus
438 pages
Print Icon
To Next Page IconTo Next Page
To Next Page IconTo Next Page
To Previous Page IconTo Previous Page
To Previous Page IconTo Previous Page
Loading...
1
2
3
4
5
6
7
8
9
10
11
12
13
14
15
16
17
Bosch Rexroth AGTS 2plus 4.2 11–85
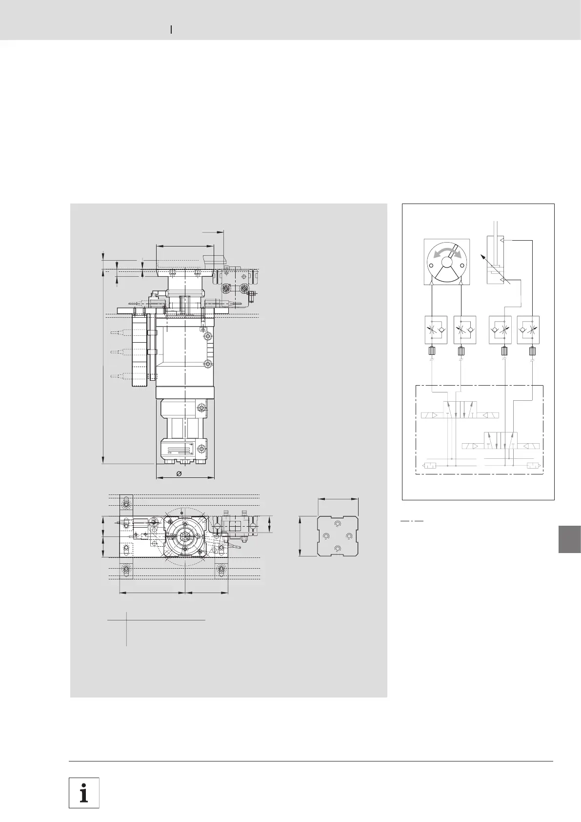
00117863.eps
h
1
= h + 400
h
1
1515
l
WT
l
WT-73
120
90e
d
c
f
b
WT
- 73
l
WT
- 73
b
WT
c d e f
1604242140 34
240 82 82 110 42
320 122122 110 42
 7-24
135
2
D 8D 8
4
00116562.eps
D 8 D 8
135
24
3 842 525 847
...
3 842 525 870
Technische Daten · Technical Data · Données techniques
3 842 531
138 (2013-06)
Hub-Dreheinheit HD 2
HD 2 lift rotate unit
Unité de levée et de rotation HD 2
nicht im Lieferumfang
not included in scope of delivery
non compris dans la fourniture

Table of Contents

Related product manuals