EasyManua.ls Logo

REXROTH TS 2plus - Antriebsstation AS 2;C-100 und AS 2;R-300; AS 2;C-100 and AS 2;R-300 Drive unit; Poste de entraînement AS 2;C-100 et AS 2;R-300

REXROTH TS 2plus
438 pages
Print Icon
To Next Page IconTo Next Page
To Next Page IconTo Next Page
To Previous Page IconTo Previous Page
To Previous Page IconTo Previous Page
Loading...
Bosch Rexroth AG TS 2plus 4.211–32
125
39
70
270
17
0b
107
100
210
110
105
b -100
bb
b +40 130
16
07
00013212.eps
45
(MA =R)
MA =L
(MA =M)
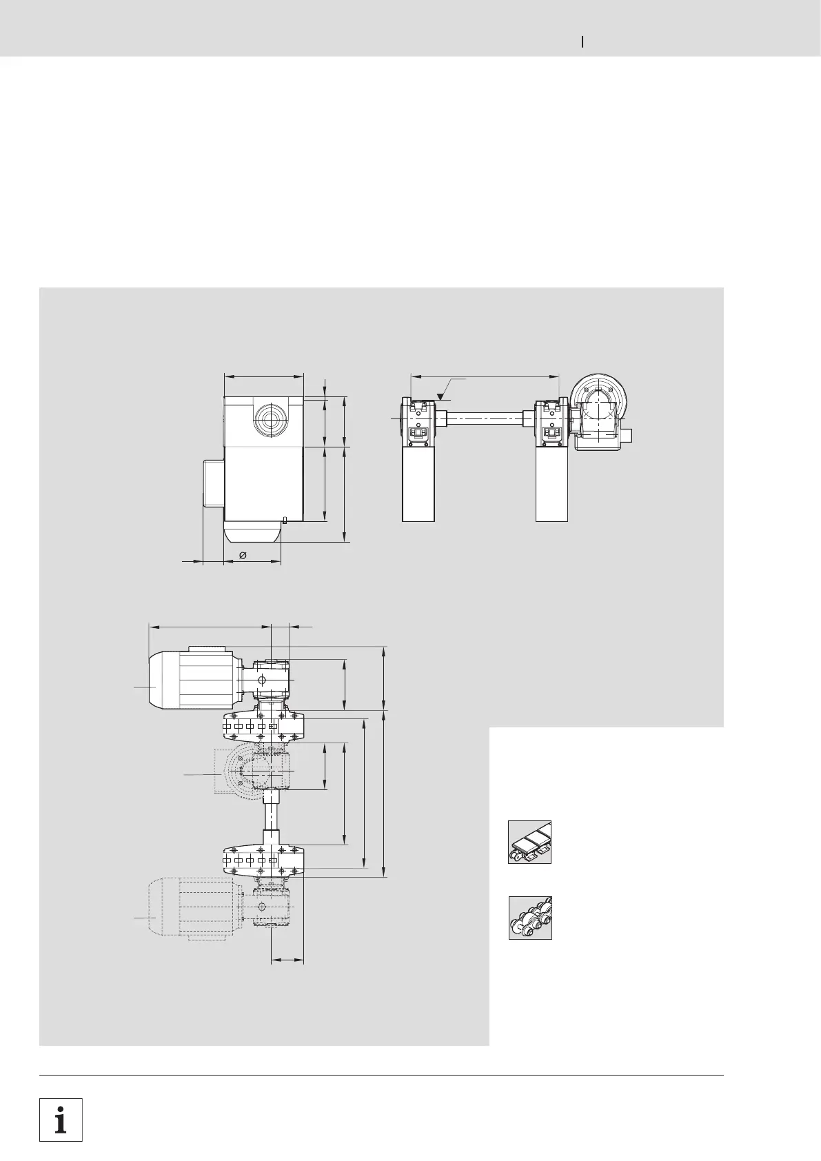
AS 2/C-100
AS 2/R-300
l
AS
=
475 mm
l
AS
=
475 mm
 3-34,  3-64
3 842 998 053
3 842 998 052
Technische Daten · Technical Data · Données techniques
3 842 531
138 (2013-06)
Antriebsstation AS 2/C-100 und AS 2/R-300
AS 2/C-100 and AS 2/R-300 Drive unit
Poste de entraînement AS 2/C-100 et AS 2/R-300
Erforderliche Länge des Fördermediums
Required length of the conveyor media
Longueur de convoyeur nécessaire

Table of Contents

Related product manuals