EasyManua.ls Logo

REXROTH TS 2plus - Elektrischer Quertransport EQ 2;TE; EQ 2;TE electrical transverse conveyor; Convoyeur transversal électrique EQ 2;TE

REXROTH TS 2plus
438 pages
Print Icon
To Next Page IconTo Next Page
To Next Page IconTo Next Page
To Previous Page IconTo Previous Page
To Previous Page IconTo Previous Page
Loading...
1
2
3
4
5
6
7
8
9
10
11
12
13
14
15
16
17
Bosch Rexroth AGTS 2plus 4.2 11–63
4
2
1
3
L
Q
b
L
+ 15
b
Q
+ 60
b
Q
130
330
180
100
10
I
ges
= I + b
L
+ 15
b
L
I
00116082.eps
123
 5-12
3 842 999 896
D 6
BG2
13
00116547.eps
2
D 6D 6
42
513
00116548.eps
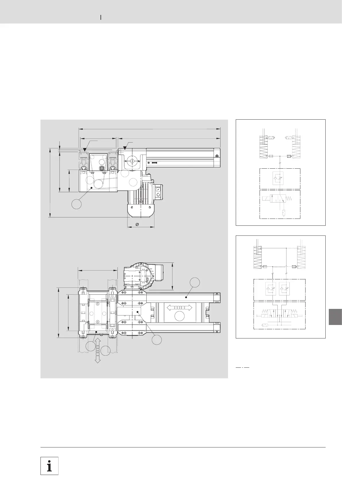
Technische Daten · Technical Data · Données techniques
3 842 531
138 (2013-06)
Elektrischer Quertransport EQ 2/TE
EQ 2/TE electrical transverse conveyor
Convoyeur transversal électrique EQ 2/TE
L Förderrichtung Längstransport
Q Förderrichtung Quertransport
1 Hub-Quereinheit HQ 2/O
2 Bandstrecke BS 2/TE
3 Verbindungssatz
4 Schutzkasten
L Transport direction of longitudinal
conveyor section
Q Transport direction of transverse
conveyor section
1 Lift transverse unit HQ 2/O
2 Belt section BS 2/TE
3 Connecting kit
4 Housing element
L Sens de transport de la section
longitudinale
Q Sens de transport de la section
transversale
1
Unité de levée transversale HQ 2/O
2 Section à bande BS 2/TE
3 Jeu de jonction
4 Carter
nicht im Lieferumfang
not included in scope of delivery
non compris dans la fourniture

Table of Contents

Related product manuals