EasyManua.ls Logo

REXROTH TS 2plus - Gedämpfter Vereinzeler VE 2;D-60; VE 2;D-60 dampened stop gate; Séparateur amorti VE 2;D-60

REXROTH TS 2plus
438 pages
Print Icon
To Next Page IconTo Next Page
To Next Page IconTo Next Page
To Previous Page IconTo Previous Page
To Previous Page IconTo Previous Page
Loading...
1
2
3
4
5
6
7
8
9
10
11
12
13
14
15
16
17
Bosch Rexroth AGTS 2plus 4.2 11–91
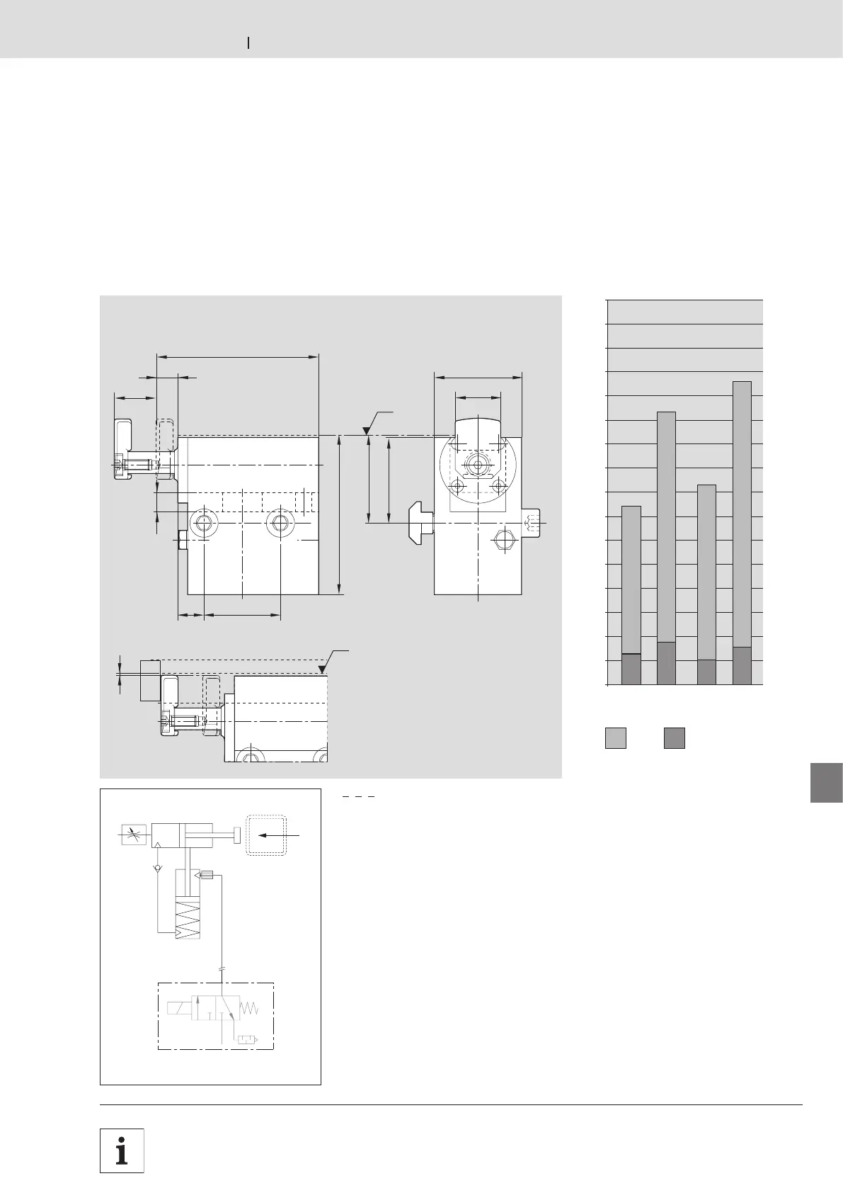
00116071.eps
20
40
10
21,5*
75,8
3512
39
40
76
9*
1
VE 2/D-60
13
2
00116564a.eps
D 4
 8-13
4 bar
800
0
l = 1 ml = 3 ml = 1 ml = 3 m
50
100
150
200
250
300
350
400
450
500
550
600
650
700
750
[ms]
6 bar
00130155.eps
60
310
90
470
50
360
80
550
Technische Daten · Technical Data · Données techniques
3 842 531
138 (2013-06)
Gedämpfter Vereinzeler VE 2/D-60
VE 2/D-60 dampened stop gate
Séparateur amorti VE 2/D-60
*) Hub
*) Stroke
*) Levée
nicht im Lieferumfang
not included in scope of delivery
non compris dans la fourniture
l = Schlauchlänge
Tube length
Longueur du tube
Schließen
Shutting
Fermeture
Öffnen 4 bar
Opening
Ouverture

Table of Contents

Related product manuals