EasyManua.ls Logo

REXROTH TS 2plus - Wippe WI 2;H; WI 2;H rocker; Bascule WI 2;H

REXROTH TS 2plus
438 pages
Print Icon
To Next Page IconTo Next Page
To Next Page IconTo Next Page
To Previous Page IconTo Previous Page
To Previous Page IconTo Previous Page
Loading...
Bosch Rexroth AG TS 2plus 4.211–106
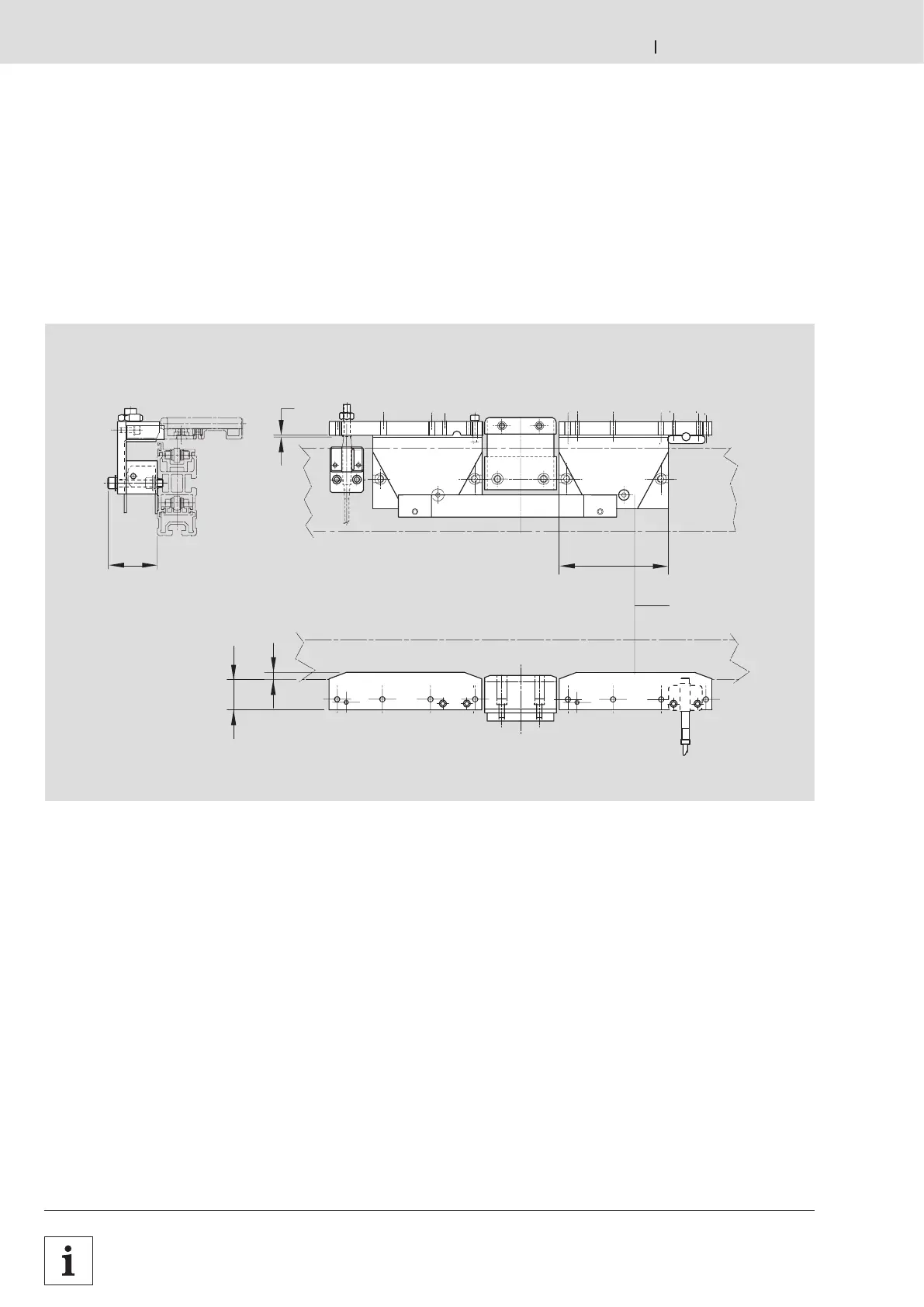
 8-36
00116775.eps
1,5
8
35
125
56,5
MS
Technische Daten · Technical Data · Données techniques
3 842 531
138 (2013-06)
Wippe WI 2/H
WI 2/H rocker
Bascule WI 2/H
MS = Zusätzliche Wippenverlängerung
MS = Additional rocker extension
MS = Rallonge supplémentaire

Table of Contents

Related product manuals