EasyManua.ls Logo

REXROTH TS 2plus - Vereinzeler VE 2;H-DA06; VE 2;H-DA06 stop gate; Séparateur VE 2;H-DA06

REXROTH TS 2plus
438 pages
Print Icon
To Next Page IconTo Next Page
To Next Page IconTo Next Page
To Previous Page IconTo Previous Page
To Previous Page IconTo Previous Page
Loading...
1
2
3
4
5
6
7
8
9
10
11
12
13
14
15
16
17
Bosch Rexroth AGTS 2plus 4.2 11–89
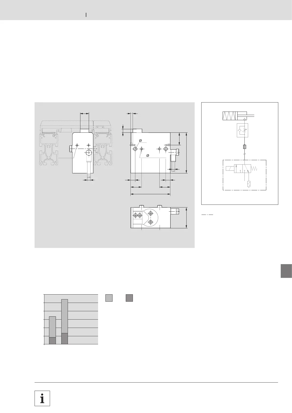
8,4
6x1
6x1
10,5
00116776.eps
10,5
25,5
4xM4T6
25,5
95
38
9850
4 x 4,8 H12
9
521
 8-11
4 bar
0
l = 1 m l = 3 m
50
100
150
200
250
300
[ms]
00117861.eps
67,5
202
42,5
125
VE 2/H-DA06
13
2
D 6
00139052.eps
Technische Daten · Technical Data · Données techniques
3 842 531
138 (2013-06)
Vereinzeler VE 2/H-DA06
VE 2/H-DA06 stop gate
Séparateur VE 2/H-DA06
nicht im Lieferumfang
not included in scope of delivery
non compris dans la fourniture
Öffnungs- und Schließzeiten
Opening and shutting times
Temps d’ouverture et de fermeture
l = Schlauchlänge
Tube length
Longueur du tube
Schließen
Shutting
Fermeture
Öffnen 4 bar
Opening
Ouverture

Table of Contents

Related product manuals