EasyManua.ls Logo

REXROTH TS 2plus - Positioniereinheit PE; PE 2 position unit; Unité de positionnement PE 2

REXROTH TS 2plus
438 pages
Print Icon
To Next Page IconTo Next Page
To Next Page IconTo Next Page
To Previous Page IconTo Previous Page
To Previous Page IconTo Previous Page
Loading...
1
2
3
4
5
6
7
8
9
10
11
12
13
14
15
16
17
Bosch Rexroth AGTS 2plus 4.2 11–75
80
F
00116777a.eps
= b
L
61
106
~52
16
~132
1
b
WT
-80
l
T
= 160 : l
T
+65
l
T
> 160 : l
T
-15
2,5
157
56
8
R11
 7-4
13
5
2
G 1/8"
G 1/8"
4
00127887
3 842 504 706
...
3 842 504 719
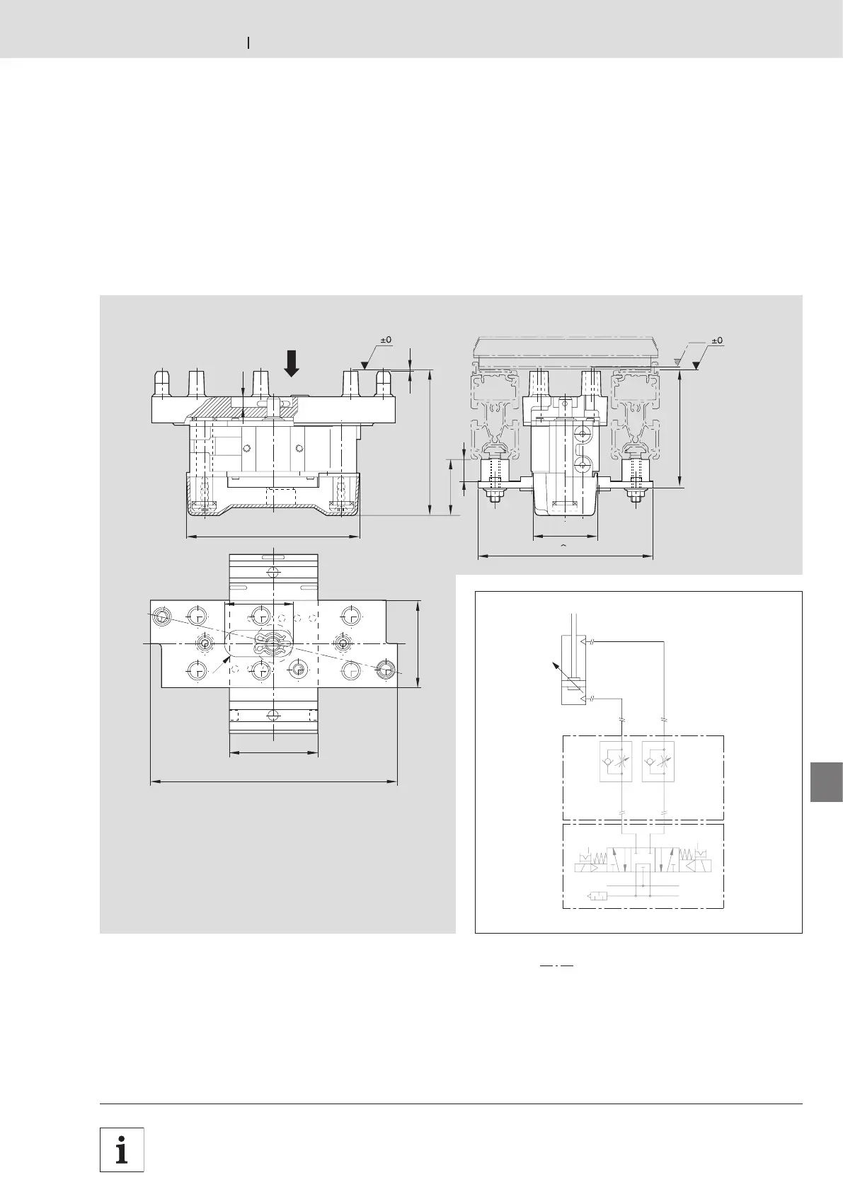
Technische Daten · Technical Data · Données techniques
3 842 531
138 (2013-06)
Positioniereinheit PE 2
PE 2 position unit
Unité de positionnement PE 2
nicht im Lieferumfang
not included in scope of delivery
non compris dans la fourniture

Table of Contents

Related product manuals