EasyManua.ls Logo

Valtra 6550 - Page 746

Valtra 6550
1361 pages
Print Icon
To Next Page IconTo Next Page
To Next Page IconTo Next Page
To Previous Page IconTo Previous Page
To Previous Page IconTo Previous Page
Loading...
199
Model Code Page
42 Gearbox
20C420
6250--8950
1. 9. 2002
1. 11. 1998
HiTech
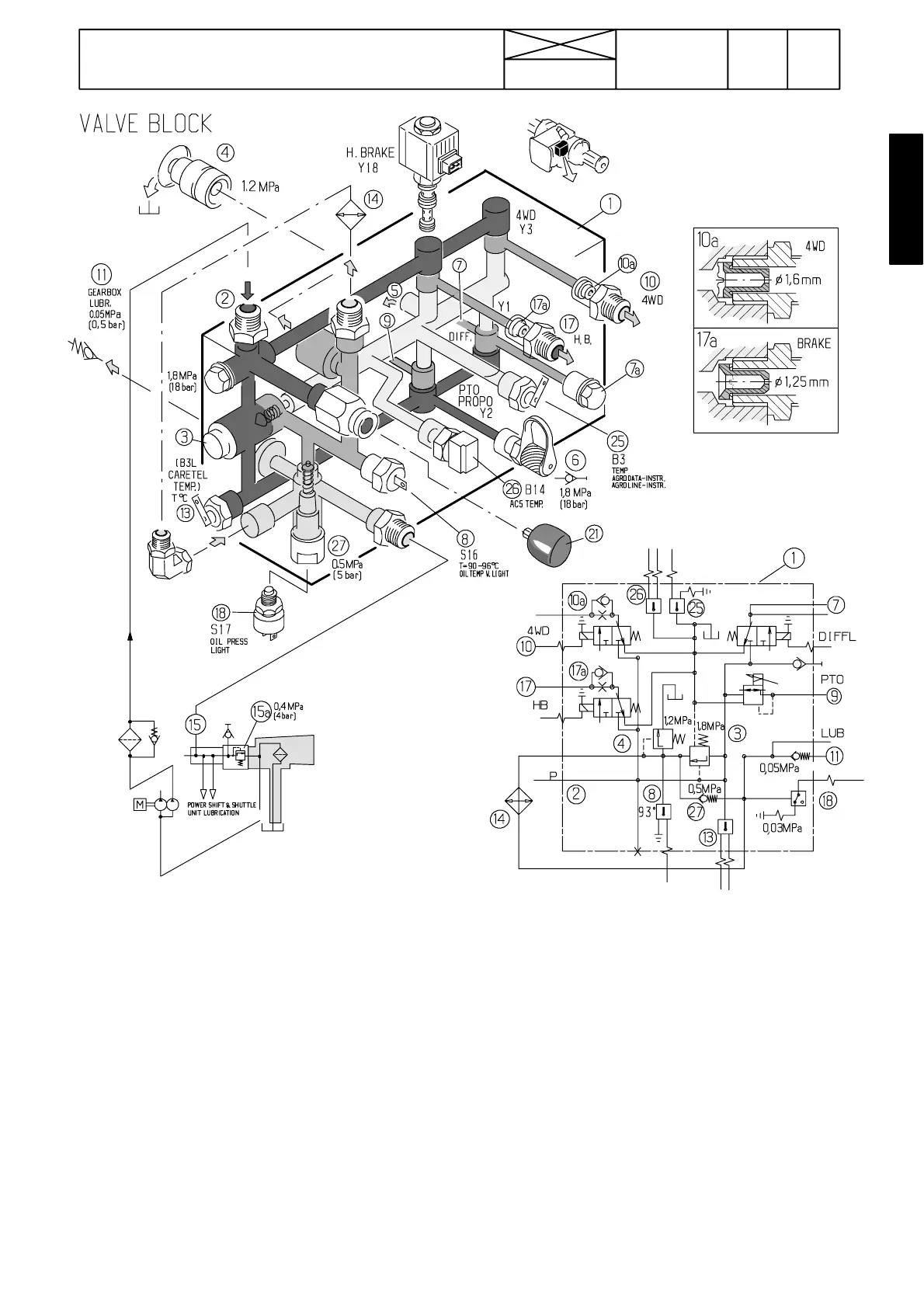
Picture 21C. Servo valve block on HiTech tractors (on the
LH side of the gearbox)
Note! See also picture on page 440/24.
HiTech Shuttle has caused the following modifications in
the servo valve block:
--- PTO cushio ning valve has been removed (PTO sol enoid
valve Y2 is proportional).
---ThevalvespindleoftheDPSclutchC3hasbeenre-
moved and C3 has its own propo rtional valve Y17 (is
placed on a separat e valve block on the gearbox).
--- V a l v e Y4 (DPS clutch C1) and valve Y6 (DPS clutch C2)
have been changed to proportional valves, and they are
placed on the DPS housing. Hand brake solenoid valve
Y18 (+valve 17a) has been added.
--- DPS restrictions have been removed. A pressure accu-
mulator has been fitted on the valve block (not in pic-
ture), which eliminates pressure drops during engaging/
disengaging t he multi---disc clutches.
--- Valves Y2 and Y1 have been connected with an oil chan-
nel. Oil cooler by ---pass valve has been added. Safety
valve limits max. pressure before the oil cooler to 0,7
MPa (was 0.4 MPa).
Pressure---limiting valve in the suction str ainer housing is of
0,4 MPa (was 0,2 MPa).
By increasing the lubri cating oil pressure and with a new
by ---pass of the oil cooler the oil amount, which flows direct
into the tank, has been tried to minimized.
Pressure sensor S17 has been placed under the block and
it measures actual pres sure after the oil cooler.
Behind plug 7a there is diff. lock clutch pressure.

Table of Contents

Related product manuals