EasyManua.ls Logo

wsm M7060 - Hi-Lo-Creep Shift Section

wsm M7060
639 pages
Print Icon
To Next Page IconTo Next Page
To Next Page IconTo Next Page
To Previous Page IconTo Previous Page
To Previous Page IconTo Previous Page
Loading...
TRANSMISSION
M6060, M7060, WSM
2-M13
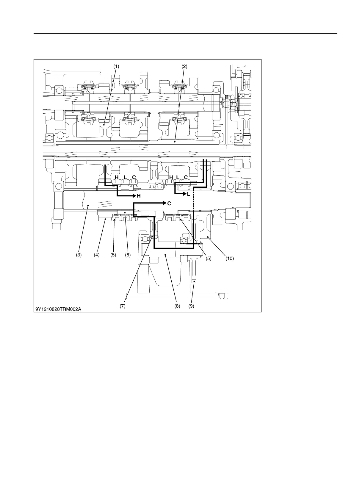
[4] HI-LO-CREEP SHIFT SECTION
Hi-Lo-Creep Shift
The Hi-Lo-Creep shift section allows the operator to change an auxiliary speed change lever is move to the
Hi-Lo-Creep position. The shifters (5) slides to the front or middle way by mechanical linkage to be engaged with the
27T gear (4) or 44T-24T gear (10) for H and L position. The shifters (5) slide to rear by mechanical linkage to be
engaged with the 14T gear shaft (8) for creep position.
Then, power is transmitted as follows.
The shifters (5) for H-L-C range locates on the 3rd shaft (3) and both shifters (5) are move together.
(Hi-Range)
2nd Shaft (2) 41T Gear (1) 27T Gear (4) Shifter (5) 3rd Shaft (3).
(Lo-Range)
2nd Shaft (14T Gear) (2) 44T-24T Gear (10) Shifter (5) 3rd Shaft (3).
(Creep Range)
2nd Shaft (14T Gear) (2) 44T-24T Gear (10) 45T Gear (9) 14T Gear Shaft (8) 44T Gear (7) Shifter
(5) 3rd Shaft (3).
9Y1210828TRM0013US0
(1) 41T Gear
(2) 2nd Shaft (14T Gear)
(3) 3rd Shaft
(4) 27T Gear
(5) Shifter
(6) Coupling
(7) 44T Gear
(8) 14T Gear Shaft (Creep)
(9) 45T Gear
(10) 44T-24T Gear
H: Hi Range
L: Lo Range
C: Creep
KiSC issued 08, 2013 A

Table of Contents

Related product manuals