EasyManua.ls Logo

wsm M7060 - HYDRAULIC CIRCUIT

wsm M7060
639 pages
Print Icon
To Next Page IconTo Next Page
To Next Page IconTo Next Page
To Previous Page IconTo Previous Page
To Previous Page IconTo Previous Page
Loading...
HYDRAULIC SYSTEM
M6060, M7060, WSM
7-M4
2. HYDRAULIC CIRCUIT
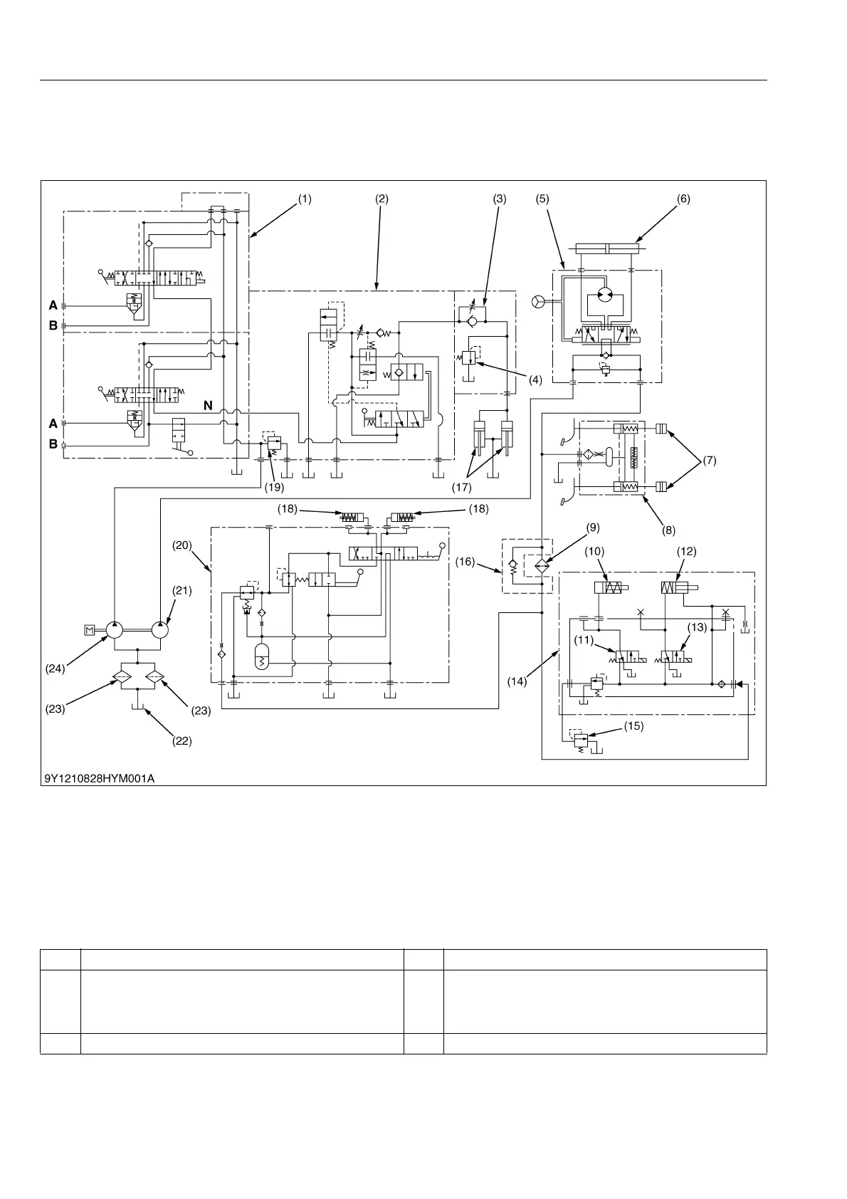
[1] TOTAL HYDRAULIC CIRCUIT
(1) F18/R18 Speed Transmission Model
Operating Pressure
9Y1210828HYM0004US0
(1) Auxiliary Control Valve
(2) Control Valve (3-point Hitch)
(3) Lowering Speed Adjusting
Valve
(4) Cylinder Safety Valve
(5) Power Steering Controller
(6) Steering Cylinder
(7) Brake Piston
(8) Brake Master Cylinder
(9) Oil Cooler
(10) PTO Clutch Pack
(11) Solenoid Valve (PTO)
(12) 4WD Clutch Pack
(13) Solenoid Valve (4WD)
(14) Solenoid Valve Assembly
(15) Relief Valve (Lubricating Line)
(16) Oil Cooler Check Valve
(17) Exterior Hydraulic Cylinder
(18) Shuttle Clutch Pack
(19) Relief Valve (3-point Hitch)
(20) Shuttle Valve
(21) Hydraulic Pump (Power
Steering, Brake, PTO Clutch,
4WD Clutch and Shuttle
Clutch)
(22) Oil Tank (Transmission Case)
(23) Hydraulic Oil Filter Cartridge
(24) Hydraulic Pump (3-point
Hitch)
A : To Implement Cylinder
B : To Implement Cylinder
N : N Port
(4) 23.1 to 24.5 MPa (236 to 249 kgf/cm
2
, 3350 to 3550 psi) (16) Approx. 0.8 MPa (8 kgf/cm
2
, 100 psi)
(5)
(Idling Engine Speed)
Above 12.3 MPa (125 kgf/cm
2
, 1780 psi)
(Maximum Engine Speed)
Below 18.6 MPa (190 kgf/cm
2
, 2700 psi)
(19) 18.9 to 19.8 MPa (192 to 202 kgf/cm
2
, 2730 to 2870 psi)
(14) 2.16 MPa (22.0 kgf/cm
2
, 313 psi)
KiSC issued 08, 2013 A

Table of Contents

Related product manuals