EasyManua.ls Logo

wsm M7060 - Blower Relay

wsm M7060
639 pages
Print Icon
To Next Page IconTo Next Page
To Next Page IconTo Next Page
To Previous Page IconTo Previous Page
To Previous Page IconTo Previous Page
Loading...
CABIN
M6060, M7060, WSM
9-M8
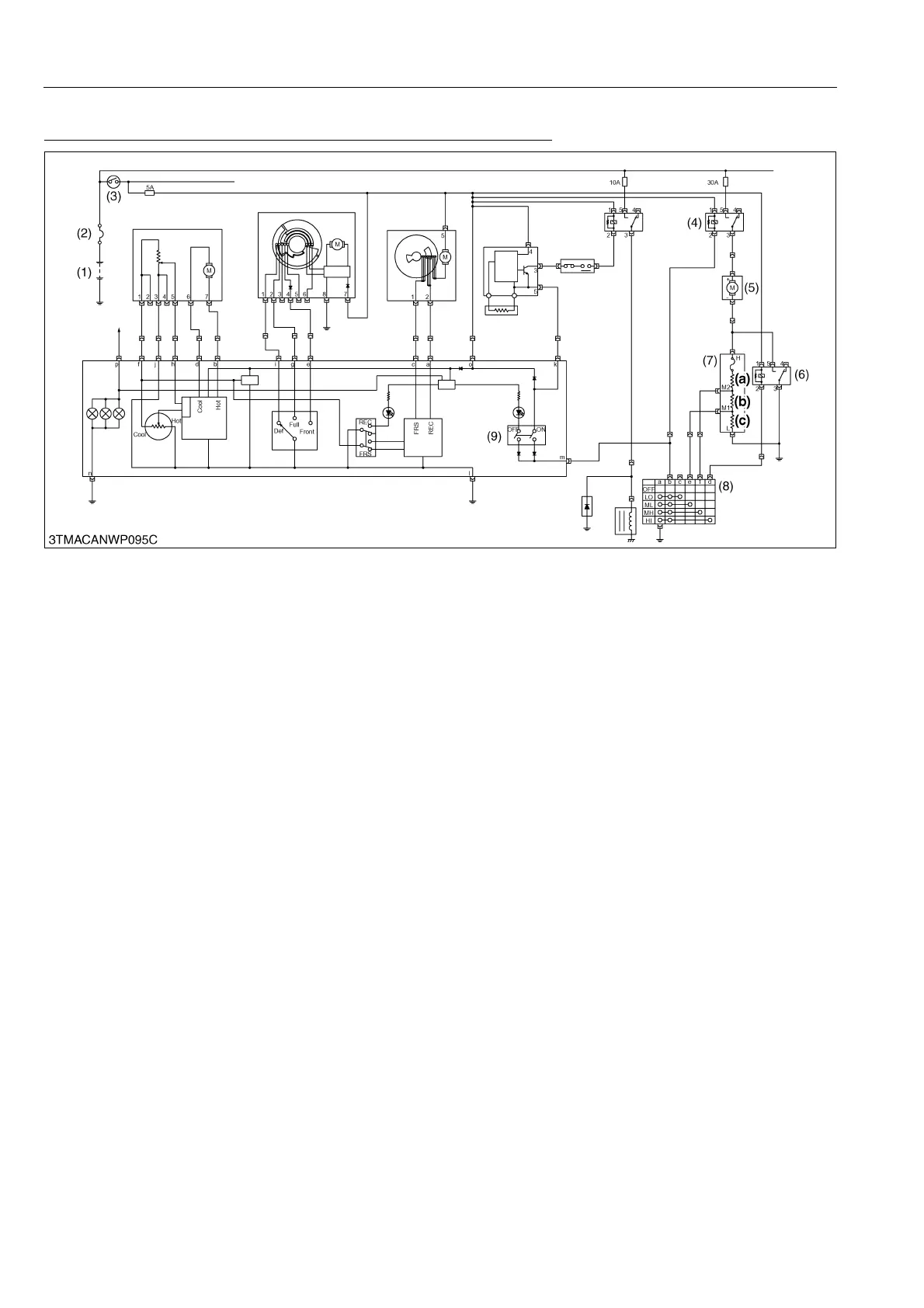
(3) Blower Relay
When Blower Switch is in Low, Medium 1, Medium 2 or High Position
When the main switch (3) and blower switch (8) is turned ON, the current flows from battery (1) to blower relay
coil and blower relay (4) is turned ON. As the blower relay (4) is turned ON, the current from battery (1) flows to the
blower switch (8) through the blower motor (5) as follows.
Low Position
Battery (1) Slow Blow Fuse (2) Main Switch (3) Fuse Blower Relay (4) Blower Motor (5) Blower
Resistor (7): (a), (b) and (c) Blower Switch (8) Ground.
Medium 1 Position
Battery (1) Slow Blow Fuse (2) Main Switch (3) Fuse Blower Relay (4) Blower Motor (5) Blower
Resistor (7): (a) and (b) Blower Switch (8) Ground.
Medium 2 Position
Battery (1) Slow Blow Fuse (2) Main Switch (3) Fuse Blower Relay (4) Blower Motor (5) Blower
Resistor (7): (a) Blower Switch (8) Ground.
High Position
Battery (1) Slow Blow Fuse (2) Main Switch (3) Fuse Blower Relay (4) Blower Motor (5) Blower
High Relay (6) Blower Switch (8) Ground.
9Y1210828CAM0013US0
(1) Battery
(2) Slow Blow Fuse
(3) Main Switch
(4) Blower Relay
(5) Blower Motor
(6) Blower High Relay
(7) Blower Resistor
(8) Blower Switch
(9) A/C Switch
(a) Resistor M2
(b) Resistor M1
(c) Resistor L
KiSC issued 08, 2013 A

Table of Contents

Related product manuals