EasyManua.ls Logo

wsm M7060 - Rear Wiper Switch (if Equipped); Rear Wiper Motor (if Equipped)

wsm M7060
639 pages
Print Icon
To Next Page IconTo Next Page
To Next Page IconTo Next Page
To Previous Page IconTo Previous Page
To Previous Page IconTo Previous Page
Loading...
CABIN
M6060, M7060, WSM
9-S33
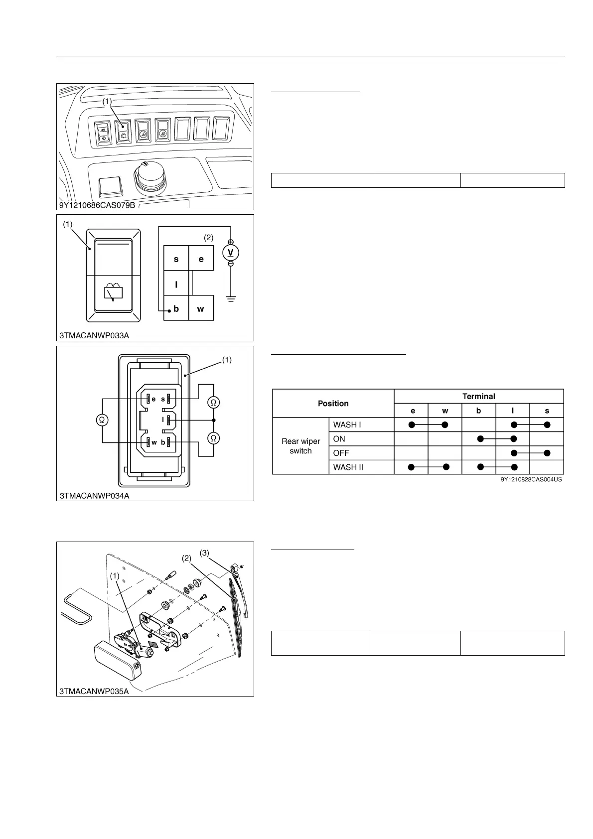
(13) Rear Wiper Switch (If equipped)
Connector Voltage
1. Disconnect the 5P connector from rear wiper switch (1).
2. Turn the main switch to "ON" position.
3. Measure the voltage with a voltmeter across the connector
terminal b of the wiring harness side and chassis.
4. If the voltage differs from the battery voltage, the wiring harness,
fuse or main switch is faulty.
9Y1210828CAS0055US0
Rear Wiper Switch Checking
1. Check the continuity through the switch with an ohmmeter.
2. If continuity specified below is not indicated, the switch is faulty.
9Y1210828CAS0056US0
(14) Rear Wiper Motor (If equipped)
Rear Wiper Motor
1. Raise up the rear wiper arm (3).
2. Turn the main switch to "ON" position.
3. Push the front wiper switch to "ON" position.
4. Count the number of wiper arm rocking per minutes.
5. If the number differs from the factory specifications, replace the
wiper motor assembly.
9Y1210828CAS0057US0
Voltage Terminal b – Chassis Approx. battery voltage
(1) Rear Wiper Switch (2) 5P Connector (Switch Side)
(1) 5P Connector (Switch Side)
No. of wiper arm swing
frequency at no load
Factory specification 25 to 43 times/min.
(1) Wiper Motor
(2) Wiper Blade
(3) Wiper Arm
KiSC issued 08, 2013 A

Table of Contents

Related product manuals