EasyManua.ls Logo

Omron SYSDRIVE 3G3FV - Page 223

Omron SYSDRIVE 3G3FV
400 pages
Print Icon
To Next Page IconTo Next Page
To Next Page IconTo Next Page
To Previous Page IconTo Previous Page
To Previous Page IconTo Previous Page
Loading...
6-49
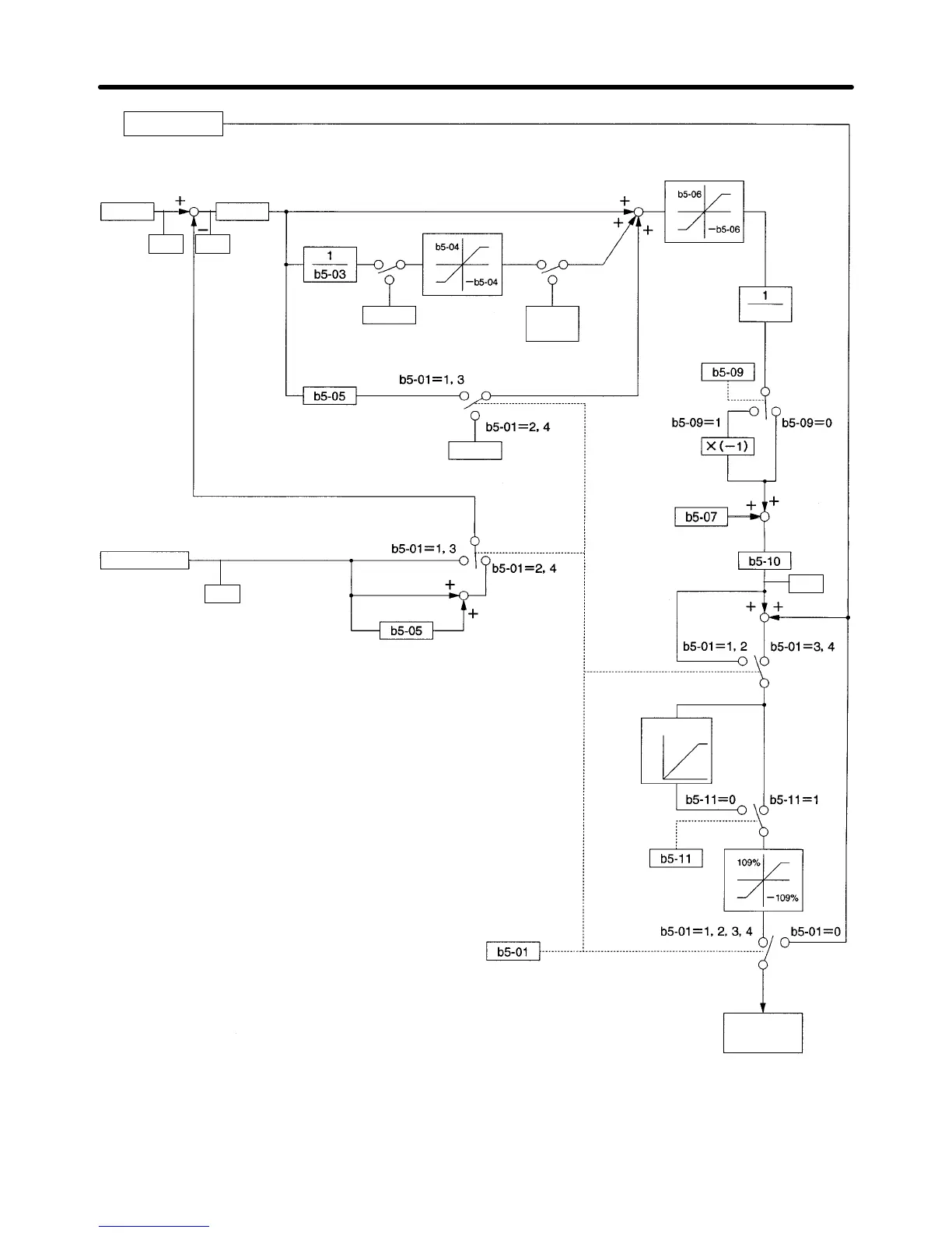
Target value
Feedback value
Proportional gain (P)
Integral time (I)
Derivative time (D)
Integral (I) upper limit
Multi-function input
Integral reset input
Multi-function input
Integral hold input
Integral
hold
PID upper limit
PID primary
delay time
constant
PID output
characteris-
tics selection
PID offset
adjustment
PID output gain
Reverse direction
limit
PID output
reverse
selection
PID control function
selection
Limit
Multi-function input
PID control ON/OFF
Inverter output
frequency
Derivative time (D)
Frequency reference
b5-02
ZERO
b5-08
ZERO
U1-38 U1-36
U1-24
U1-37
Advanced Operation Chapter
6

Table of Contents

Related product manuals