EasyManua.ls Logo

PREVOST X3-45 Multiplex - Page 1065

PREVOST X3-45 Multiplex
1422 pages
Print Icon
To Next Page IconTo Next Page
To Next Page IconTo Next Page
To Previous Page IconTo Previous Page
To Previous Page IconTo Previous Page
Loading...
Section 18: BODY
PA1562
47
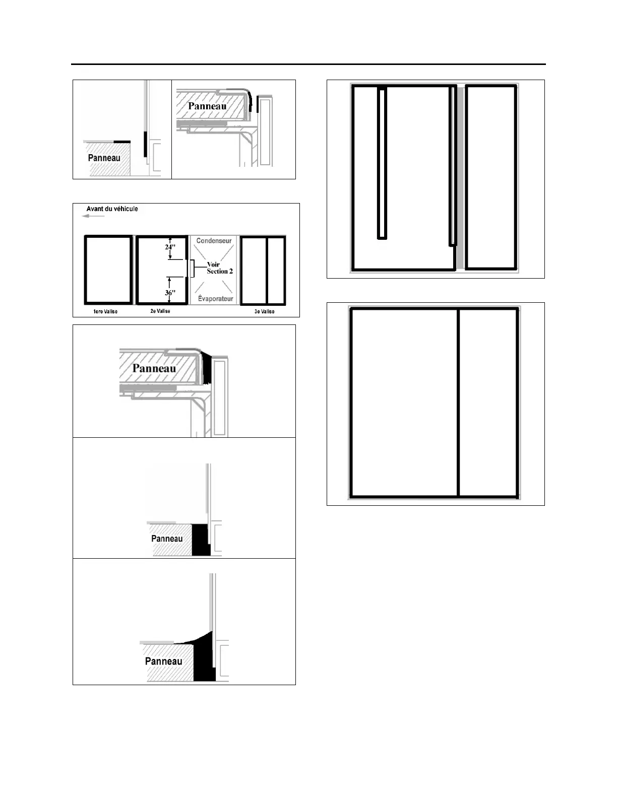
Apply some Simson glue to fill the gap.
Front finishing joint
Section 2
Flat joint in front of fuel tank access panel
Use plastic spatula #682838 to perform radius
Rear baggage compartment equipped with WCL
Rear baggage compartment without WCL.
Remove masking tape.
Smooth down joints using soapy water.
11.3 EVAPORATOR COMPARTMENT DOOR
1. Open the evaporator door.
2. Loosen the screws fixing the hinge to hinge
attachment or hinge to door assembly.
Loosening the screws allows the evaporator
door assembly to be shifted "LEFT or
RIGHT" and "UP or DOWN" or “IN and
OUT”.
3. Adjust evaporator door assembly position at
the hinge.
4. Tighten the screws.

Table of Contents

Related product manuals