EasyManua.ls Logo

PREVOST X3-45 Multiplex - Page 1071

PREVOST X3-45 Multiplex
1422 pages
Print Icon
To Next Page IconTo Next Page
To Next Page IconTo Next Page
To Previous Page IconTo Previous Page
To Previous Page IconTo Previous Page
Loading...
Section 18: BODY
PA1562
53
3.05
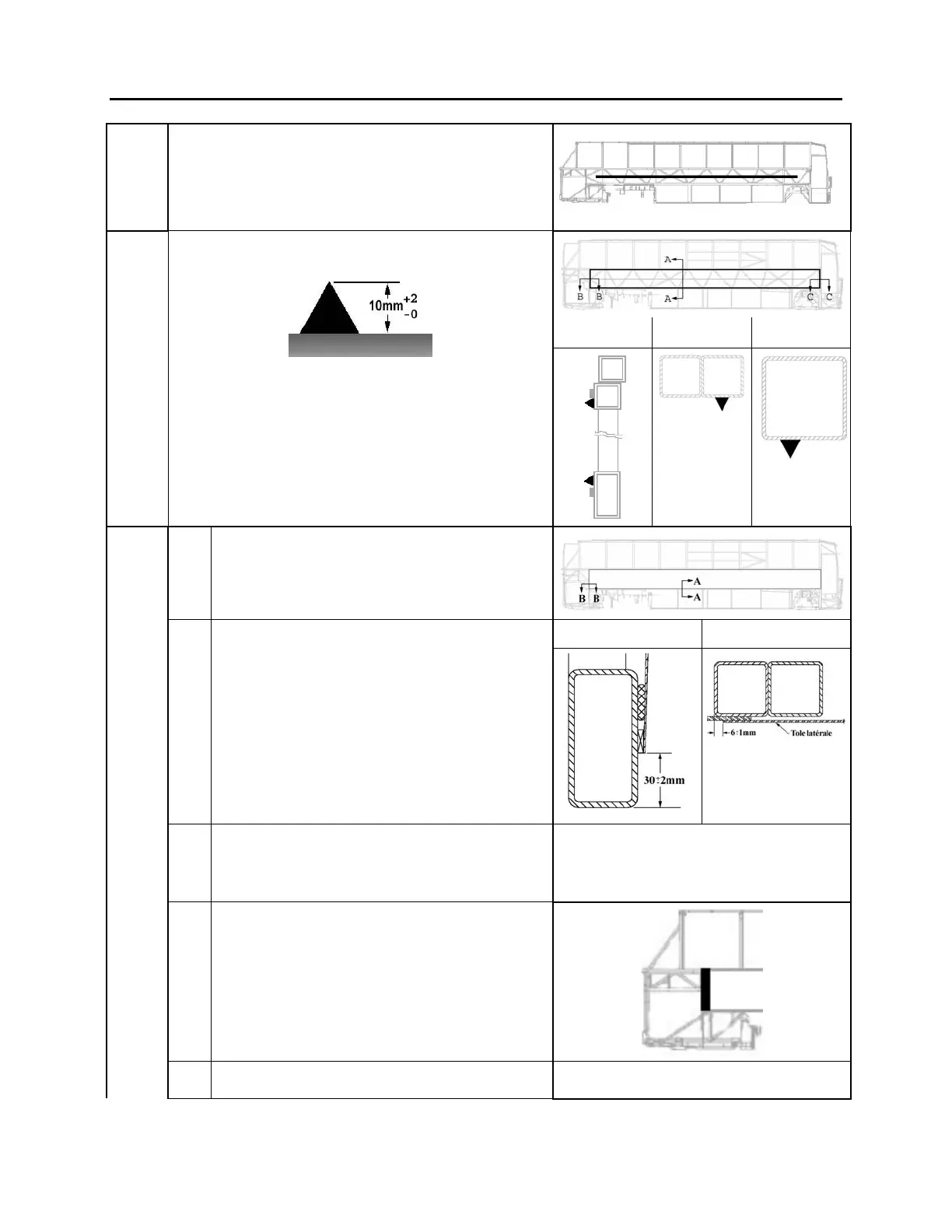
Install 1/8 X ½” foam tape onto middle reinforcement then
compress.
Section A-A Section B-B Section C-C
3.10
Apply Sika 252
Onto vehicle surface
Cut nozzle as per template
Use the guide for the application
Bead must be continuous for the whole perimeter.
A) Install side panel onto support jig.
Section A-A Section B-B
B) Position side panel in front of vehicle structure
C) Perform final adjustment to make sure that side
panel is true and square
30 mm. ± 2 with reference to bottom
tubing
6 mm ± 1 with reference to vertical tubing
3.15
D) Sand rear of side panel 2" wide
E) Perform tig spot welding (1” apart) Quantity of "tig spot": 30 minimum.

Table of Contents

Related product manuals