EasyManua.ls Logo

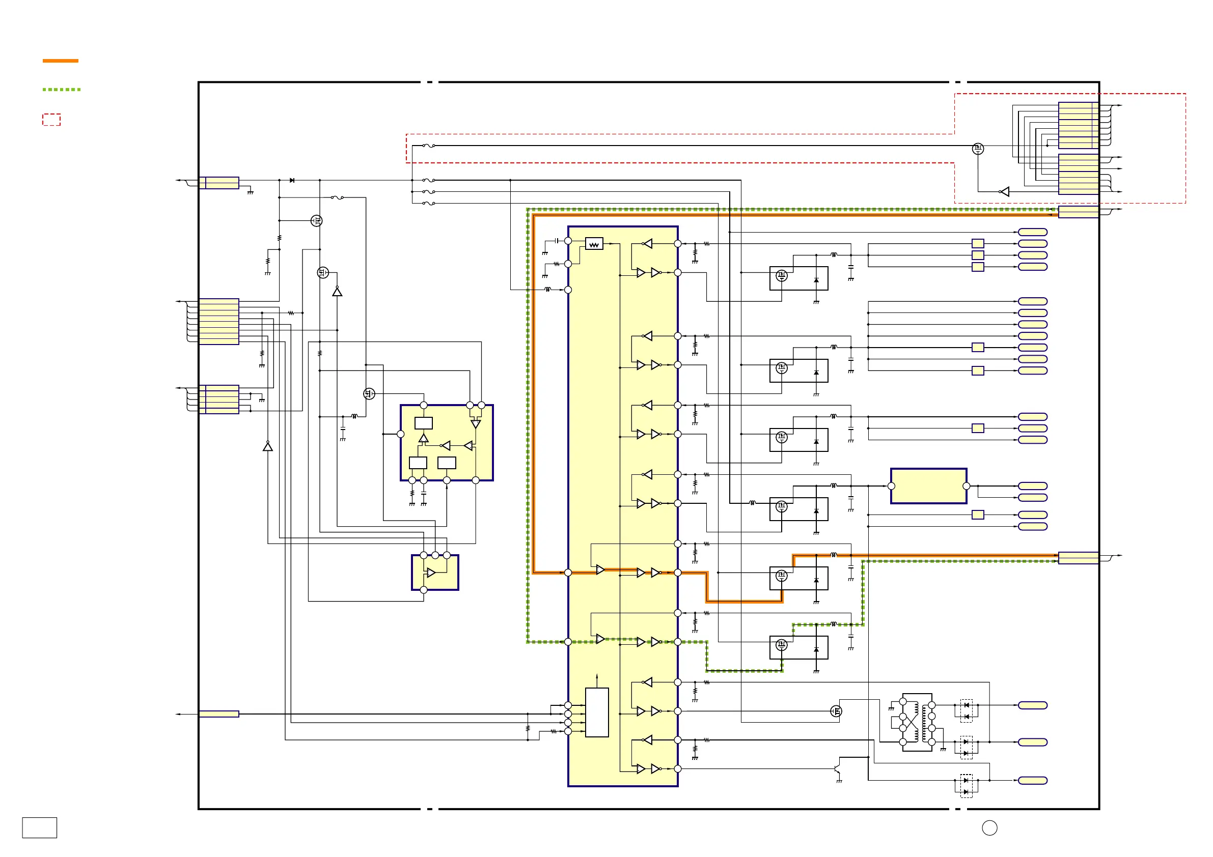
Canon MVX200 E - Power Supply Section

Canon MVX200 E
259 pages
Print Icon
To Next Page IconTo Next Page
To Next Page IconTo Next Page
To Previous Page IconTo Previous Page
To Previous Page IconTo Previous Page
Loading...
CAPSTAN SERVO SIGNAL
DRUM SERVO SIGNAL
27
34
46
50
43
53
40
56
5
64
11
62
37
57
21
60
22
15
61
16
28
29
30
31
33
VCC
IC3201
MB3881
DC/DC
CONVERTER
5 V IN 4V OUT
IC3203
TK11147CS
4.7V REGULATOR
MAIN P.C.B.(7/7)
FU3201
FU3205
FU3202
FU3203
FU1810
OSC
CH1
CH2
CH3
CH4
2
13
45
Q3204
1.4V (CH1)
2
13
45
Q3203
2.7V (CH2)
2
13
45
Q3205
3V (CH3)
CH8
CH7
2
13
45
Q3206
P5V (CH4)
CH5
2
13
45
Q3207
DRUM VS (CH5)
CH6
2
13
45
Q3208
CAP VS (CH6)
DVDD 1.4V
AVDD 1.4V
MACS 1.4V
VTR UNREG
DVDD 3V
HA 4.7V
AA 4.7V
LCD 5V
P 5V
CCD 15V
CCD 7V
CAM 3V
HA 3V
SDRAM 2.7V
AVDD 2.7V
DIF 2.7V
DVDD 2.7V
LCD 2.7V
M SDRAM 2.7V
AA 2.7V
ON/OFF
CONT.
CH1,3,4,8
CH2
CH5,6
CH7
D VM
C VM
C VS
D VS
TO
SERVO SECTION
MAIN P.C.B.
ADV/EXT MIC R
ADV MIC L
ST STSP
SHOE ID1
ST VDHGL VL
SHOE ID2
SHOE ON
TO
AUDIO-VIDEO SECTION-1
MAIN P.C.B.
TO
CAMERA SECTION-3
MAIN P.C.B.
TO
SYSTEM CONTROL SECTION-3
MAIN P.C.B.
TO
SEEVO SECTION
MAIN P.C.B.
4
3
2
1
5
6
7
8
T3202
D3203
Q3202
D3205
LCD 8.5V
D3202
DC +
DC
DC V DET
A/D I
A/D V
BATT INFO AD
CAM ON
CHARGE
INIT CHARGE1
VTR ON
CN3201
Q1814
Q1815
Q1812
Q1813
Q1801
Q3209
Q3210
2
1
BATT INFO AD
BATT
BATT
BATT +
BATT +
CN3202
VTR ON IC3201
3
1
2
4
5
TO
JACK1,2 SECTION
JACK1 P.C.B.
CN3211
TO
SYSTEM CONTROL SECTION
MAIN P.C.B.
TO
BATTERY TERMIANL
ADV/EXT MIC R
ADV MIC L
ID-2
ST STSP
ST VDHGL
ID-1
SHOE UNREG
SHOE UNREG
CN891
12
11
9
8
7
6
2
1
TO
SHOE CONNECTOR
TO
AUDIO-VIDEO SECTION-1
MAIN P.C.B.
Q3201
14
12 13 7
2 3
8
15
VCC
DSC
POWER
SAVE
OUTPUT
DRIVE
2
4
3
1
LPF
LPF
LPF
LPF
LPF
LPF
LPF
IC1810
MB3833A-E1
CHARGE
IC
IC1811
MM3012XN
OPE AMP
ELURA70 A
ELURA65 A
MVX250i E
DM-FV M100
ONLY
POWER SUPPLY SECTION
C
CANON INC. 200401 Mar. 2004
MVX250i E, MVX200i E, MVX200 E

Table of Contents

Related product manuals