EasyManua.ls Logo

COBHAM SAILOR 900 - Acu; Figure A-2: Outline Drawing: ACU; A.2.2 Acu

COBHAM SAILOR 900
245 pages
Print Icon
To Next Page IconTo Next Page
To Next Page IconTo Next Page
To Previous Page IconTo Previous Page
To Previous Page IconTo Previous Page
Loading...
Outline drawings
A-6 Appendix A: Technical specifications 98-150471-A02
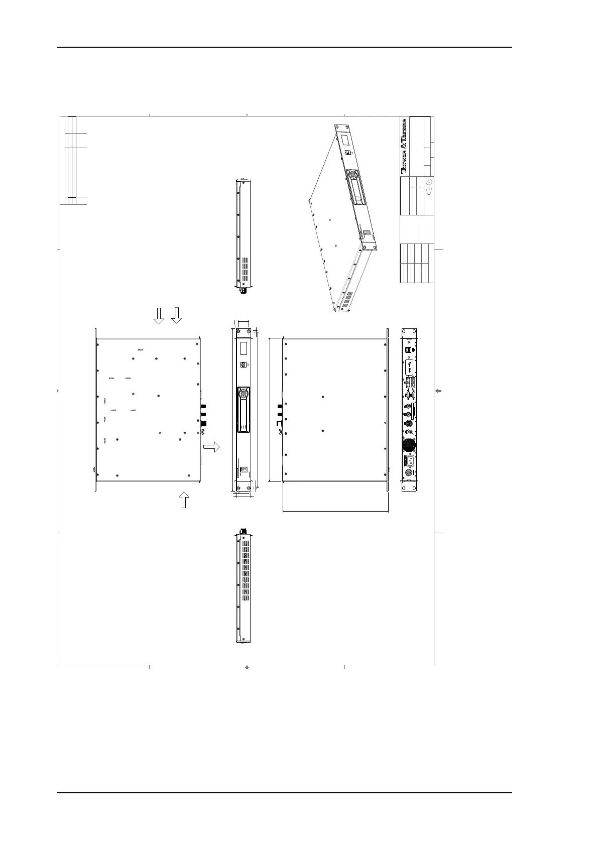
A.2.2 ACU
Figure A-2: Outline drawing: ACU
LTR DESCRIPTION DATE APPROVAL
REVISIONS
ANGLES
LIN. DIM.
MATERIAL
DR.
CH.
AP.
AP.
FIRST
ANGLE
PROJECTION
Title:
Size:
Codeident no.: Drawing no.:
Sheet: 1 of 1
Telecommunications Engineering Copenhagen Denmark
A1
NEXT ASSY USED ON
APPLICATION
UNLESS OTHERWISE SPECIFIED
DIMENSIONS ARE IN MILLIME-
TRES AND TOLERANCES ARE IN
ACCORDANCE WITH DS/ISO
2768-1 F
1
2
3
4
1
2
3
4
D
C
B
A
99-121451 Rev.A
424.9±0.8
319.3±0.5
482.6±0.5
43.65±0.3
31.75±0.3
461.67±0.3
3.4
3.4
5.95±0.1
A01 Original 16-02-29 AKJ
16-02-29
16-02-29
16-02-29
yy-mm-dd
OUTLINE DRAWING
ACU 7016C
TT94-148585
Scale: 1:2
Document Type:
Document Status: In Work
DIRECTION
COOLING
AIR FLOW
DIRECTION
COOLING
AIR FLOW
DIRECTION
COOLING
AIR FLOW
AKJ
TBO
AKJ
WEIGHT OF UNIT:
4,2 Kg +/- 0.2 Kg
Ø6.6
SAILOR900HP.book Page 6 Monday, July 18, 2016 12:44 PM

Table of Contents

Related product manuals