Home
COBHAM
Antenna
SAILOR 900
Page 217 (Jumper Cable for Grounding)
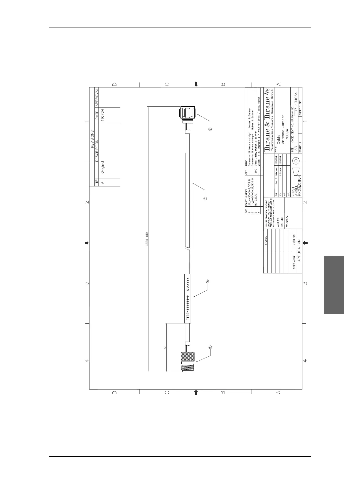
COBHAM SAILOR 900 - Jumper Cable for Grounding; Figure F-9: Jumper Cable for Grounding (Specifications
245 pages
Manual
Save Page as PDF
To Next Page
To Next Page
To Previous Page
To Previous Page
Loading...
Jumper cable for grounding
98-150471-A02
Appendix
F: Grou
nding and RF protection
F-9
Grounding and RF
F.7
Jumper cable for grounding
Figure F-9:
Jumper cable f
or grounding (specifications)
SAI
L
OR9
00HP.bo
ok Page 9 M
ond
ay
, Jul
y
18
, 201
6 12:
44 PM
216
218
Table of Contents
Main Page
Default Chapter
3
Installation Manual
3
Safety Summary
5
Table of Contents
9
Chapter 1 About this Manual
23
Intended Readers
23
Manual Overview
23
Software Version
23
Typography
24
Precautions
24
Warnings, Cautions and Notes
24
General Precautions
24
Chapter 1 About this Manual
24
Introduction
25
SAILOR 900 VSAT High Power System
25
Figure 2-1: above Deck Unit and Antenna Control Unit (ACU)
25
Above Deck Unit (ADU)
26
Figure 2-2: above Deck Unit (ADU)
26
Chapter 2 Introduction
27
Figure 2-3: above Deck Unit Modules 1/2
27
Figure 2-4: above Deck Unit Modules 2/2
28
Antenna Control Unit (ACU)
29
Figure 2-5: SAILOR 900 VSAT High Power ACU, Connector Overview
30
Figure 2-6: SAILOR 900 VSAT High Power ACU
30
Satellite Type Approvals
31
Service Activation
31
VSAT Modem Unit (VMU)
31
Part Numbers and Options
32
Applicable Model and Part Numbers
32
Options for SAILOR 900 VSAT High Power
32
Table 2-1: Model and Part Numbers for the SAILOR 900 VSAT High Power System
32
Table 2-2: Model and Part Numbers for Options of the SAILOR 900 VSAT High Power System
32
Chapter 3 Installation
33
Unpacking
33
What's in the Box
33
Initial Inspection
34
Tools Needed
34
Transport of the Antenna
34
Site Preparation
35
General Site Considerations
35
Obstructions (ADU Shadowing)
36
Figure 3-1: Signal Degradation Because of Obstructing Objects
36
Blocking Zones - Azimuth and Elevation
37
Figure 3-2: 2 Blocking Zones W, Azimuth (Example)
37
Figure 3-3: Blocking Zone W, Elevation Angle (Example)
37
Safe Access to the ADU: Radiation Hazard
38
Figure 3-4: SAILOR 900: Radiation Hazard, Safety Distance 47 M
38
Ship Motion and Offset from the Ship's Motion Centre
39
Figure 3-5: Maximum Distance from the Ship's Motion Centre (H Max)
39
Table 3-1: Maximum Distance from the Ship's Motion Center Versus Ship's Roll Period
39
ADU Mast Design: Foundation and Height
40
Figure 3-7: ADU Mast Flange, Recommended Flatness on the Mast Mount Plateau
40
Figure 3-8: ADU Mast Flange, Distance to the Welded Seam
41
Figure 3-9: SAILOR 900: ADU, Bottom View
41
Figure 3-10: Free Mast Length and Bracing for a Tall Mast
42
Table 3-2: Mast Dimensions Without Braces
43
Table 3-3: Mast Dimensions with 3 Braces
43
Interference
44
Table 3-4: Mast Dimensions with 2 Braces
44
Figure 3-11: Interference with the Vessel's Radar
45
Table 3-5: Minimum Radar Separation, X-Band
45
Table 3-6: Minimum Radar Separation, S-Band
46
Radar Interference
46
Figure 3-12: Recommended Distance to Transmitters (M) for Frequencies below 1000 Mhz
47
Other Precautions
48
Figure 3-13: SAILOR 900: Drain Pipe with Free Space
48
Installation of the ADU
49
Figure 3-14: Use of Strong Sling with a Belt and Tag Lines for Safe Hoisting
49
To Install the ADU
50
Figure 3-15: Free Space for Access to the Service Hatch
50
Figure 3-16: ADU Installation, Webbed Sling Attached to the 4 Lifting Brackets
51
Figure 3-17: Mounting the ADU on the Mast Flange
51
Figure 3-18: SAILOR 900: Connecting the ADU Cable
52
To Open and Remove the Service Hatch
53
Figure 3-19: Opening the Service Hatch
53
Figure 3-20: Removing the 2 Split Pins
53
To Ground the ADU
54
Figure 3-21: ADU, Bolt for Optimum Grounding
54
Alternative ADU Cable
55
Table 3-7: ADU Cable Types and Maximum Lengths
55
Installation of the ACU
56
To Install the ACU
56
Figure 3-22: ACU, On/Off Switch
56
Figure 3-23: ACU, LAN Connector at the Front: Service Port
56
To Ground the ACU
57
Installation of the VMU
57
General Mounting Considerations - VMU
57
Figure 3-24: ACU, Ground Stud
57
To Install the Dual-Antenna Mode (Optional)
58
Figure 3-25: Dual Mode Antenna, Overview
58
Figure 3-26: Dual Mode Antenna, Connecting Cables (Example)
59
Table 3-8: Dual Mode Antenna, Cabling
59
Chapter 4 Interfaces
61
Interfaces of the SAILOR 900 VSAT High Power ACU
61
Leds, Display and Keypad
61
Figure 4-1: ACU - Leds, Display and Keypad
61
Figure 4-2: ACU: Leds, Display and Keypad (Detailed)
61
Figure 4-3: ACU, Connector Panel Overview
61
ADU Connector
62
Rx/Tx Connectors for VMU
62
Table 4-1: N Connector, Outline and Pin Assignment
62
Table 4-2: F Connector, Rx and Tx, Outline and Pin Assignment
62
NMEA 0183 Connector
63
Table 4-3: NMEA 0183/2000 Connector, Outline and Pin Assignment
63
And RS-422 Connectors
64
Table 4-4: RS-232 Connector, Male, Outline and Pin Assignment
64
Table 4-5: RS-422 Connector, Male, Outline and Pin Assignment
64
LAN1, LAN2, LAN3 and LAN4 Connectors
65
Interfaces of the VMU
65
Figure 4-4: LAN Connectors
65
Table 4-6: Ethernet Connector, Outline and Pin Assignment
65
Chapter 5 Connecting Power
67
Power up
67
Procedure
67
Initialisation Steps in Daily Use
67
SAILOR 900 VSAT High Power Operational
68
Chapter 5 Connecting Power
68
Chapter 6 Configuration
69
Introduction to the Built-In Web Interface
69
Overview
69
Connecting to the Web Interface
69
Figure 6-1: SAILOR 900 VSAT High Power ACU
70
Figure 6-2: Dashboard
70
Chapter 6 Configuration
70
Calibration
71
Heading Mode and Position Mode
71
Figure 6-3: Web Interface: SETTINGS, Navigation (Heading and Position) (Example)
72
Table 6-1: Heading Mode Options
72
Figure 6-4: Acquisition, Search Pattern
73
Table 6-2: Position Mode Options
73
Figure 6-5: Acquisition, Search Pattern for Inclined Orbit
74
Figure 6-6: Acquisition, Search Pattern in Gyro-Free Mode
74
Table 6-3: Acquisition Time
74
Azimuth Calibration
75
Figure 6-7: Web Interface: SERVICE, Calibration
76
Table 6-4: Satellite Identifier and NID Values
77
Table 6-5: Possible Error Codes During Calibration
77
To Set up a Service Profile for Calibration
78
Figure 6-8: Service Profile for Calibration
78
Cable Calibration
79
Figure 6-9: Web Interface: SERVICE, Calibration, Cable Attenuator Margin
79
Table 6-6: Satellite Requirements for Elevation and Carrier
79
Operation in Gyro-Free Mode
80
Table 6-7: Satellite Elevation and Max. Allowed Inclination
81
Flow Chart for Calibration (User Controlled)
82
Figure 6-10: Example for a Calibration (User Controlled) - Step by Step
82
To Make a Line up Procedure
83
Figure 6-11: Web Interface: SERVICE, Line Up: Ready for Activation
83
Figure 6-12: Web Interface: SERVICE, Line Up: Antenna Ready
84
Fixed TX Gain Principle
85
Figure 6-13: Fixed TX Gain Principle
85
Configuration with the Web Interface
86
Overview and Dashboard
86
Figure 6-14: Topics in the Web Interface (SITE MAP)
86
Figure 6-15: Web Interface: DASHBOARD
87
Table 6-8: Web Interface: Event Icon
88
Table 6-9: Web Interface, DASHBOARD, SAILOR 900 VSAT High Power Parameters
90
Modem Profiles and Satellite Profiles
91
Table 6-10: Web Interface, DASHBOARD, POINTING Parameter
91
Table 6-11: Web Interface, DASHBOARD, TX Parameter
91
Figure 6-16: Web Interface: SETTINGS, VSAT Modem Profiles - List (Example)
92
Figure 6-17: Web Interface: SETTINGS, Modem Profile - Supported Modems
92
Table 6-12: Modem Configuration Data
92
Figure 6-18: Satellite Profile with Generic Modem
94
Figure 6-19: Web Interface: SETTINGS - List of Satellite Profiles (Example)
94
Figure 6-20: Web Interface: SETTINGS, Satellite Profiles - New Entry (Example)
95
Table 6-13: Elevation Cutoff (in Degrees) Versus VSAT Modem Bandwidth and Power
95
To Set up Blocking Zones (RX and TX)
96
Figure 6-21: Web Interface: SETTINGS, Blocking Zones - Azimuth and Elevation
96
Figure 6-22: Blocking Zone, Example: 315 - 45 Degrees
97
Figure 6-23: Blocking Zone, Example: 45 - 315 Degrees
97
To Configure the LAN Network
98
Figure 6-24: Web Interface: SETTINGS, Network (Default Settings)
98
Table 6-14: Setup of LAN Connectors
99
E-Mail Setup
100
Figure 6-25: Web Interface: SETTINGS, E-Mail Setup (Example)
100
Reports, Syslog and SNMP Traps
101
Table 6-15: Statistics Report, Header Record
102
Table 6-16: Parameters Recorded in a Statistics Report
102
Figure 6-26: Statistics - How to Read Data for a Range
103
Dual Antenna Mode (Optional)
104
Figure 6-27: Dual-Antenna Mode, Link on DASHBOARD
105
Figure 6-28: Enabling Dual-Antenna Mode in Master ACU
106
Figure 6-29: Dual-Antenna Mode, Add Modem Profile for Slave ACU (Example)
106
Figure 6-30: Dual-Antenna Mode, Add Slave Satellite Profile
107
Figure 6-31: Dual-Antenna Mode, Activate
107
Figure 6-32: Dual-Antenna Mode, Blocking Zones - Azimuth and Elevation
108
Upload of New Software
109
Administration
109
Figure 6-33: Dual-Antenna Mode, Line up
109
Figure 6-34: Web Interface: Administration
110
Figure 6-35: Web Interface: Administration, Change Password
110
Figure 6-36: Web Interface: ADMINISTRATION, Reset Administrator Password
111
Figure 6-37: Web Interface: Administration, Export/Import Configuration
112
Figure 6-38: Web Interface: ADMINISTRATION, Factory Default
113
Keypad and Menus of the ACU
114
ACU Display and Keypad
114
Figure 6-39: Display (Example) and Keypad of the ACU
114
Navigating the Menus
115
The Menu Tree
116
Figure 6-40: Antenna Control Unit, Menu Tree
116
Table 6-17: Top-Level Menus of the ACU
116
Table 6-18: ANTENNA Menu of the ACU
117
Table 6-19: MODEM Menu of the ACU
117
Table 6-20: NETWORK Menu of the ACU
118
Table 6-21: SATELLITE Menu of the ACU
118
Table 6-22: EVENTS Menu of the ACU
118
Adjusting Brightness of the Display
119
Power Cycle of the ACU and ADU
119
SNMP Support
120
Figure 6-41: Download of the MIB File
120
Chapter 7 Installation Check
121
Installation Check List: Antenna
121
Table 7-1: Installation Check List: Antenna
121
Installation Check List: ACU, Connectors and Wiring
123
Table 7-2: Installation Check List: ACU, Connectors and Wiring
123
Installation Check List: Functional Test in Harbor
125
Table 7-3: Installation Check List: Functional Test in Harbour
125
Chapter 8 Service
127
Getting Support: Helpdesk
127
Help Desk and Diagnostic Report
127
Figure 8-1: Web Interface: HELPDESK
127
Chapter 8 Service
128
Self Test
129
Software Update
130
Hardware and Software Requirements
130
Software Update (ADU and ACU)
130
Figure 8-2: Recovery Procedure after Failed Software Upload
131
Figure 8-3: Upload Software to Terminal
131
To Verify the Software Update
132
Figure 8-4: Verifying Software Update
132
Status Signalling with Leds and Status Messages
133
Leds of the ADU Modules
133
Table 8-1: Leds of the ADU Modules
133
Leds in the ACU
134
Figure 8-5: ACU - Leds
134
Table 8-2: Leds on the ACU
134
Removal and Replacement of the ACU
135
Removal and Replacement of ADU Modules
136
Figure 8-6: ADU Modules and Service Switch
136
Figure 8-7: above Deck Unit Modules (Continued)
138
Troubleshooting
139
Overview
139
Event List for Troubleshooting
139
Diagnostics Report for Troubleshooting
139
To Verify that the Antenna Can Go into Tracking Mode
139
Returning Units for Repair
140
Appendix A Technical Specifications
143
Adu
143
Table A-1: General Specifications
143
Table A-2: Technical Specifications for the above Deck Unit
143
Acu
145
Table A-3: Technical Specifications for the ACU
145
A.1.3 Acu
145
Supported VSAT Modems
146
Patents
146
Table A-4: Supported VSAT Modems
146
Table A-5: Patents
146
Outline Drawings
147
Adu
147
Figure A-1: Outline Drawing: ADU
147
A.2 Outline Drawings
147
Acu
148
Figure A-2: Outline Drawing: ACU
148
A.2.2 Acu
148
N-Connector Interface on the ADU
149
Figure A-3: N-Connector Interface on the ADU
149
VSAT LNB Data Sheet (Physical LNB
150
Technical Specifications
150
VSAT LNB User Installation and Configuration Information
151
Table A-8: 4-Band Switching
151
VSAT 20W BUC Data Sheet (Extended
152
Table A-10: Technical Specifications for VSAT 20 W BUC 2/3
153
Appendix Bvmu Cables
156
Modem Cable COMTECH Serial & RSSI TT7016A
156
Figure B-1: Modem Cable COMTECH Serial & RSSI TT7016A
156
Modem Cable Idirect Serial and RSSI
157
Figure B-2: Modem Cable Idirect Serial and RSSI
157
Appendix C VMU Settings
159
Performance Optimization for Blockage
159
Performance of VSAT Systems Encountering Blockage, Configured with Multiple Satellites
159
Openamip Setup for Idirect Infiniti & Evolution
161
Protocol and Interfaces
161
Figure C-1: Connecting Idirect Infiniti 5000 Series to the ACU (Openamip
161
Figure C-2: Connecting Idirect Evolution X5 to the ACU (Openamip
162
Table C-1: RS-232 Console Cable for Idirect VSAT Modem
162
Figure C-3: Supported Openamip Commands
163
Table C-2: Messages Sent from the VSAT Modem to the ACU (Examples
163
Sample Options File
164
Table C-3: Messages Sent from the ACU to the VSAT Modem (Examples
164
Table C-4: Ranges for Signal Strength for Idirect Openamip VSAT Modem
164
Table C-5: Information in the VSAT Modem Option File
166
Configuration Example (Openamip
167
Figure C-4: VSAT Modem Profile, Openamip (Example
167
Figure C-5: Satellite Profile, Openamip (Example
167
Troubleshooting
168
C.2.4 Troubleshooting
168
Figure C-6: Idirect Openamip Troubleshooting
169
Serial Setup for Idirect Infiniti & Evolution
171
Protocol and Interfaces
171
Console Port Settings
171
Figure C-7: Connecting Idirect Infiniti 5000 Series to the ACU (Serial
171
Figure C-8: Connecting Idirect Evolution X5 to the ACU (Serial
171
Table C-6: Requirements for VSAT Modem Option File, Serial
172
Configuration Example (Serial
173
Figure C-9: Modem Profile, Serial (Example
173
Figure C-10: Satellite Profile, Serial (Example
174
COMTECH 570L and ROSS Box
175
Protocols and Interfaces
175
Figure C-11: Connecting COMTECH 570L and ROSS Box to the ACU (Example
175
Configuration Example (COMTECH 570L and ROSS
176
Figure C-12: Modem Profile, COMTECH 570L and ROSS (Example
176
Figure C-13: Satellite Profile, COMTECH 570L and ROSS (Example
176
Comtech 570L
177
Protocol and Interfaces
177
C.5 Comtech 570L
177
Figure C-14: Connecting COMECH 570L to the ACU (Example
178
Table C-7: Communication, COMTECH 570L
178
Configuration Example (COMTECH 570L
179
Figure C-15: VSAT Modem Profile, COMTECH 570L (Example
179
Figure C-16: Satellite Profile, COMTECH 570L (Example
179
STM Satlink 2900 VSAT Modem
180
Interfaces and VSAT Modem Configuration
180
Figure C-17: Connecting STM Satlink 2900 VSAT Modem to the ACU
180
Table C-8: Configuration of the STM Satlink 2900 VSAT Modem
181
ACU Configuration
182
C.6.2 ACU Configuration
182
Configuration Example (STM Satlink 2900
183
Figure C-18: VSAT Modem Profile, STM Satlink 2900 (Example
183
Figure C-19: Satellite Profile, STM Satlink 2900 (Example
183
Gilat Skyedge II VSAT Modem
184
Interfaces and VSAT Modem Configuration
184
Figure C-20: Connecting Gilat Skyedge II VSAT Modem to the ACU
184
Figure C-21: Connecting Gilat Skyedge II VSAT Modem (Rack) to the ACU
184
ACU Configuration
185
Table C-9: Configuration of Gilat Skyedge II VSAT Modem
185
C.7.2 ACU Configuration
185
Configuration Example (Gilat Skyedge II
186
Figure C-22: VSAT Modem Profile, Gilat Sky Edge II (Example
186
Figure C-23: Satellite Profile, Gilat Sky Edge II (Example
186
Inmarsat G5 Modem
187
Interfaces and VSAT Modem Configuration
187
Connecting a Inmarsat G5 Modem
187
Inmarsat G5 Driver
187
Table C-10: RS-232 [Set] and [Get] Commands
187
C.8 Inmarsat G5 Modem
187
ACU Configuration
188
Table C-11: LAN1 - [Get] Commands
188
Table C-12: LAN1 - [Set] Commands
188
C.8.4 ACU Configuration
188
Configuration Example (Inmarsat G5
189
LAN Setup Requirements for G5 System
189
Figure C-24: VSAT Modem Profile, Inmarsat G5 (Example
189
Figure C-25: Satellite Profile, Inmarsat G5 (Example
189
Linkway S2 Modem
190
Protocols and Interfaces
190
Figure C-26: Connecting Linkway S2 Modem to the ACU
190
Figure C-27: Serial Cable between the Modem and the ACU
190
Table C-13: Linkway S2 Modem Command $TTD
190
C.9 Linkway S2 Modem
190
Table C-14: Linkway S2 Modem Command $TIPCD
191
ACU Configuration
192
C.9.2 ACU Configuration
192
Configuration Example (Linkway S2
193
Figure C-28: Modem Profile for Linkway S2
193
Figure C-29: Satellite Profile with Linkway S2 Modem Profile
193
Appendix D Command Line Interface
195
Introduction
195
Telnet Connection
195
Figure D-1: How to Use the Command Line Interface (Example for Telnet
195
Figure D-2: Command Line Interface, Login
195
Help
196
Conventions
196
Supported Commands
196
Table D-1: Command Typography
196
D.1.2 Help
196
Config
197
Demo
197
Dual_Antenna
197
Exit
197
Table D-2: UCLI Command: Config
197
Table D-3: UCLI Command: Demo
197
Table D-5: UCLI Command: Exit
197
D.2.1 Config
197
Help
198
Modem
198
Table D-6: UCLI Command: Help
198
Table D-7: UCLI Command: Modem
198
D.2.5 Help
198
Satellite
199
D.2.7 Satellite
199
Table D-8: UCLI Command: Satellite
200
Status
201
Table D-9: UCLI Command: Status
201
D.2.8 Status
201
System
202
Track
202
Table D-10: UCLI Command: System
202
Table D-11: UCLI Command: Track
202
D.2.9 System
202
Zone
203
Table D-12: UCLI Command: Zone
203
Table E-1: Examples of DVB-S Satellites for Azimuth Calibration
205
Appendix Edvb-S Satellites
207
Figure E-1: Satellite Data, Example from Www.lyngsat.com
207
Appendix F Grounding and RF Protection
209
Why Is Grounding Required
209
Reasons for Grounding
209
Safety
209
ESD Protection
209
F.1 Why Is Grounding Required?
209
Grounding Recommendations
210
Figure F-1: Extending the Ground Plane
210
F.2 Grounding Recommendations
210
To Ground the ACU
211
To Ground the ADU
211
Alternative Grounding for Steel Hulls
211
Figure F-2: Grounding the ADU
211
To Ground the ADU
212
Figure F-3: Grounding at a Dedicated RF Ground (Alternative
212
Alternative Grounding for Aluminum Hulls
213
To Ground the ACU
213
To Ground the ADU
213
Figure F-4: Alternative Grounding for Aluminium Hulls
213
Alternative Grounding for Fibre Glass Hulls
214
To Ground the ACU
214
To Ground the ADU
214
Figure F-5: Alternative Grounding for Fibreglass Hulls
214
Separate Ground Cable
215
Ground Cable - Construction
215
Figure F-6: Separate Ground Cable
215
Ground Cable - Connection
216
Isolation of the ADU from the Mounting Base
216
Figure F-7: Isolation of the ADU from the Mounting Base
216
Figure F-8: ADU Isolation and Grounding Cable
216
Jumper Cable for Grounding
217
Figure F-9: Jumper Cable for Grounding (Specifications
217
RF Interference
218
Recommendations
218
F.8 RF Interference
218
Appendix G System Messages
219
Event Messages - Overview
219
G.1 Event Messages – Overview
219
List of ADU Events
220
Table G-1: ADU Event Messages
220
List of ACU Events
227
Table G-2: ACU Event Messages
227
Appendix H Approvals
231
Overview
231
Ce (R&Tte
231
H.1 Overview
231
Glossary
233
Index
237
Related product manuals
COBHAM SAILOR 900 Ka
182 pages
COBHAM Sailor 900 VSAT
356 pages
COBHAM SAILOR 6130
114 pages
COBHAM SAILOR 6120
114 pages
COBHAM SAILOR XTR Ku
191 pages
COBHAM SAILOR XTR GX-R2
176 pages
COBHAM SAILOR 800 XTR Ku
191 pages
COBHAM SAILOR 600 VSAT Ka
192 pages
COBHAM SAILOR 1000 XTR Ku 8W
159 pages
COBHAM SAILOR 60 GX-R2 4.5 W
190 pages
SAILOR 1000 XTR Ka 4.5W ADU
167 pages
SAILOR Global Xpress Modem Unit GMU
167 pages