EasyManua.ls Logo

Entron EN1000 series

Entron EN1000 series
167 pages
To Next Page IconTo Next Page
To Next Page IconTo Next Page
To Previous Page IconTo Previous Page
To Previous Page IconTo Previous Page
Loading...
Page 20 • 700120S • ENTRON Controls, LLC.
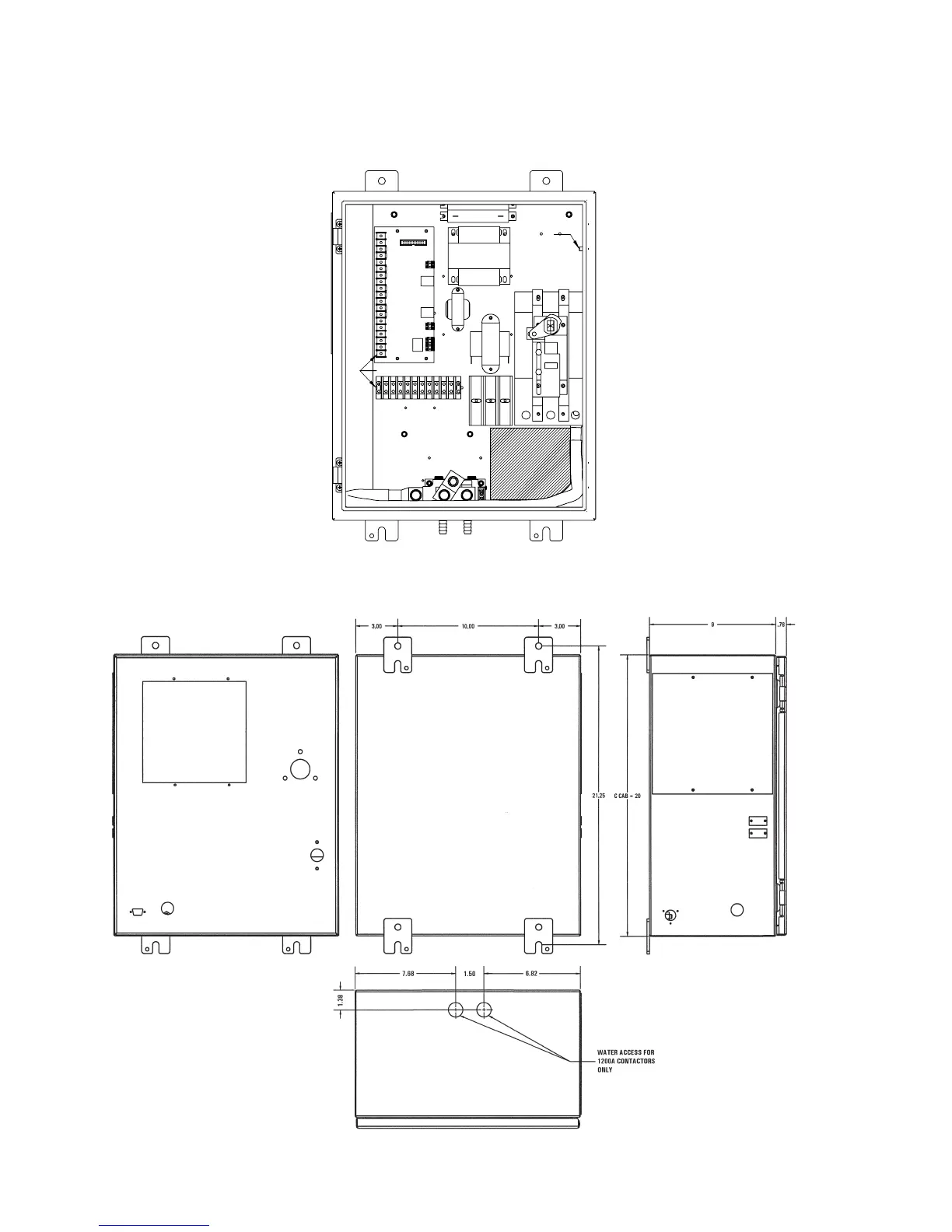
3.4 INSTALLATION AND MOUNTING DIAGRAMS – “C” CABINET
Style “C” Cabinet installation and mounting diagrams are shown in Figures 3-8 and 3-9. Available
contactors for “C” Cabinet – 300A and 1200A.
Figure 3-9. Mounting diagrams for Style “C” Cabinet
TERMINAL
BOARD
CIRCUIT
T2
T1
R70
F2
410319
R71
F3
L1
T3
FIRING
BREAKER
F1
CUTOUT THRU
REAR PANEL TO
REAR OF CABINET
FOR CUSTOMER
WIRING
L1
L2
L1
1200A
L2
IN
WATER
CONTACTOR
WATER
OUT
TERMINAL STRIP TS1
H1
GROUND
LUG
Figure 3-8. Installation diagram for Style “C” Cabinet

Table of Contents

Other manuals for Entron EN1000 series

Related product manuals