EasyManua.ls Logo

Entron EN1000 series

Entron EN1000 series
167 pages
To Next Page IconTo Next Page
To Next Page IconTo Next Page
To Previous Page IconTo Previous Page
To Previous Page IconTo Previous Page
Loading...
Page 32 • 700120S • ENTRON Controls, LLC.
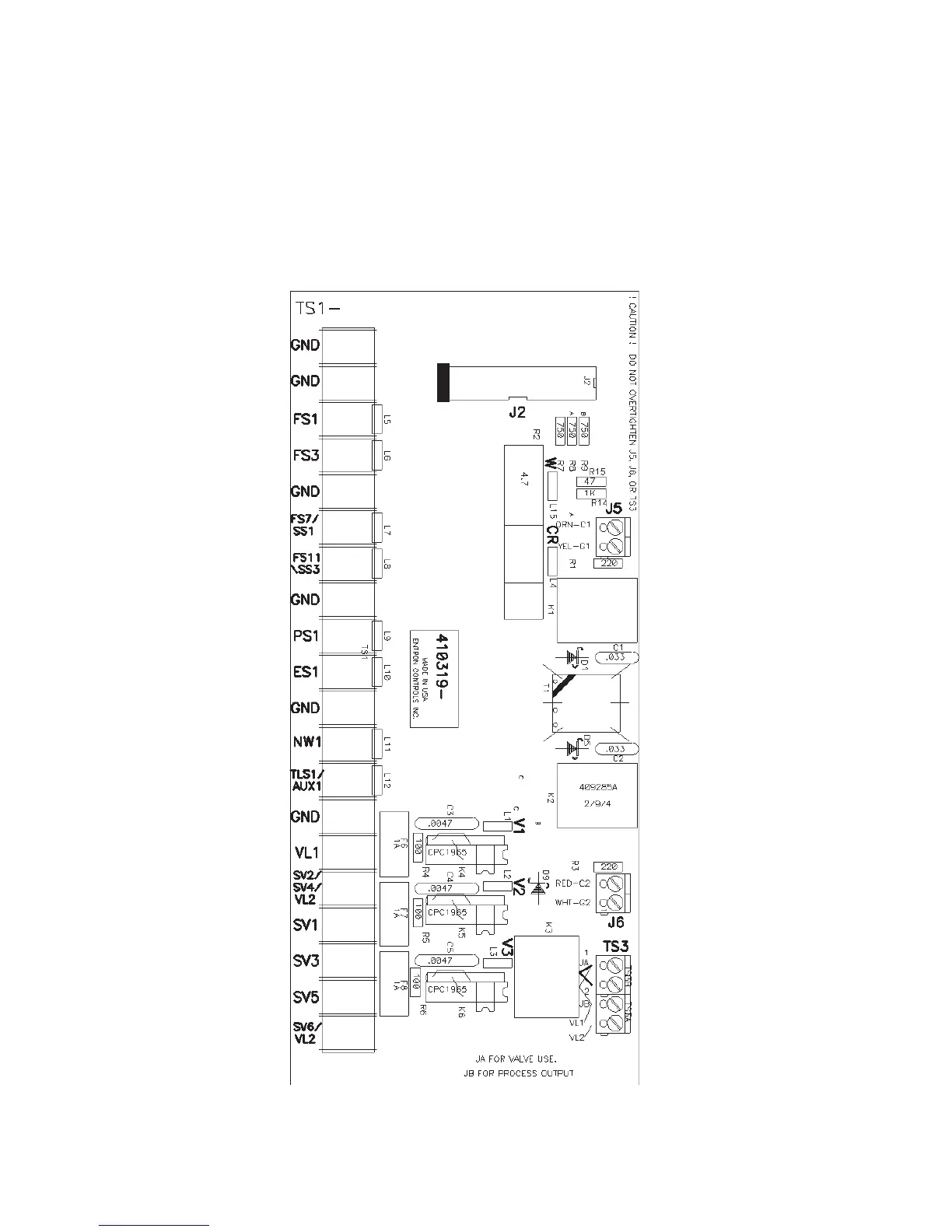
Starting in June 2004, a new tape-layout revision of Terminal Strip/Firing Board A/N 410319
was shipped with controls. Beside new layout of the components on the board, board now
includes optional manufacture of assembly with 24 VDC valves. For more information about
24 VDC valve option, see Application Note 700189.
Valve load resistors have also been omitted. Internal leakage on solid state relays can cause
voltages to be seen across unloaded valve outputs. When Valve Terminals are loaded, these
voltages will disappear.
Figure 4-5. Component placement on new Terminal Strip/Firing Board
For hookup and all terminal connections, see Figure 4-4.
4.3.1 TERMINAL STRIP TS1/PCB2 (cont.)

Table of Contents

Other manuals for Entron EN1000 series

Related product manuals