EasyManua.ls Logo

Entron EN1000 series

Entron EN1000 series
167 pages
To Next Page IconTo Next Page
To Next Page IconTo Next Page
To Previous Page IconTo Previous Page
To Previous Page IconTo Previous Page
Loading...
Page 24 • 700120S • ENTRON Controls, LLC.
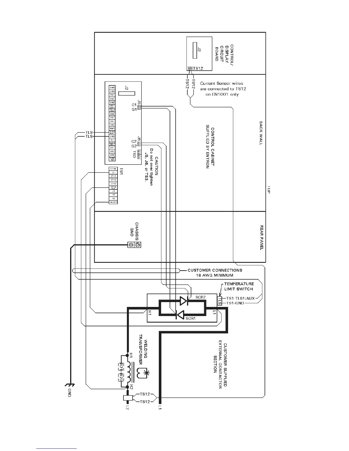
Figure 3-14. External SCR Contactor connections
3.7 EXTERNAL SCR CONTACTOR WIRING (cont.)

Table of Contents

Other manuals for Entron EN1000 series

Related product manuals