EasyManua.ls Logo

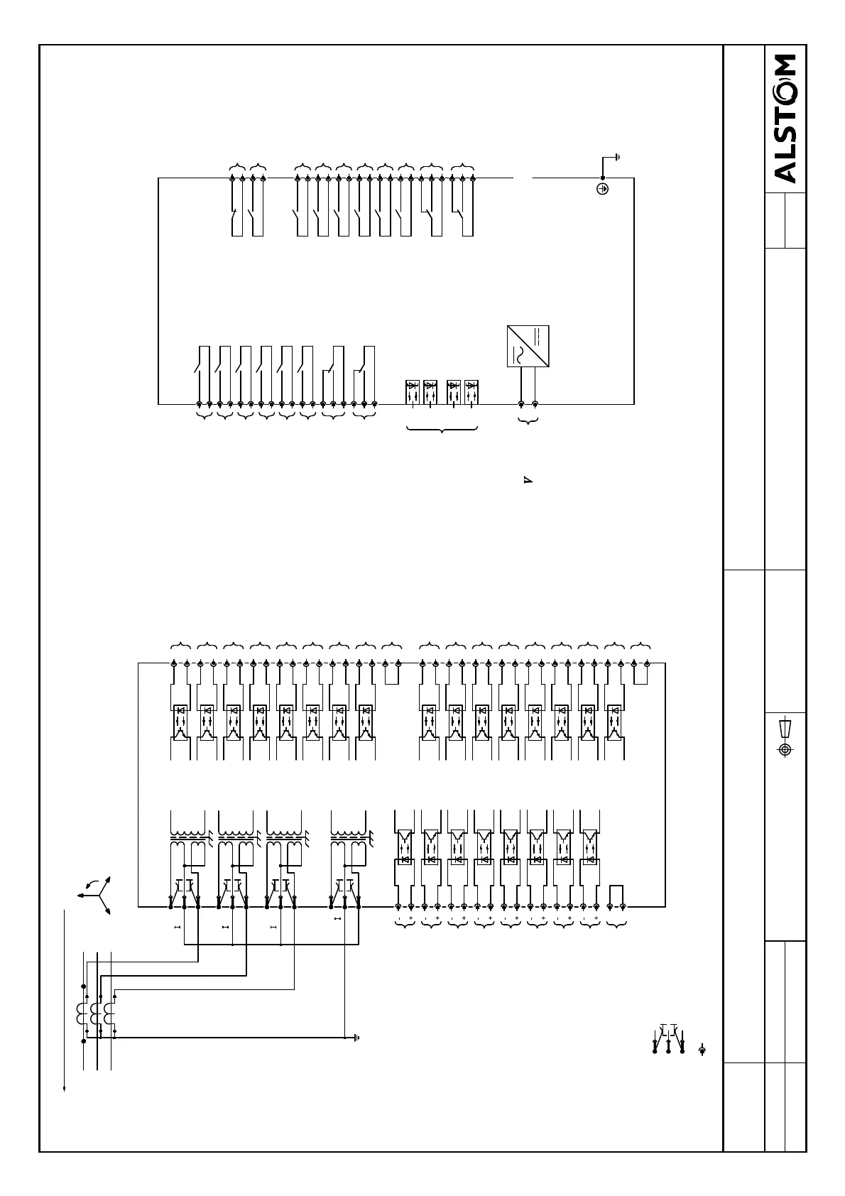
GE P742 - External Connection Diagram: Busbar Protection Peripheral Unit P743

GE P742
560 pages
Print Icon
To Next Page IconTo Next Page
To Next Page IconTo Next Page
To Previous Page IconTo Previous Page
To Previous Page IconTo Previous Page
Loading...
P2
S2 S1
P1
C
B
A
(2)
A
(2)
B
(2)
C
N
NOTE 2.
C.T. SHORTING LINKS
2. C.T. CONNECTIONS ARE SHOWN 1A CONNECTED AND ARE TYPICAL ONLY.
PIN TERMINAL (P.C.B. TYPE)
(b)
(a)
NOTES 1.
CONNECTION
OPTO 24
COMMON
OPTO 23
OPTO 22
OPTO 21
OPTO 20
OPTO 19
OPTO 18
OPTO 17
A1
A2
A3
1A
5A
1A
5A
1A
5A
1A
5A
MiCOM P743 (PART)
MiCOM P743 (PART)
POWER SUPPLY VERSION 24-48V (NOMINAL) D.C. ONLY
*
F3
F14
F17
F16
F18
F15
RELAY 16
RELAY 15
F4
F5
F6
F8
F9
F7
F10
F12
F11
F13
RELAY 13
RELAY 14
RELAY 12
RELAY 10
RELAY 11
G14
F1
F2
RELAY 8
RELAY 9
RELAY 7
TRIP B
TRIP A
G13
G12
G11
WATCHDOG
CONTACT
PHASE ROTATION
A
C B
AUX SUPPLY
AC OR DC
x
-
+
G1
G2
*
DIRECTION OF FORWARD CURRENT FLOW
EARTH
CASE
A4
A5
A6
A7
A8
A9
A10
A11
A12
TRIP C
RELAY 4
RELAY 5
RELAY 6
TX1
RX1
RX2
TX2
FIBRE OPTIC
COMMUNICATION
CURR DIFF
OPTO 9
OPTO 15
OPTO 16
OPTO 12
OPTO 13
OPTO 14
OPTO 10
OPTO 11
CONNECTION
COMMON
+
C17
C18
+
C16
C15
C14
C13
+
-
+
-
C10
C12
C11
C9
+
-
-
C4
C6
C7
C8
C5
-
+
-
+
C2
C3
C1
-
+
-
OPTO 3
OPTO 2
OPTO 1
OPTO 4
B8
B7
B6
B5
B4
B3
B2
B1
+
D15
D17
D16
D18
+
-
D13
D12
D14
D11
+
-
+
-
D10
D9
D8
D7
+
-
+
-
D6
D5
D4
D3
+
+
-
-
D2
D1
-
B11
B15
OPTO 8
B16
OPTO 6
OPTO 7
B13
B14
B12
OPTO 5
B10
B9
B18
B17
CONNECTION
COMMON
E12
E17
E18
E13
E15
E14
E16
E1
E7
E8
E10
E11
E9
E2
E3
E5
E4
E6
3. FOR COMMS OPTIONS SEE DRAWING 10Px4001
COMMS
NOTE 3
WATCHDOG
CONTACT
Drg
No:
Issue: Revision:
Date:
Date:
Name:
Chkd:
DO NOT SCALE
CAD DATA 1:1 DIMENSIONS: mm
Title:
Substation Automation Solutions
ALSTOM GRID UK LTD
(STAFFORD)
Sht:
Next
Sht:
02/07/2013 N.JOHNSON
FIELD VOLTAGE OUTPUT REMOVED. CID HONG-98JC6A.
10P74302
1
-
EXTERNAL CONNECTION DIAGRAM: BUSBAR PROTECTION
P743 PERIPHERAL UNIT (60TE)
E

Table of Contents

Related product manuals