EasyManua.ls Logo

GE P742

GE P742
560 pages
To Next Page IconTo Next Page
To Next Page IconTo Next Page
To Previous Page IconTo Previous Page
To Previous Page IconTo Previous Page
Loading...
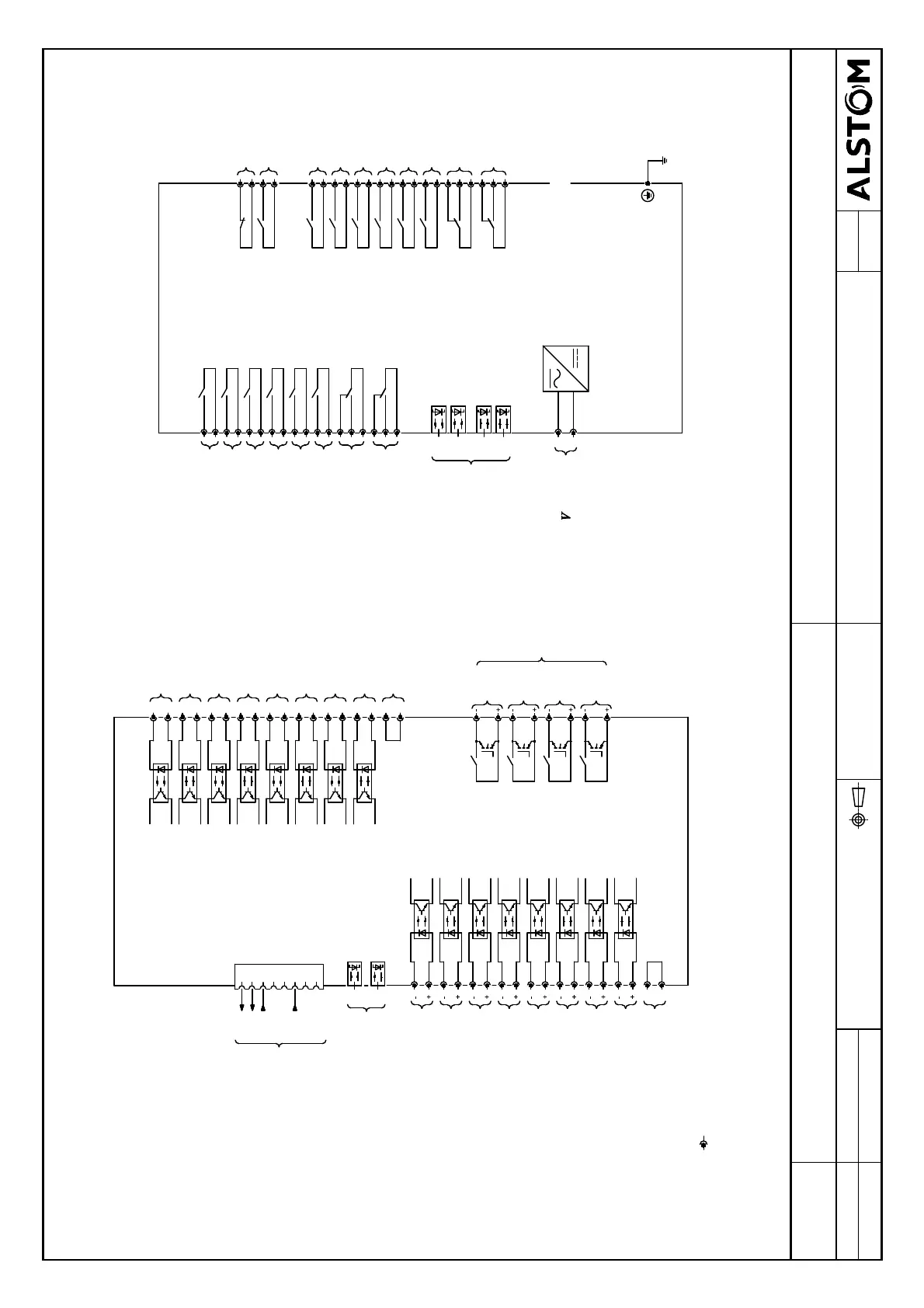
MiCOM P743 (PART)
MiCOM P743 (PART)
POWER SUPPLY VERSION 24-48V (NOMINAL) D.C. ONLY
*
F3
F14
F17
F16
F18
F15
RELAY 12
F4
F5
F6
F8
F9
F7
F10
F12
F11
F13
G14
F1
F2
G13
G12
G11
WATCHDOG
CONTACT
AUX SUPPLY
AC OR DC
x
-
+
G1
G2
*
EARTH
CASE
TX1
RX1
RX2
TX2
FIBRE OPTIC
COMMUNICATION
CURR DIFF
OPTO 9
OPTO 15
OPTO 16
OPTO 12
OPTO 13
OPTO 14
OPTO 10
OPTO 11
CONNECTION
COMMON
+
C17
C18
+
C16
C15
C14
C13
+
-
+
-
C10
C12
C11
C9
+
-
-
C4
C6
C7
C8
C5
-
+
-
+
C2
C3
C1
-
+
-
E12
E17
E18
E13
E15
E14
E16
E1
E7
E8
E10
E11
E9
E2
E3
E5
E4
E6
COMMS
NOTE 3
WATCHDOG
CONTACT
D15
D16
D3
D11
D12
D8
D4
D7
RELAY 1
RELAY 3
RELAY 2
RELAY 4
HIGH BREAK
CONTACTS
RELAY 11
RELAY 10
RELAY 9
RELAY 8
RELAY 7
RELAY 6
RELAY 5
RELAY 20
RELAY 19
RELAY 18
RELAY 17
RELAY 16
RELAY 15
RELAY 14
RELAY 13
7
8
2
4
5
6
3
1
RJ45
RX-
RX+
TX+
TX-
100 BASE-TX
100 BASE-FX
RX
TX
IEC 61850-9-2 LE
IEC 61850-9-2 LE
SK6
PIN TERMINAL (P.C.B. TYPE)
1.
NOTES .
2. FOR COMMS OPTIONS SEE DRAWING 10Px4001
OPTO 3
OPTO 2
OPTO 1
OPTO 4
B8
B7
B6
B5
B4
B3
B2
B1
B11
B15
OPTO 8
B16
OPTO 6
OPTO 7
B13
B14
B12
OPTO 5
B10
B9
B18
B17
CONNECTION
COMMON
(SAMPLE ANALOGUE VALUE ONLY)
(SAMPLE ANALOGUE VALUE ONLY)
3. COPPER PORT IS FOR SERVICE ONLY, NOT RECOMMENDED
FOR PERMANENT CONNECTION.
Drg
No:
Issue: Revision:
Date:
Date:
Name:
Chkd:
DO NOT SCALE
CAD DATA 1:1 DIMENSIONS: mm
Title:
Substation Automation Solutions
ALSTOM GRID UK LTD
(STAFFORD)
Sht:
Next
Sht:
08/07/2013 N.JOHNSON
DC FIELD OUTPUT VOLTAGE REMOVED. CID HONG-98JC6A.
10P74308
1
-
EXTERNAL CONNECTION DIAGRAM: BUSBAR PROTECTION
PERIPHERAL UNIT P743 (60TE) WITH NCIT
C

Table of Contents

Related product manuals