EasyManua.ls Logo

HI Sec THOR - RKP ACM;ACW Indoor Magstripe;Wiegand Card Reader; Mechanical Measurements and Lay-Out

Default Icon
206 pages
Print Icon
To Next Page IconTo Next Page
To Next Page IconTo Next Page
To Previous Page IconTo Previous Page
To Previous Page IconTo Previous Page
Loading...
Technical Manual
October 1, 1995 18-006/081-04 GB
73
2.3 90T RKP ACM/ACW Indoor Magstripe/Wiegand Card reader.
2.3.1 Mechanical measurements and lay-out.
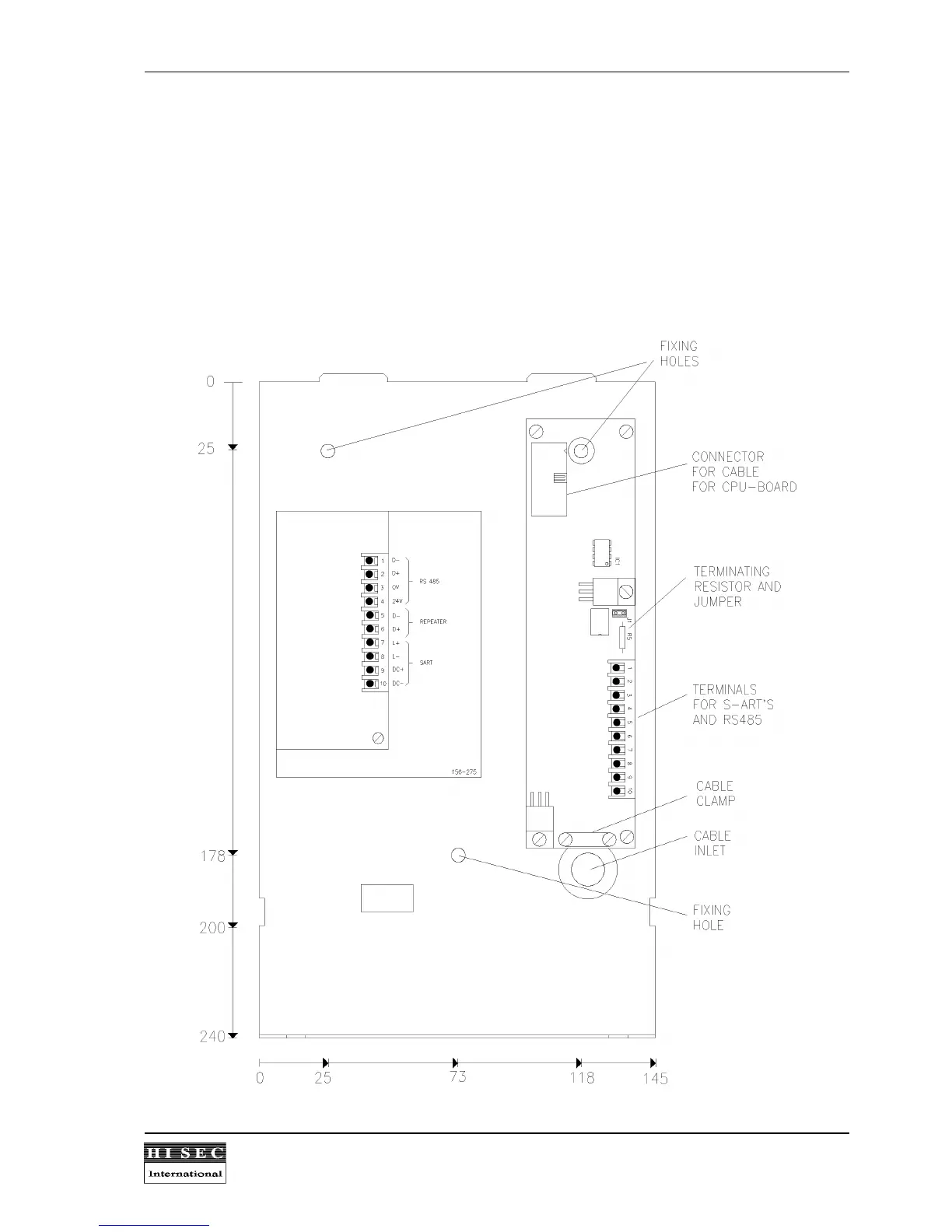
The units are opened by loosening the two l/n screws in the bottom of the cabinet. The screws must be loosened
app. 1 cm out and after that the front cover can be taken away from the back plate. A flat cable connects the
cable interface board with the CPU-board and this flat cable is taken out of the socket.
After removing the front cover the back-plate can be fixed on the wall with 3 M4 steel screws or similar. The
fixing holes for a Remote keypad and a Card reader are in the same position.

Table of Contents