EasyManua.ls Logo

Janus JFS-A1 - P-Link Addresses

Janus JFS-A1
125 pages
Print Icon
To Next Page IconTo Next Page
To Next Page IconTo Next Page
To Previous Page IconTo Previous Page
To Previous Page IconTo Previous Page
Loading...
Page: 30
JFS-A1 INSTALLATION, OPERATION, AND INSTRUCTION MANUAL
Document #: DOC230
Issued: August 27, 2012
Revised: N/A
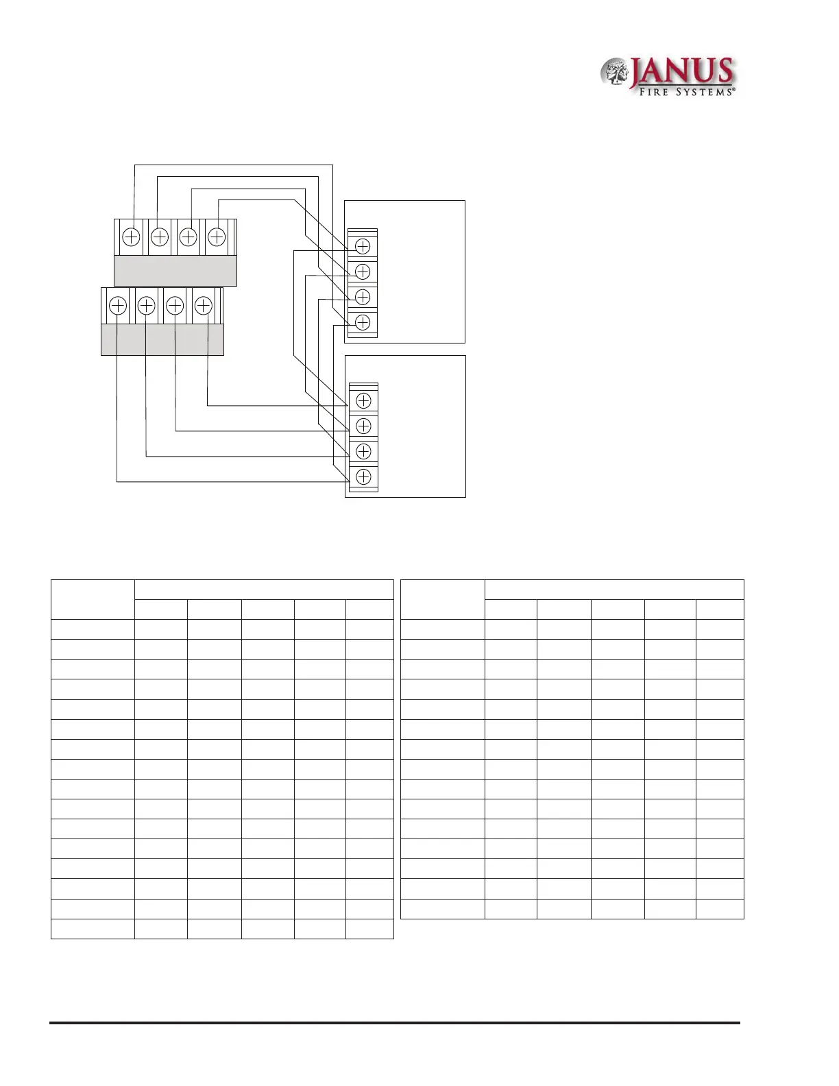
Figure 32. Example of P-Link Class A Wiring Requiring a CA-6075
P-Link Addresses
Each P-Link device has a ve position dip switch which is used to program the device address ranging from one (1)
to thirty-one (31). Use the chart below to reference Dip Switch Settings:
Note: When assigning dip switch addresses, each device must have a unique number within each device type group. For
example, a group of LCD annunciators may be assigned 1-10, and PSN-1000/PSN-1000(E) power expansion
boards may also be assigned 1-10.
DWG #602-12A
Annunciator
Address
Dip Switch Settings
SW-1 SW-2 SW-3 SW-4 SW-5
1 On Off Off Off Off
2 Off On Off Off Off
3 On On Off Off Off
4 Off Off On Off Off
5 On Off On Off Off
6 Off On On Off Off
7 On On On Off Off
8 Off Off Off On Off
9 On Off Off On Off
10 Off On Off On Off
11 On On Off On Off
12 Off Off On On Off
13 On Off On On Off
14 Off On On On Off
15 On On On On Off
16 Off Off Off Off On
Annunciator
Address
Dip Switch Settings
SW-1 SW-2 SW-3 SW-4 SW-5
17 On Off Off Off On
18 Off On Off Off On
19 On On Off Off On
20 Off Off On Off On
21 On Off On Off On
22 Off On On Off On
23 On On On Off On
24 Off Off Off On On
25 On Off Off On On
26 Off On Off On On
27 On On Off On On
28 Off Off On On On
29 On Off On On On
30 Off On On On On
31 On On On On On
- + A B
Expansion
Device
- + A B
P-LINK
- + A B
P-LINK
- + A B
Panel
Connection
CA-6075
Connection
Expansion
Device

Table of Contents