EasyManua.ls Logo

Moxy MT 31 - Electrical Connection VDC

Default Icon
931 pages
Print Icon
To Next Page IconTo Next Page
To Next Page IconTo Next Page
To Previous Page IconTo Previous Page
To Previous Page IconTo Previous Page
Loading...
Subject to modifications
User Manual
Operation Instructions
2.1A-30008-A04
Page 39 of 48
LINCOLN GmbH & Co. KG • Postfach 1263 • D-69183 Walldorf • Tel +49 (6227) 33-0 • Fax +49 (6227) 33-259
Technical Data, continuation
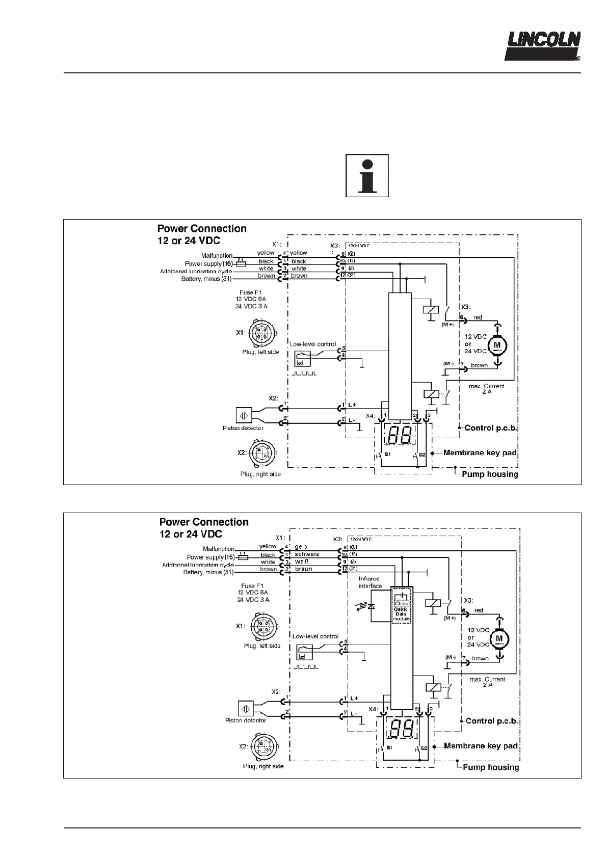
Electrical connection VDC
Observe the safety instructions (page 6) and the techni-
cal data (pages 37 and 38)!
Make sure of the connection and the type of construction
of your P223, 233.
Connect the electrical wires according to the following
electrical connecting diagrams.
6001a02
NOTE
For connection of the low-level control
observe the respective connection dia-
grams and contact protective measures
(see fig. 37, page 22).
Pump 223 with
control p.c.b.
MF00
4361a04
Fig. 48 Connection diagram DC, pump 223
Pump 233 with
control p.c.b
MDF00
4361a01
Fig. 49 Connection diagram DC, pump 233

Table of Contents

Related product manuals