EasyManua.ls Logo

WILLETT 430 - Page 107

WILLETT 430
207 pages
Print Icon
To Next Page IconTo Next Page
To Next Page IconTo Next Page
To Previous Page IconTo Previous Page
To Previous Page IconTo Previous Page
Loading...
430 Ink Jet Printer Service and Maintenance Manual
90
Issue 2
Part No. 306-0430-102
3
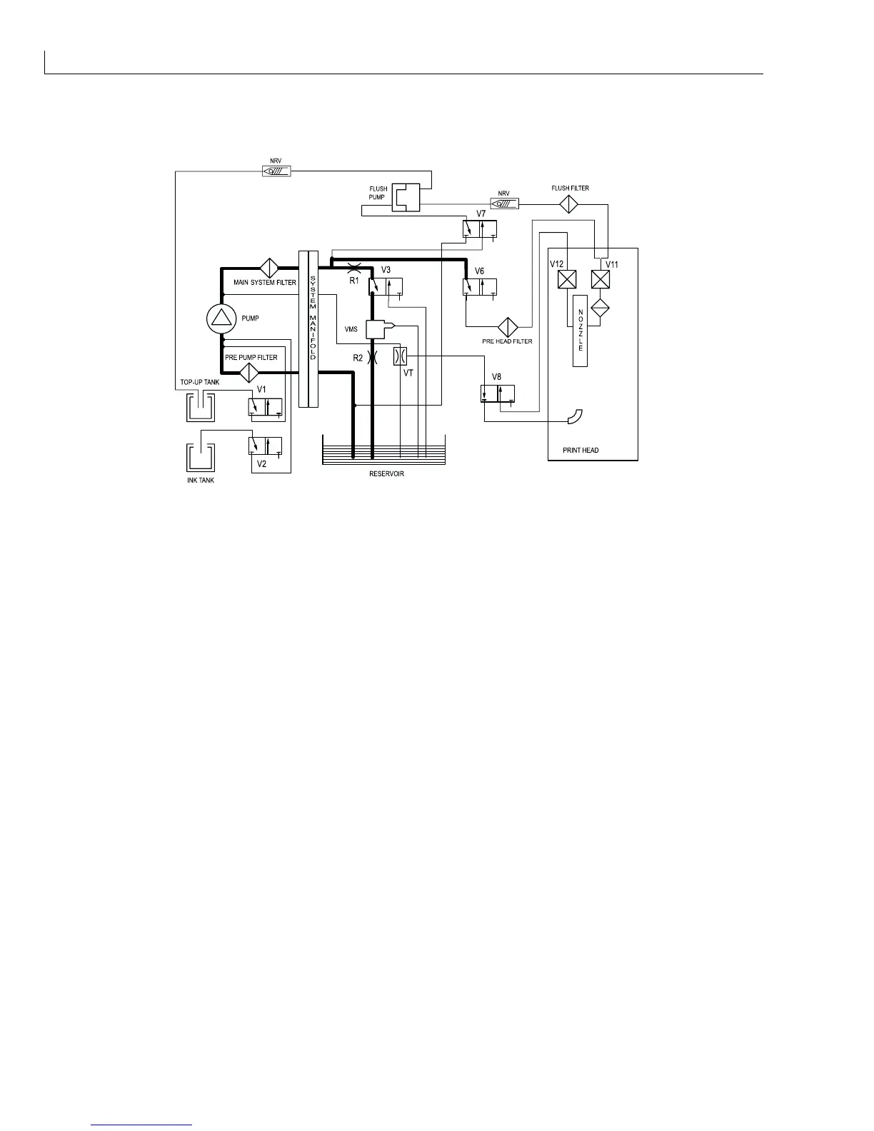
The ink flows out of the chamber through a large restrictor into the mixer tank until the low level sensor is
uncovered. The CPU in the electronics system measures the time that this takes. V3 energises and the
chamber starts to fill again (Figure 40).
NOZZLE
FILTER
GUTTER
Figure 40 VMS Sequence Sheet 3
4
The time taken for the ink to run out of the chamber is dependent on its viscosity; the thicker the ink, the
longer it will take to drain. The viscosity of the ink is affected by solvent loss during normal machine
operation as well as by its temperature, which is monitored by a sensor in the mixer tank.
5
The CPU compares the time taken for the ink to drain against a value calculated by the software. The
software takes into account the type of ink (entered during system calibration) and its temperature.
6
If the ink is too thick (i.e. the time to drain is longer than the calculated value) solenoid valve V1 opens. The
pump draws solvent from the top up reservoir, adding it in small doses to the mixer tank every 2nd VMS
cycle until the viscosity is correct (see
Top Up Addition to Mixer Tank
on page 98).
7
The viscosity monitoring sequence is repeated each time that the low level sensor in the VMS chamber is
uncovered.
Note: Ink is only added to the mixer tank when the tank level is below the OK level sensor.

Table of Contents

Related product manuals