EasyManua.ls Logo

WILLETT 430 - Clean Stop Jet Sequence

WILLETT 430
207 pages
Print Icon
To Next Page IconTo Next Page
To Next Page IconTo Next Page
To Previous Page IconTo Previous Page
To Previous Page IconTo Previous Page
Loading...
430 Ink Jet Printer Service and Maintenance Manual
94
Issue 2
Part No. 306-0430-102
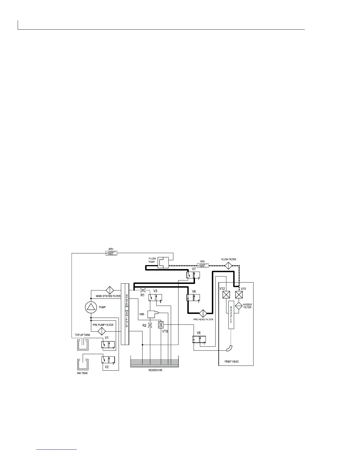
Clean Stop Jet Sequence
When the clean stop jet sequence is initiated the following automatically takes place:
1
EHT switched off.
2
Ink system pressure increased to 4 bar (
Figure 45
).
3
Wait 5 seconds - modulation and phasing switched off.
4
Bleed valve V12 is switched on.
5
Wait 1 second - flush valve V7 opens.
6
Wait 1 second - ink feed valve V6 closes (
Figure 46
).
7
Wait 5 seconds - bleed valve V12 closes.
8
Wait 2 seconds - bleed valve opens.
9
Jet feed valve V11 closes.
10
Wait 500 ms - gutter valve V8 and flush valve V7 closes.
11
Wait 500 ms - bleed valve V12 closes.
12
Wait 500 ms - bleed valve V12 and flush valve V7 are switched off (
Figure 47
).
13
Wait 500 ms - gutter valve is switched on
14
Wait 20 seconds.
15
Gutter valve is switched off.
16
Pumps switched off.
GUTTER
Figure 45 Clean Stop Jet Sequence Pressurise Flush Pump

Table of Contents

Related product manuals