EasyManua.ls Logo

Lexmark W850 - Page 327

Lexmark W850
327 pages
Print Icon
To Previous Page IconTo Previous Page
To Previous Page IconTo Previous Page
Loading...
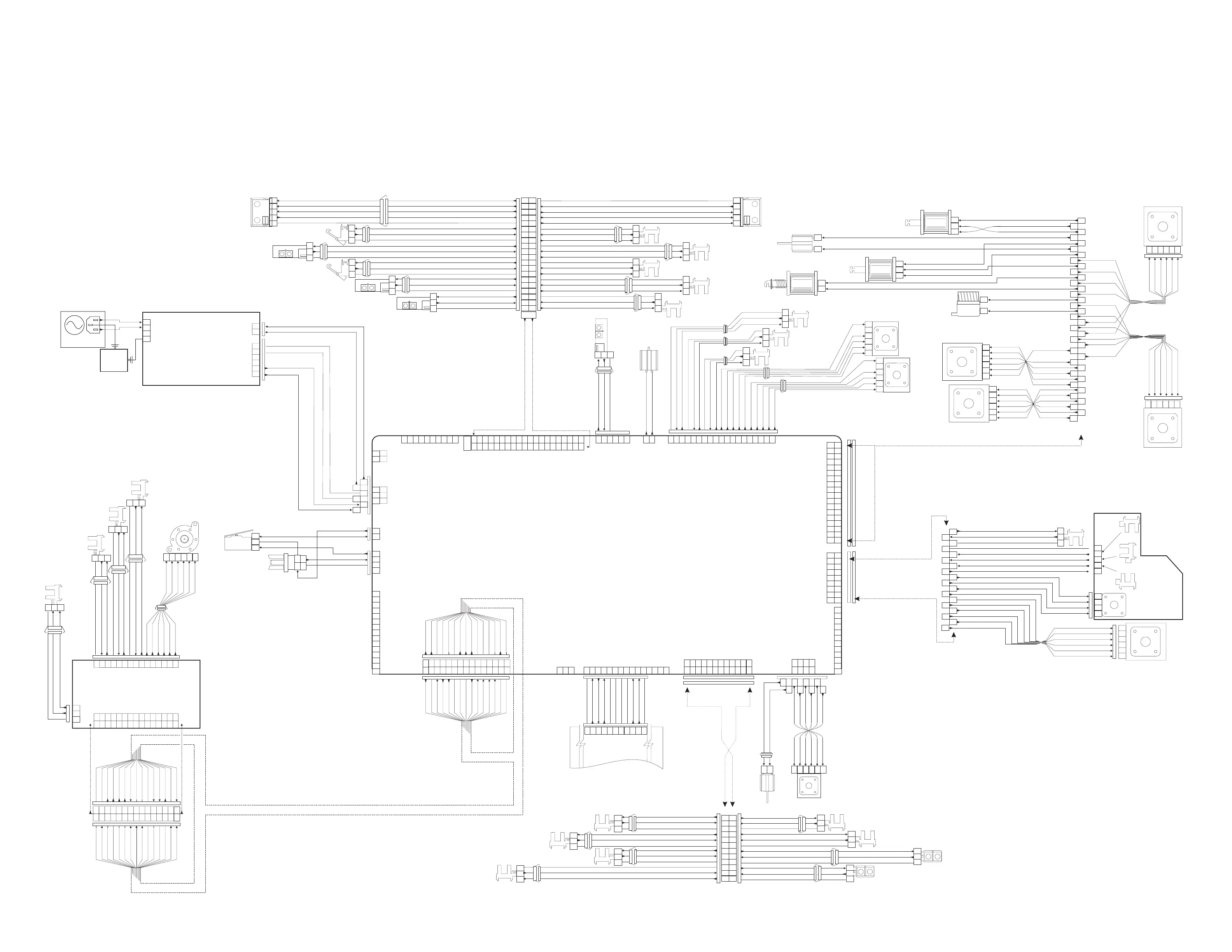
4024 Finisher Service Manual
2
1
3
4
6
8
12
10
14
5
7
11
9
13
15
17
16
18
19
21
23
27
25
29
20
22
26
24
28
30
Bridge Motor B
I/L +24VDC
Bridge Motor/B
Shift Motor/A
I/L +24VDC
Punch Motor A
Bridge Motor/A
Shift Moror B
J8372
I/L +24VDC
I/L +24VDC
Bridge Motor A
Shift Motor/B
2
1
3
4
6
5
Bridge Motor/A
I/L +24VDC
Bridge Motor A
Bridge Motor B
I/L +24VDC
Bridge Motor/B
2
2
3
3
1
1
Bridge Unit
Interface Card ASM
2
1
3
2
3
1
Sensor (Punch Waste
Box Full)
Punch Full SNR (L)+5VDC
SIG GND
+5VDC
2
2
1
1
3
3
4
6
8
12
10
14
5
7
11
9
13
15
P8316
2
1
3
4
2
2
1
1
3
4
6
5
2
1
3
4
P8314
P8313
P8315
P8317
P8311
P8302
2
1
3
4
6
5
P8376
2
1
P8305
2
1
3
4
6
8
12
10
14
5
7
11
9
13
15
17
16
18
19
P8309
7
8
3
4
5
1
2
6
Punch Motor CCW ON(H)+24VDC
Punch Motor CW ON(H)+24VDC
Sensor (Punch
Hole Select)
2
1
3
SIG GND
Punch Hole Select SNR(L)+5VDC
Anode
Sensor (Punch
Cam Front)
2
1
3
SIG GND
Punch Cam Front SNR(L)+5VDC
Anode
Sensor (Punch
Unit HP)
2
1
3
SIG GND
Punch Unit HP SNR(L)+5VDC
Anode
To Printer Engine
Card ASM
P8300
LVPS SQ
SIG GND
FIN To ENGINE
Engine to FIN
REGI Clutch ON
+24VDC
+24VDC
RTN
RTN
P505
LVPS SQ
LVPS SQ
+24VDC
+24VDC
RTN
RTN
IF MOT Current
IF MOT Phase
HT IF MOT CLK
MOT Reset
IF MOT ENB
IF ENT SNR
IF Exit SNR
DEC Home SNR
SIG GND
+5VDC
DEC Clutch DRV
B
A
P8307
2
2
2
1
1
1
3
3
3
4
4
4
6
6
6
8
8
8
12
12
10
10
10
14
5
5
5
7
7
7
11
11
11
9
9
9
13
15
2
1
3
P8301
P8310
P8306
PJ416
P502
2
2
2
1
1
1
3
3
3
4
4
4
6
8
12
10
5
5
7
11
9
P8389
P8308
2
1
3
4
6
8
12
10
14
5
7
11
9
13
15
2
2
1
1
3
3
4
4
6
6
8
8
12
10
10
14
5
5
7
7
11
9
9
13
15
17
16
18
19
21
23
27
25
29
20
22
26
24
28
30
2
2
2
2
2
2
2
2
2
1
1
1
1
1
1
1
1
1
3
3
3
3
3
3
3
3
3
4
4
4
4
4
4
4
4
6
6
6
6
6
6
6
8
8
8
8
8
8
8
12
12
12
12
12
12
10
10
10
10
10
10
14
14
14
14
14
5
5
5
5
5
5
5
5
7
7
7
7
7
7
7
11
11
11
11
11
11
9
9
9
9
9
9
13
13
13
13
13
15
15
15
15
15
17
17
17
17
17
16
16
16
16
16
18
18
18
18
18
19
19
19
19
21
23
27
25
29
20
20
20
20
22
26
24
28
30
33
31
35
32
34
36
3
1
5
7
11
15
23
19
27
9
13
21
17
25
29
33
31
35
2
6
10
18
14
22
4
8
16
12
20
24
30
26
34
28
32
36
P8304
+24VDC
+24VDC
RTN
RTN
IF MOT Current
IF MOT Phase
HT IF MOT CLK
MOT Reset
IF MOT ENB
IF ENT SNR
IF Exit SNR
DEC Home SNR
SIG GND
+5VDC
DEC Clutch DRV
+24VDC
SIG GND
Bridge To FIN
FIN To H-TRA
RS232C Select
Gate SOL Pull
Gate SOL Push
IF MOT Brake
Bridge MOT Enable
Punch Full SNR
Bridge I/L SNR
Bridge Exit SNR
Bridge ENT SNR
IOT Full SNR
Docking SNR
J8371
Sensor(Bridge Unit
Media entrance)
+5VDC
Bridge Media Entrance SNR(L)+5VDC
SIG GND
Bridge Unit
Drive Motor
2
31
Sensor(Bridge Unit
Media exit)
+5VDC
Bridge Media Exit SNR(L)+5VDC
SIG GND
2
2
3
3
1
1
Sensor (Bridge Unit Top
Cover interlock
Sensor
(Buffer Path)
Sensor (Punch
Unit Motor Encoder)
Sensor (Stacker
Bin Upper Limit)
Sensor (Punch Waste
Box Set)
Sensor (Rear
Tamper HP)
Switch(Eject Cover Interlock)
Sensor (Front
Tamper HP)
Sensor
(Media In)
Stacker Bin
Lift Motor
Sensor
(Stacker Bin
No Media)
+5VDC
Bridge Cover Closed(L)+5VDC
Buffer Path SNR(L)+5VDC
Stacker Bin Upper Limit SNR(L)+5VDC
Punch Waste Box Set(L)+5VDC
Rear Tamper Home Sensed(L)+5vdc
SIG GND
3
1
5
7
11
15
9
13
17
2
6
10
18
14
4
8
16
12
J8500
2
1
3
4
6
8
12
10
14
5
7
11
9
13
15
17
16
18
19
21
23
27
25
29
20
22
26
24
28
30
+24VDC
SIG GND
Bridge To FIN
FIN To H-TRA
RS232C Select
Gate SOL Pull
Gate SOL Push
IF MOT Brake
Bridge MOT Enable
Punch Full SNR
Bridge I/L SNR
Bridge Exit SNR
Bridge ENT SNR
IOT Full SNR
Docking SNR
Fuser Exit
2
2
1
1
3
3
4
4
6
8
12
10
14
5
5
7
11
9
13
15
17
16
18
19
20
+5VDC
Elevator Motor Down(H)+24VDC
SIG GND
231
Sensor (Upper
Media Bin Full)
Sensor (Upper
Media Exit)
+5VDC
Upper Media Bin Full SNR(L)+5VDC
SIG GND
2
2
2
2
2
2
3
3
3
3
3
3
1
1
1
1
1
1
+5VDC
+5VDC
+5VDC
+5VDC
+5VDC
SIG GND
SIG GND
SIG GND
SIG GND
SIG GND
231
+5VDC
+5VDC
Diverter Gate SNR(L)+5VDC
SIG GND
SIG GND
Sensor
(Diverter Gate)
Sensor (Finisher Media
Entrance)
231
Fin Media Entrance SNR(L)+5VDC
A
B
A
Stacker No Media SNR(L)+5VDC
2
3
1
+5VDC
SIG GND
Sensor(Stacker Bin Level Encoder)
Stacker Bin Level Encode SNR(L)+5VDC
2
3
1
+5VDC
SIG GND
Sensor (Media Eject
Shaft HP)
Sensor
(Stacker Bin Level 2)
2
3
1
+5VDC
SIG GND
Media Eject SNR(L)+5VDC
Sensor (Media Eject
Clamp HP)
Eject Clamp UP(L)+5VDC
2
3
1
+5VDC
SIG GND
P8302A
P8302B
SIG GND
SIG GND
Stacker Bin Level SNR1(L)+5VDC
Stacker Bin Level SNR2(L)+5VDC
+5VDC
+5VDC
Stacker SNR1 ClockBin Level
Stacker Bin Level SNR1 Clock
Stacker SNR2 ClockBin Level
Stacker SNR2 ClockBin Level
Exit Motor/A
Sig Gnd
Exit Motor A
Exit Motor B
I/L +24VDC
I/L +24VDC
Exit Motor/B
B/T Motor/A
B/T Motor A
B/T Motor B
I/L +24VDC
I/L +24VDC
B/T Motor/B
I/L +24VDC
Eject Motor A
Eject Motor/A
Eject Motor B
Eject Motor/B
I/L +24VDC
I/L +24VDC
I/L +24VDC
Trans Motor A
Trans Motor/A
Ent/Pad MOT/A
Trans Motor B
Ent/Pad MOT B
Trans Motor/B
Eject Clamp Motor CCW ON(H)+24VDC
2
1
3
4
6
5
Drive Motor
(Entrance/Paddle)
Ent/Pad MOT A
I/L +24VDC
Ent/Pad MOT/B
I/L +24VDC
I/L +24VDC
I/L +24VDC
MED Eject MOT /A
Staple /Ar Carriage MOT
Staple Move/A
MED Eject MOT B
Staple Br Carriage MOT
Staple Move B
2
2
1
1
3
3
4
4
6
6
5
5
MED Eject MOT A
Stapler Carriage MOT A
Staple Move A
I/L +24VDC
I/L +24VDC
I/L +24VDC
MED Eject MOT /B
Staple /Br Carriage MOT
Staple Move/B
I/L +24VDC
Exit Motor/A
Exit Motor B
2
1
3
4
6
5
Exit Motor A
I/L +24VDC
Exit Motor/B
Drive Motor
(Buffer/Transport)
Media
Eject Clutch
Drive Motor
(Exit)
I/L +24VDC
B/T Motor/A
B/T Motor B
2
1
3
4
6
5
B/T Motor A
I/L +24VDC
B/T Motor/B
Media
Eject Motor
Stapler
Carriage
Motor ASM
1
2
P8304
Media eject clutch ON(L)+24VDC
I/L +24VDC
Sub Paddle
Solenoid
Eject Clamp
Motor
1
2
1
2
Sub Paddle Solenoid ON(L)+24VDC
I/L +24VDC
Transport Gate Solenoid(pull)(L)+24VDC
I/L +24VDC
2
1
3
I/L +24VDC
Media div solenoid(pull)(L)+24VDC
Media Diverter
Solenoid
Buffer div solenoid(push)(L)+24VDC
Buffer div solenoid(pull)(L)+24VDC
2
1
3
2
1
3
Buffer Diverter
Solenoid
I/L +24VDC
Elevator Motor Up(H)+24VDC
2
2
4
1
1
1
3
3
2
4
4
5
6
6
6
5
5
3
Rear Tamper Motor/B
Rear Tamper Motor B
Rear Tamper Motor/A
+24VDC
Rear Tamper Motor A
Rear
Tamper
Motor
2
1
3
4
6
5
Front Tamper
Motor
Front Tamper Motor/B
Front Tamper Motor B
Front Tamper Motor/A
+24VDC
Front Tamper Motor A
Front Tamper Home Sensed(L)+5vdc
+5VDC
SIG GND
Eject Clamp Motor CW ON(H)+24VDC
SIG GND
Front Tamper Home Sensed(L)+5vdc
P8308
I/L +24VDC
Low Staple Sensed(L)+5VDC
Staple Ready Sensed(L)+5VDC
Staple Head Home Sensed(L)+5VDC
+5VDC
Sensor(Low
Staple)
Sensor
(Staple Ready)
Sensor (Staple
HP)
Staple Motor +
Staple Motor +
Staple Motor -
Staple Motor -
Staple
Motor
Unit
Stapler unit
ASM
Sig Gnd
Staple Carriage Position Sensed(L)+5VDC
+5VDC
Sensor(Stapler
Carriage HP)
Sub Paddle Solenoid ON(L)+24VDC
Media div solenoid(push)(L)+24VDC
Transport Gate Solenoid(push)(L)+24VDC
B
2
2
2
2
2
1
1
1
1
1
3
3
3
3
3
4
6
8
12
10
5
7
11
9
2
1
3
4
6
8
12
10
5
7
11
9
A
B
Sensor (Punch
Carriage
Shift HP)
Punch Carriage Shift(L)+5VDC
+5VDC
SIG GND
Punch Unit side REG 2 SNR(L)+5VDC
+5VDC
SIG GND
Sensor (Punch Unit
Side REG2)
2
1
3
Punch Unit Side REG1 SNR(L)+5VDC
+5VDC
SIG GND
Sensor (Punch Unit
Side REG1)
+5VDC
SIG GND
PunchUnit Encoder SNR(L)+5VDC
Punch Carriage
Shift Motor ASM
Punch Unit
Motor
I/L +24VDC
Shift Motor/A
Shift Motor B
2
2
1
1
3
4
6
5
Shift Motor A
I/L +24VDC
Shift Motor/B
3
4
SIG GND
Front door interlock SW
2
1
2
1
AB
I/L+24VDCI/L+24VDC
+24VDC
Eject Cover
Eject Cover
Switch (Finisher
Front Door Interlock)
Finisher Controller
Card ASM
15
Sensor
(Diverter Gate)
Gate Mdia Sensed(H)+5VDC
Sensor
(Stacker Bin Level 1)
Finisher LVPS
Card ASM
P2
2
1
3
4
AC IN
(From Engine)
HOT
Neutral
To Metal
Finisher
Frame

Table of Contents

Other manuals for Lexmark W850

Related product manuals