EasyManua.ls Logo

LSIS XDL-L7SA002X - Page 17

LSIS XDL-L7SA002X
275 pages
Print Icon
To Next Page IconTo Next Page
To Next Page IconTo Next Page
To Previous Page IconTo Previous Page
To Previous Page IconTo Previous Page
Loading...
1. Product Components and Signals
2-5
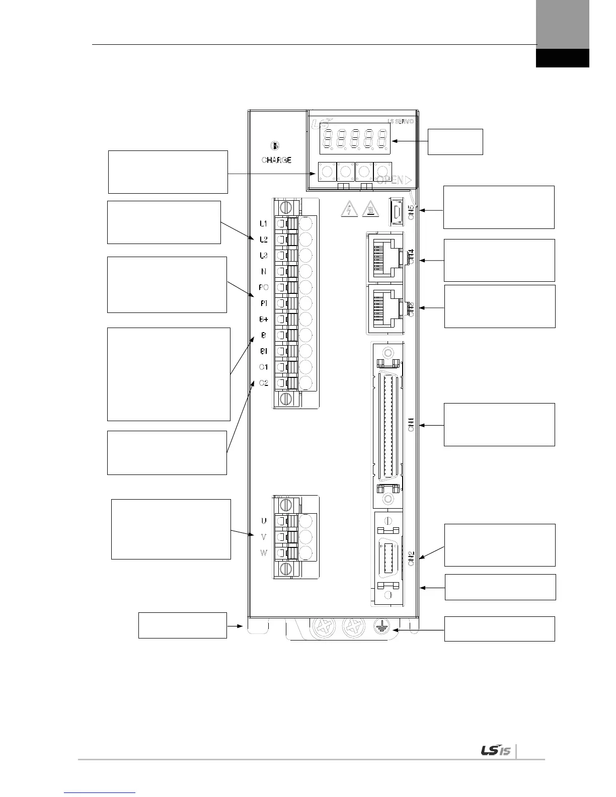
XDL-L7SA 008, XDL-L7SA 010
CN3:
RS-422 communication
connector
CN2:
Encoder signal connector
CN1:
Control signal connector
Display
Front cover
CN5:
USB connector
CN4:
RS-422 communication
connector
Main power connector
(L1, L2, L3)
Motor power cable
connector (U, V, W)
Heat sink
Control power connector
(C1, C2)
Ground
Operation keys
(Mode, Up, Down, Set)
DC reactor connector
(PO, PI)
Short circuit when not used
Regenerative resistance
connector (B+, B, BI)
When basic installation
is in use short circuit B
and BI terminals.
When installing external
resistance install in the
B+ and B terminals.

Table of Contents

Related product manuals