EasyManua.ls Logo

LSIS XDL-L7SA002X - Page 18

LSIS XDL-L7SA002X
275 pages
Print Icon
To Next Page IconTo Next Page
To Next Page IconTo Next Page
To Previous Page IconTo Previous Page
To Previous Page IconTo Previous Page
Loading...
1. Product Components and Signals
2-6
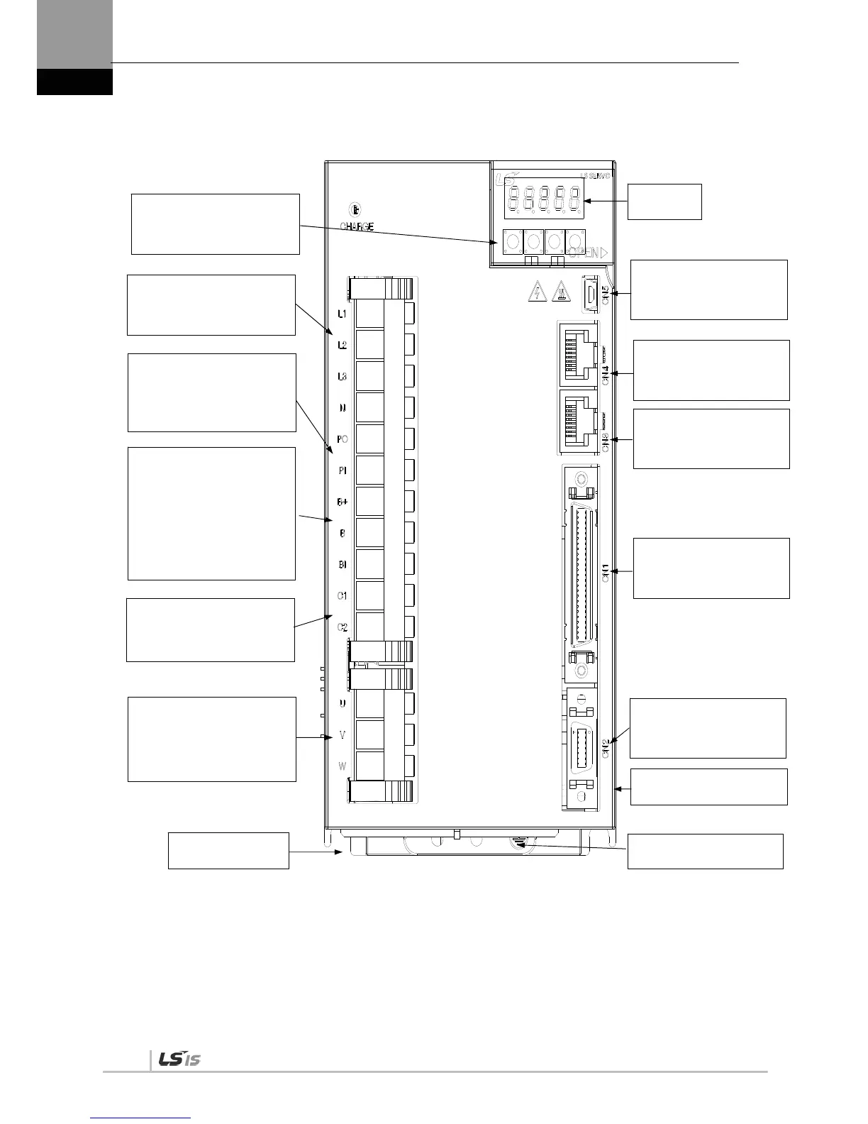
XDL-L7SA 020, XDL-L7SA 035
CN3:
RS-422 communication
connector
CN2:
Encoder signal connector
CN1:
Control signal connector
Display
Front cover
CN5:
USB connector
CN4:
RS-422 communication
connector
Main power connector
(L1, L2, L3)
Motor power cable
connector (U, V, W)
Heat sink
Control power connector
(C1, C2)
DC reactor connector
(PO, PI)
Short circuit when not used
Regenerative resistance
connector (B+, B, BI)
When basic installation
is in useshort circuit B
and BI terminals.
When installing external
resistance install in the
B+ and B terminals.
Operation keys
(Mode, Up, Down, Set)
Ground

Table of Contents

Related product manuals