EasyManua.ls Logo

Magnescale LH71A - Page 304

Default Icon
Print Icon
To Next Page IconTo Next Page
To Next Page IconTo Next Page
To Previous Page IconTo Previous Page
To Previous Page IconTo Previous Page
Loading...
7-14 (CS)
LH71A / LH72
7. 操作方法
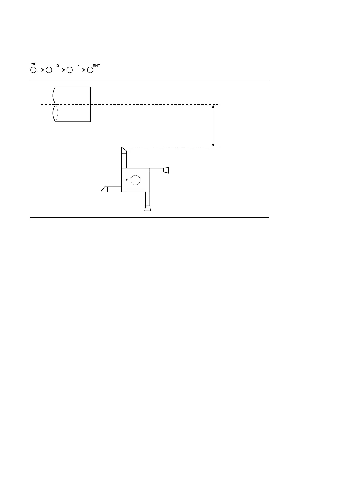
6 为了把加工后的端面作为 Z 轴加工基准点,对 Z 轴输入“0”后,按基准点设定键。
工件
X 轴加工基准点
现在位置
刀具 No. 1 的车刀
刀座
刀具 No. 2 的车刀

Table of Contents

Related product manuals