EasyManua.ls Logo

MyBinding DC-545HC - Creaser Calibration; Objective; How to Make Adjustments

Default Icon
175 pages
Print Icon
To Next Page IconTo Next Page
To Next Page IconTo Next Page
To Previous Page IconTo Previous Page
To Previous Page IconTo Previous Page
Loading...
100
v Creaser Calibration
• Removing the Creaser Assembly
\See page 70
NOTE :
You need to adjust the sensor plate after
installing the creaser assembly.
\See page 118
You need to adjust the creaser perpendicu-
larity and creaser calibration after adjusting
the sensor plate.
\See page 108
1. Objective
Adjusting the distance between the cutter and the
creaser.
2. How to make adjustments
q Select P-79. Turn off both bar code and reg. mark.
NOTE :
Use a JOB that has the Cut 1 set to 10.0 mm
and SCR 1 set to 114.0 mm when the preset
program P-79 have been overwritten.
\See page 155
w Run one sheet of paper that is either 8
1
/2” x 11”, A4
size, or use the adjustment sheet.
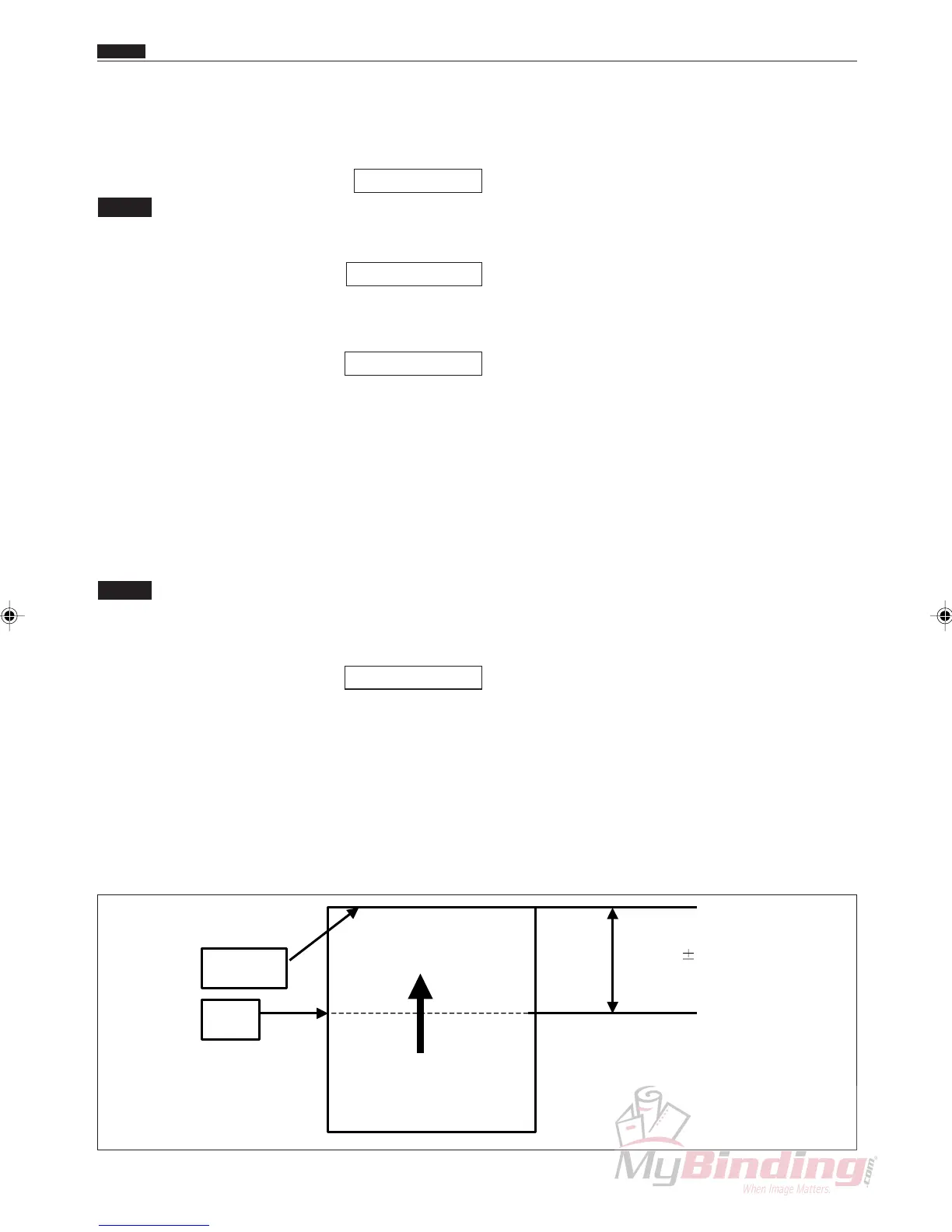
e Measure the distance from the leading edge of the
paper that was fed and the SCR.1. If the distance is
within a range of 104.0 mm +/- 0.762 mm finish the
job. If it is not in that range go to Step r, to make
adjustments.
Lead Edge
SCR.1
104.0 mm 0.762
Feed Direction
mm
v Creaser Calibration
Chap.4

Table of Contents

Related product manuals