EasyManua.ls Logo

MyBinding DC-545HC - Page 49

Default Icon
175 pages
Print Icon
To Next Page IconTo Next Page
To Next Page IconTo Next Page
To Previous Page IconTo Previous Page
To Previous Page IconTo Previous Page
Loading...
46
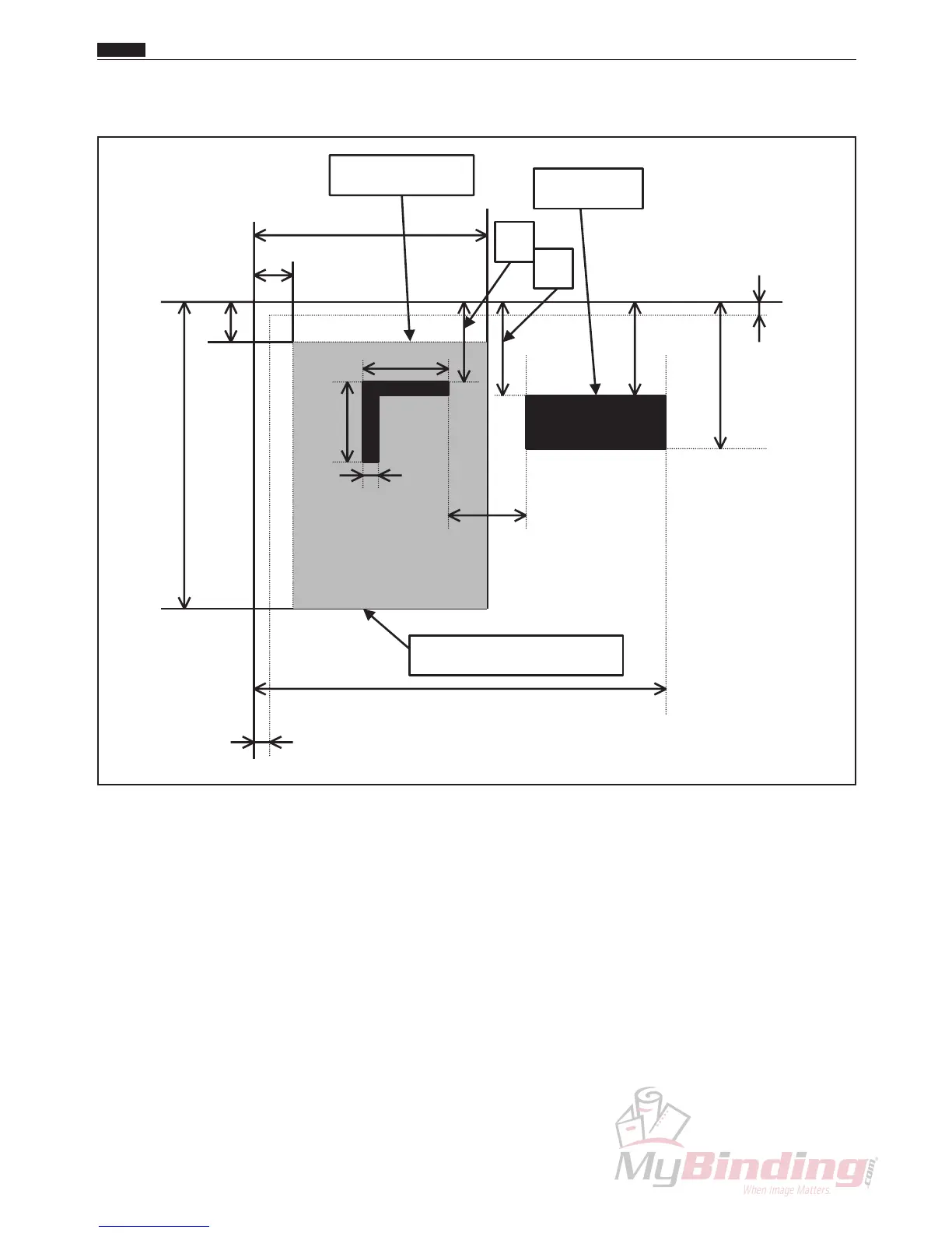
* The width of Reg. Mark line is 0.4 mm or more.
* a<=b
Positioning REGISTER MARK and BAR CODE
5 mm
BAR CODE
REG. MARK
*
a
*
b
REG. MARK Position range
60 mm or less
35 mm or less
10 mm or more
5 mm
30 mm
8 mm
8 mm
40 mm
* 0.4 mm or
more
5 mm
or more
5 mm or more
8 mm or
more
Chap.2
⁄1 REGISTER MARK

Table of Contents

Related product manuals